位于希腊科斯岛,爱琴海东南部的Casa Cook Κοs是一个有216张床的新五星级度假酒店,坐落在一个29.080平方米的海滨地块。
该建筑的设计试图把旅游住宿的意义重新定义为一种文化产品,与景点,历史和岛屿文化联系在一起,将其推广进游客的体验中。
设计师通过摒弃人们对酒店的刻板印象来实现这个目标,另外设计师创造出另一种好客的空间,让客人感觉像住在朋友的房子里,有种轻松的气氛,而豪华的服务是无微不至又随意的。简单的材料,粗糙的表面,灰白立方平原形式和干石墙,与松树,棕榈树,橄榄树以及芳香草药相印成趣。
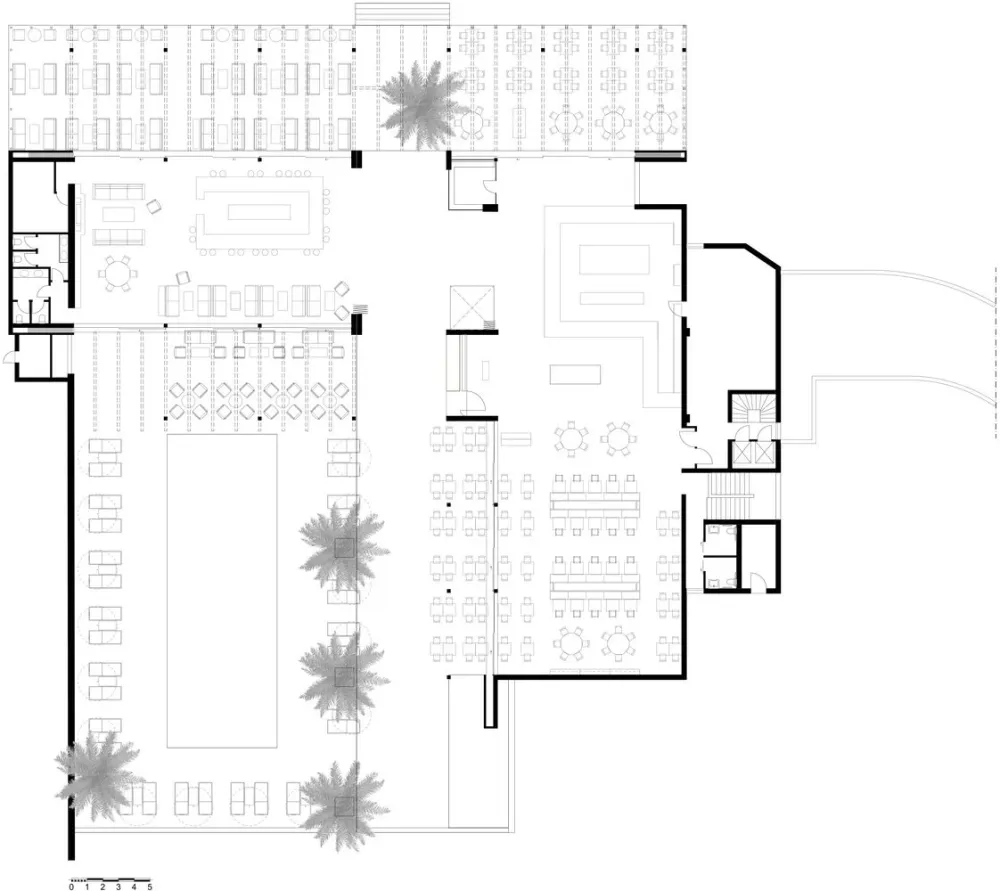
经典的主楼体现了解构主义。公共区的布局参考了传统的希腊殖民地的城市布局。在中央广场周围,酒店的主要的公共服务区域在四个独立的建筑物中,分别是,接待处,行政部门,商店和图书馆的酒吧。
在主广场和沙滩俱乐部之间的连接轴上,游客会看到由朴素而又端庄的正方体建筑构成的一层楼高的温泉浴场。浴场内提供了一系列独特的项目,包括传统的土耳其浴,室内泳池,健身房以及室外瑜伽空间。
中央小径通向占主导地位的餐厅/沙滩俱乐部综合体,构成了建筑与沙滩之间的相互呼应。这条小径连接并服务于内部主泳池区域和沙滩。通过北部的木质阳台可以俯瞰沙丘和海滩,在炎热的天气中提供大量的遮阳处。
建筑的概念被废弃,公共设施被随意地放置在棚屋内。棚屋可以根据天气情况,通过一系列巨大的,位于特制壁龛内的可滑动窗框进行调整。当“美尔丹风”来临时,强劲的北风刮过,海滩前的窗框被展开,用来保护中央泳池和内部的阳台。在寒冷的季节里,棚屋可以移往视野开阔的框架建筑内。
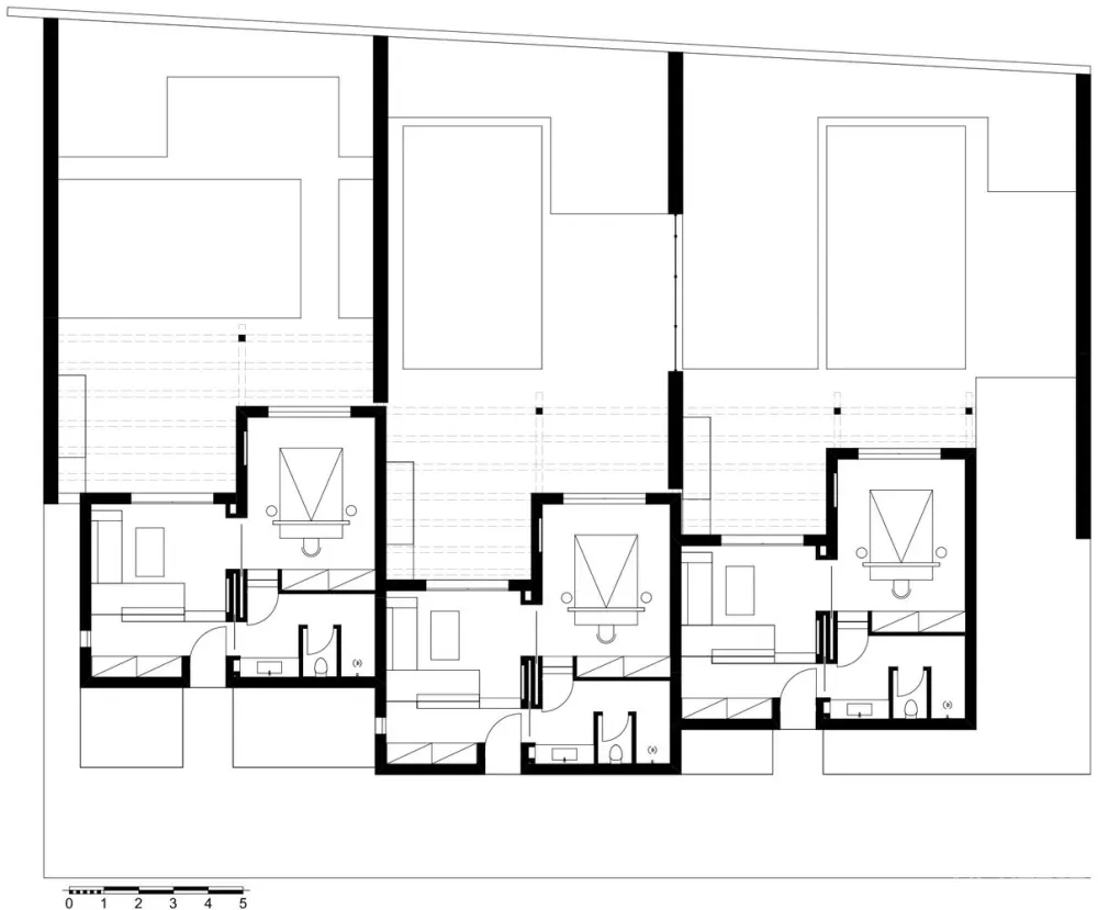
房间有三种不同的类型。标准双人间位于一层楼或两层楼高的建筑内,分别由一到三个房间为组构成“小住宅”。另一个选择是由两到三个房间组成的“带客厅的住宅”,拥有共享的泳池和内部庭院。最后是拥有私人泳池和庭院由一到两个卧室组成的“大型住宅”。
根据不同的房型,住宅分别位于三个不同的区域内。住房的分布和朴素的正方体外观借鉴了爱琴海群岛的传统建筑和城市规划。其中蕴含的概念与狭窄的路径相结合,引领游客欣赏到意想不到的景色,通向外部的楼梯和室外休息区。
2020首届意大利IIDA AWARD国际设计大奖全球启动!

