Click the blue word design FB at the top to follow the design release public account
花满地温泉酒店位于河南省许昌市鄢陵县,自古有“中原”之称的河南许昌,为三国皇权争霸之区,曹操枭雄之地。而鄢陵素有“花木之乡”之美誉,千年古韵伴随着阵阵花卉和汨汨温泉,沉吟至今。酒店业主希冀融合当地温泉花卉之特色,将自然元素融入其中,为旅人提供一处怡然自得的平静之地。
大堂门前是一个镜面湖,平静如镜子般的湖面倒映着主体五彩缤纷的建筑,Amata用最简洁的手法将空间与人对静美的追求融于一体,呈现出美感十足且优雅淡然的对称画面。
MIST花满地由国际著名的建筑大师、苏梅岛六善设计师Amata Luphaiboon担纲设计,在鄢陵,Amata依旧玩起了他擅长的光影游戏,让天气阳光的位置与季节的变化透入建筑空间,让旅人与观赏者产生美感和遐想。
既然鄢陵自古便是花木之乡,设计师Amata希望能让来到酒店的旅人能看到一种繁花似锦的色彩惊喜。他让酒店主体由四座玲珑通透的全玻璃外墙建筑组成,远看彩色玻璃错落层叠,如梦如幻;近看整齐划一的玻璃和光影又折射出彩虹般斑斓明丽的色彩,让凝视者产生超现实的幻觉。
走进大堂,出现在眼前的是一大片BlingBling的水晶艺术装置,装置40米宽、3米高、5米长,由24万颗亚克力水晶串联,由泰国匠人手工一颗一颗制作而成。犹如雾化滴落般的水晶倾泻而下,律动的色彩飞溅其中,光线洒在纯白色的大堂里,非常梦幻。
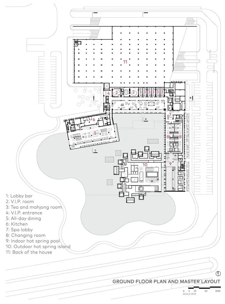
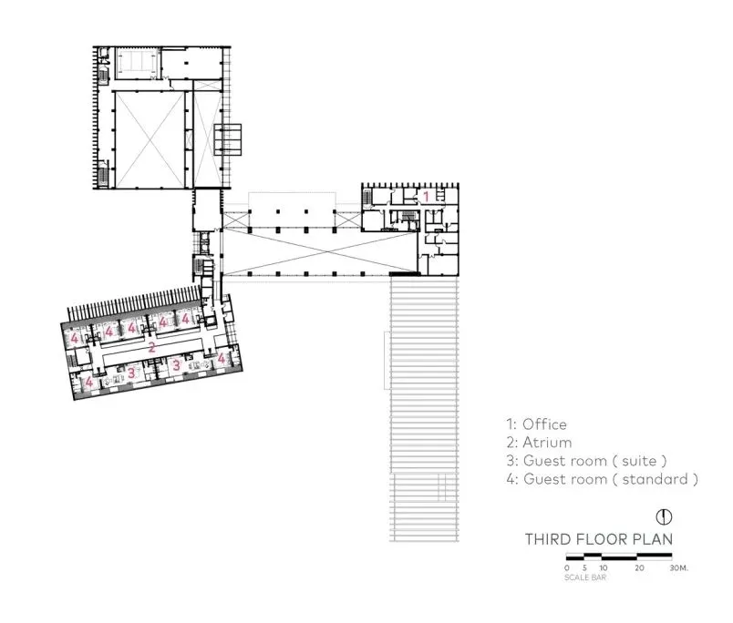
酒店仅精雕细琢了51间客房,分布着3种房型,包括圆形客房、弧形客房及湖景套房。整体风格简约淡雅,没有过多的修饰,透着一些日系和别致。房间里大部分用品均采用棉麻制成,给人一种更自然和返璞归真之感。
阳光在一天中不同的时刻透过玻璃窗照射进来,粉红粉蓝的玻璃光打在房间,隐隐约约的,像是给眼前所见蒙上了一层美妙的滤镜。
雾中花全日餐厅就建在湖边,以中餐包房和客房为主,东南亚海岛度假村常见的大落地玻璃窗设计,大量运用了白色和玻璃材质。空间中满是以‘云’和‘光’为原型的装置创作,将艺术引入空间,营造了极强的视觉冲击力和属于自然的独特味道。

