云端之上,难以触及。时代不断加推,人们所追求的内核却愈发指向同一:比生活更高更远的力量。于是视野落到了高山、云端、天际,心境是木色、书香、澄净,再回溯到有限的建筑空间里,如何广纳天地间无垠的美,又如何同时将生活规整融入?
如此有了关于精神的云端和生活的浪潮两者间的分野与权衡思索:向上生长,构筑理想的云上书院,向下渗透,回归更具功能性的生活美学馆。
设计师将其统纳入诗性东方的美学建制中,“以诗为用,以用为诗”,设计沿袭美好诗性缄默的情境表达,以中轴对称、方正秩序、园林递进的东方仪范,点染国际艺术审美,归呈构设一处涵雅静心之所——永丰乐境。
整个空间前后三进,层层递进,极具中式空间的含蓄与神秘之感。前后入口皆为亭,中部接待区称为堂,亭堂连接之处谓之廊,三者围合起来便是“院”了。
每一境都自成一派,又整体归一,既开放又包容,显然将空间探寻的主动权让渡于步入者:或为碧绿高枝吸引,或为镜面水光驻足,或欲沉入深邃,便择幽静长廊小步徘徊,独处慎思。
更多人落脚至前亭,便随了悠长景深带来的泛泛微光的指引,穿亭过院沐天光,入到云上书院。
一入此间,便得天地之大观。书院文化的脉络贯穿其中,四方原木书香围合起天幕垂落的云灯,方正之间而有柔美,恰如文人雅士以书卷智慧守护玲珑之心。
云的自由在这里化作流动的韵律
,在丝丝波光中婉转舒展。像银河闪烁着星花,不朽的诗文吟咏而上,合力推转时空向更为辽阔的天际蔓延,任思绪远赴云端…
再往前走近几步,便置身于光亮之下的洽谈区,与友人静坐畅谈,自在分享;或独捧珍册,同智者对话,将繁忙且搁置,享岁月安然。
若不是门外庭院树影婆娑,偶传来两三声鸟儿啼鸣,还误以为时间也为此刻美好而感动停滞了。
环顾空间整体布局,以半隔断式的设计手法巧妙置景,传递更加开放、自由、万象的氛围。随着步入者的位置变换与视线流转,不同角落皆可自成一幅画卷。
不是一目了然地全幅铺开,是不经意透过镂空的架构望见远处的绿意,而后好奇驱使着慢慢靠近探寻,局部开始放大,虚影向实过渡,像电影过场般逐步演绎发酵在眼前。
这种若隐若现的寻觅,是“犹抱琵琶半遮面”的含蓄婉约,也让空间与人的互动关系更为紧密。
没有浓墨重彩的用力过度,云上书院坚守和煦清雅的格调。
中式书院的风骨、文人墨客的禅意、差异化的材质运用及国际化的设计语言巧妙融合,一点一滴诠释关于生活的升华、关于理想的追求。
云端之上,是书香院处,云端之下,是生活与艺术糅合的集展示、洽谈、办公、活动等为一体的多功能场景,传递品牌对理想中的明日生活图景的焕新态度。
空间整体以透亮肌理的原木色大理石砖奠定空间基调,沙盘区则以更大体量的表达作为场景的焦点。
高低错落的灯饰是另一种形式的诗意叙事。像翻动的书页渗出智者的闪光,也像梦想的翅膀,致敬每一位对生活充满热爱的人,将希望源源不断地向更广阔的世代涌动。
既敞开了迎接,便不主张设置过多屏障,仅以中式格栅稍稍隔挡,隐秘而不闭塞。
两旁长廊作为承接室内外各个空间的桥梁,一贯延续了大空间的材料选择,并融入深色木饰面、质感墙纸等额外巧思,使其具备连接性;又以强烈的序列感一字铺排开,形成它的独立性。
漫步长廊的心思在于闲适,不需要集中去调用每一个感官,而是去推门感受每一处空间所营造的不同氛围。
推开茶室的门,是品茗一杯清茶的惬意;进入沉浸式影音室,也许会带来一场奇幻的冒险;或者,就什么都别想,坠入那片蔚蓝色的池里,尽情地释放。
在这里,人居规划、展厅空间与艺术生活介入、交织着,我们共同见证着理想与生活融合与共的新景观。
一味追求生活本身是无趣的,一味活在理想主义的梦幻里也不免过于极端,最好的是:既有直面生活琐碎的勇气,也不放弃向上探索的力量。毕竟日常已经足够唏嘘,精神更需远上云端,去构造属于自己的“云上书院”。
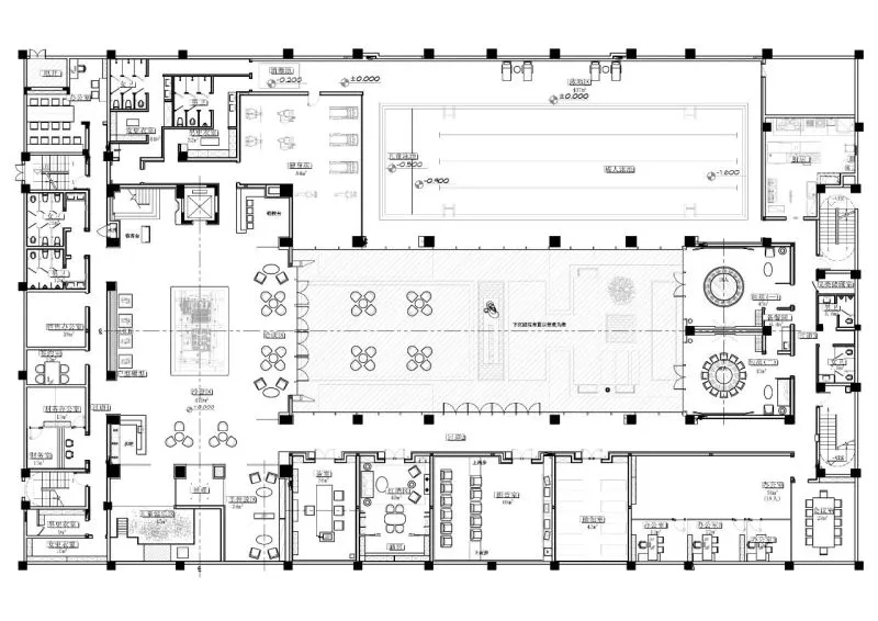
负一层生活美学馆平面图
项目名称:郑州荥阳永丰乐境会所
主创设计:王光辉、刘小羿、艾益忠
参与设计:李文强、肖晋、苏良海、肖炜、许珊、李光育、尹琳耐
完成时间:2020.12
甲方设计团队:程海鹏、赵思强、邢华彬、陈石文、杜楠楠、郑新领
建筑设计:上海日清建筑设计
景观设计:深圳奥雅设计北京分公司
太谷形上(Taigorge Design)由王光辉先生创立,自2010年成立以来,一直专注于商业地产设计,目前已与融创、龙湖、金科、中粮、远洋、正荣、北大资源、鲁能、正商等一线开发商建立战略合作。公司以合伙人制度吸纳更多专业的设计与管理人才,融合空间设计、商业策划、项目管理等多元领域,致力于为品牌开发商提供商业地产设计研发及顾问服务,探索当代设计与商业价值的更多可能性。 “赋予能量,创造价值”是我们对空间设计的追求和终极目标。在我们涉及的会所/售楼处、样板间、甲级办公等服务领域中,我们始终将人与空间的需求放在第一位,通过创造性手法重构空间之于人的真实需求。我们推崇设计的包容性与持续性,永远以接纳的态度、多元化的创作思维,探寻设计的规则和价值,并以最具开拓性的创新与融合,演绎空间的可能性和商业价值之间的精妙平衡。

