合羽桥道具街(Kappabashi Tool Street)自从日本大正时代以来(1912年)就是各类道具店和古玩经销商的聚集之所。该道具街位于新堀川附近 (Shinhori River),地处上野站和浅草站之间。该道具街虽仅有800米之长,却容纳了170多家专卖店,涵盖餐具、厨房设备、厨房用具、菓子制作道具、食品原料和包装用品等。
1946年,马嶋屋菓子道具店由现任负责人的祖父Saburo Yoshida所创立。该店铺的名字马嶋屋源自日本神田万世桥地区最老的菓子道具店Kisaburo Majima之名。而今,几经易址,该店铺搬迁到了浅草本愿寺的附近,距离合羽桥道具街仅有3分钟的步行路程。该店铺主要经营来自全球各地的菓子制作道具。
而Hitoshi Ohgawara作为该店铺的木模手工艺人,在该店已工作了60年之久。他所制作的木模模具闻名于日本全国,给许多人带去了美好的人生回忆。很不幸,在2019年,Hitoshi Ohgawar离开了我们。因此建筑师决定以此为灵感,采用“幸福的模具”为设计概念,来展现这3000个独特的木模模具。
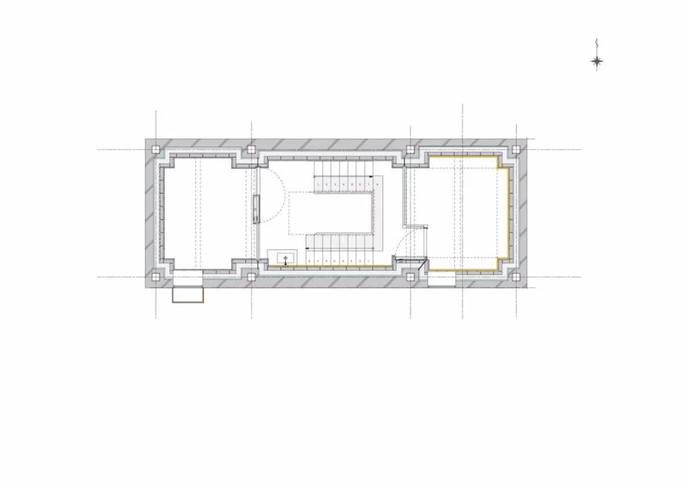
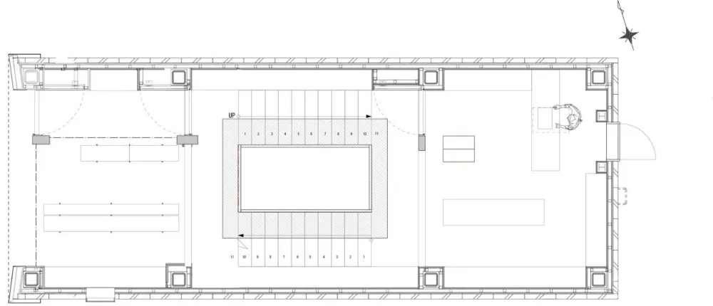
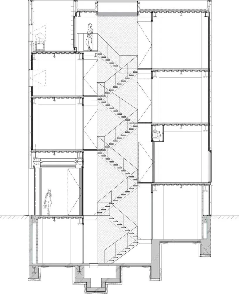
建筑师通过特定的处理手法,使这些木模模具可以被顾客所清晰地一一看见,同时又不至于给内部的员工带去过大的压力。此外,考虑到道具街特殊的空间结构,该店的地下室和一二层空间都无法得到充分地利用。因此,建筑师通过消防疏散楼梯和围护栅栏的设置,将其作为模具的展示立面,对这一灰色空间进行了全新的定义和使用。此外,建筑师还对这3000个模具进行了编号,以加强顾客和店铺间的互动。
此外,建筑师还在内部空间的设置上,置入了错层空间,使得顾客可以在选择模具的同时,顺势在店铺内部上下游走。建筑师在店铺外侧的材料使用中选择了煤钢材质,充分利用了其时间越久强度越大的特性。同时,建筑师也希望借助这种材料上的特性,来表达马嶋屋菓子道具店传承百年的品牌精神。总的来说,建筑师希望通过这一道具店空间的设计,将品牌本身所具有的欢乐和幸福,传到到日本的各个角落。
建筑师: KAMITOPEN建筑事务所
面积: 52 52.0平方米
摄影师: Keisuke Miyamoto

