More Mountains
Coffee / Light Meal / Youth Hostel
图文提供 | 外物 WHY WOULD
项目类型 | 商业空间
▲ More Mountains video
Time background
2019年12月,COVID-19急性呼吸道传染病爆发全球,一场突如其来的集体性公共医疗事件打乱了原本的平静,世界多国处于限制封锁状态。
▲ 空间原状 Original space
疫情的影响使得世界旅游业陷入严重的衰退与滑坡,继而形成连锁性的旅游危机。而作为恩施当地主营国际青年旅社的多山则直接受到了疫情带来的冲击和影响。
▲ 留言簿首页 Home page of Guestbook
Renewal and recovery
国内的疫情随着时间的推移逐步得到控制,然而疫情的持续不确定性对旅游业带来深远影响,且疫情结束后无法短时间内迎来客流反弹。
长期的租金支出和旅游消费产业的不确定性促使整体的业态需要重新进行调整,而更新后的业态配比和建造费用的成本控制成为此次设计的策略要点。
▲ 改造后外立面 Facade after reconstruction
▲ 移动后结合原有树木的出入口
The entrance and exit were moved and the original trees were retained
咖啡作为天然具有文化社交属性的产品,在原有的资源配比下予以放大,并增加青年人喜爱的轻食品类,整体进行前置。
Coffee operation area
▲ 1F独立的青旅登记入住台 1F
而原有2F的青旅住宿属性则予以保留,结合咖啡轻食与青旅两者具有差异性的经营时间段,在空间规划上彼此相互独立且保持适当的功能联系。
而待旅游产业复苏后,咖啡轻食与青旅亦可形成业态互补。
Operating period
(左:咖啡轻食 | 右:青旅住宿)
结合原有的建筑外结构,在保持整体设计语言的基础上,通过适度的更新降低整体的建造成本,以抵御疫情带来的冲击和影响,迎来重启与复苏。
Diversification and extension
Light food kitchen
疫情的影响促使人们对生活与消费观念产生意识形态上的转变, 生活方式与环境的重要性成为全民的普遍共识。
满足于不同的多样性需求,整体的座椅组合配比根据空间功能与使用状态的不同进行设置,小型派对/生日聚会/烘焙制作/摄影拍摄/书籍阅读等具有社交性的活动得以在空间内进行延展。
▲ 建筑空心砌块用以制作休闲座基
Seats made of building hollow bricks
Brand and product
结合于当下消费市场的复苏,多山主理人与其团队通过对咖啡与轻食品类的不断打磨与测试,开发出符合年轻客群味觉与审美的产品,并融入幽默与趣味性。
©More Mountains 多山
©More Mountains 多山
世界的变革对每一个个体,乃至整个社会的文化、精神和城市空间,都产生深刻影响,也让人们再次思考个人、社会与现实间紧密而又复杂的关系。
置身其中的每个人将产生更新与变革,危机也同时转变为机遇与新的起点。
ABOUT PROJECT
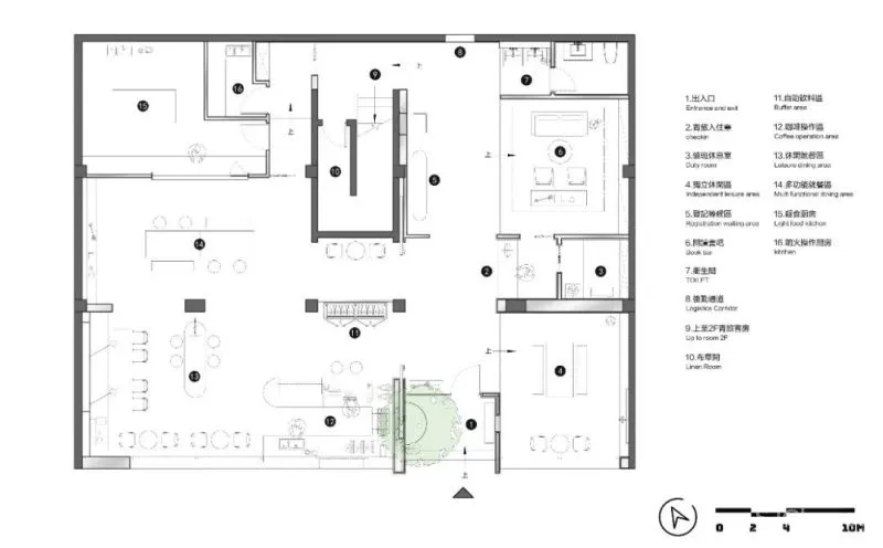
▲ 平面概念 Plane concept
Name | 项目名称:
More Mountains 多山 | 咖啡/轻食/青旅集合店
Location | 项目地点:
ENSHI · CHINA | 中国 恩施
Area | 项目面积:
Client | 项目委托方:
More Mountains | 多山
Date | 完成时间:
09.2020 | 2020年9月
Interior Design | 主案设计:
Draw Design | 图纸设计:
Logo Design | 产品标识设计:
Article | 撰文:
Photographer | 摄影:
XUAN 湯 璇 (除标注外)
ABOUT DESIGNER
WHY WOULD 外 物
富有年輕創造力的獨立設計品牌。
通過對空間建築結構的光/色/質感/聲音等介質,
表達符合當代美學的居住及商業空間,
輸出對於美學與視覺藝術的思維理念。

