来到苏州三十年有余,被苏州深厚的饮食文化深深吸引浸润着!起初接触这个面馆案子的时候,内心是很期待的,因为我本身就很喜欢吃面,对苏州这碗面有着很深的情怀,苏州这碗面从古至今浓缩了苏式市井和人文生活的精髓。但真正要落地,所要考虑的问题还是很多的,怎么让面馆吸引更多年轻人,实现苏式新生活!
苏州面贯穿着苏州人的日常生活,一日三餐,丰富精致,是苏式生活的常态,面是精髓,我们的面馆是载体,设计师的设计力求在不改变老祖宗留下来的文化的基础上,加一些新的设计元素进去,打造一个苏式新生活的面馆,既能满足老一辈人吃面的习惯,又能迎合年轻人的审美。
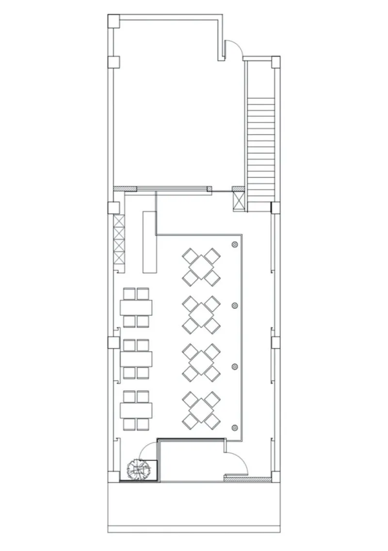
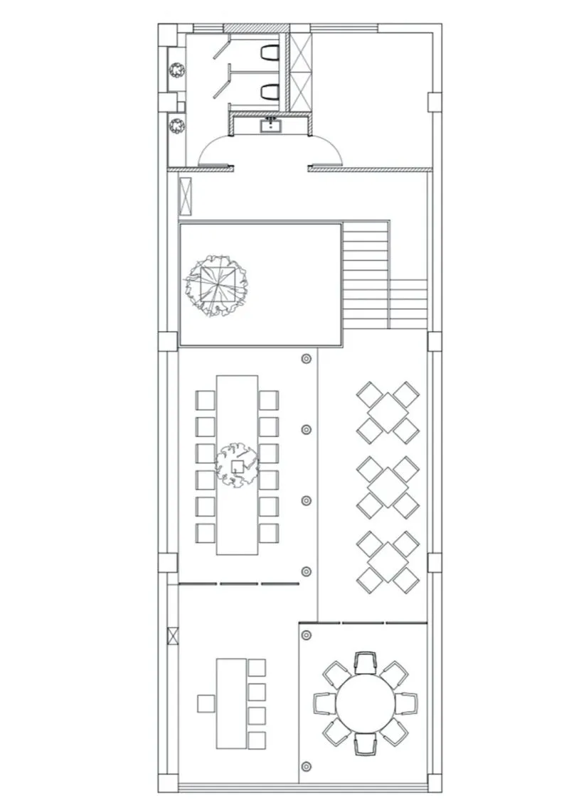
在整个面馆的空间布局上,设计师力求大尺度、简约、层次分明!从宋氏房梁榫卯结构到明式定制实木家具,再到大面积留白,移步换景,力求呈现精致、雅致、和谐之美!让传统文化和当代艺术嫁接,从而形成一种新的生活美学和生活方式!
在面馆的细节陈设上,我们结合古朴典雅的实木、白墙,融入传统文化里面表达美好之意的鱼、鹤、松。鱼在我们的传统文化里多是表达美好祝福之意,象征着喜庆繁荣,年年有余,鱼跃龙门,松和鹤则寓意着延年益寿和志气清高。
在做这个面馆的设计过程中,设计师始终贯穿“重拿轻放”这个主旨,把明代桌椅和宋代石雕这种重的东西拿进来,再轻轻地摆放在大面积留白空间里,明代的文化其实是最能代表苏州文化的,在源远流长的历史文化面前我们是渺小的,所以我们必须要先忘我,我们的设计是不能和苏州文化来抢的,只能是包容他,敬畏他,再通过大面积的留白,烘托出空间的恬静、雅致、大气之感!
当你进入到面馆中去的时候,可以感受到一种气息的呈现,我们可以放空,与古人对话,感受自己是一位古代的绅士,我们设计师做的就是这个穿针引线的工作,把苏州文化做到极致,让空间来和我们对话,以无法为有法,以无限为有限。
项目名称 | 苏州姑苏桥面馆
项目面积 | 400㎡
项目地点 | 苏州市姑苏区人民路1736号
项目机构 | 尼克设计事务所
设计团队 | 王钲皓 杨磊 郝露 沈张
尼克设计事务所创始人,尼克设计事务所设计总监,苏州设计师协会发起人,从业20年,2001创立了尼克设计事务所。
苏州尼克设计事务所致力于追求更加具有人性、充满生机、洗涤心灵的空间设计。每一个空间的塑造过程都是一次心灵的洗涤,公司具有资深酒店设计、会所设计、办公空间设计、售楼处、艺术馆设计经验。公司承担设计咨询与设计顾问,不断培养新的具有创新精神的优秀青年设计师,让更多的创新思想及理念融入到设计方案里。现已形成了一个集酒店会所、办公空间的专业设计团队。

