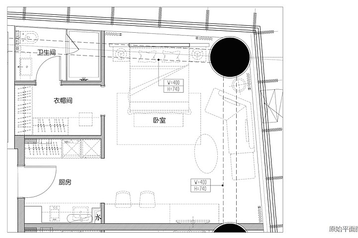
这是深圳市李益中空间设计负责的一处精装公寓样板间改造项目,分为A、B两大户型,定位为单身公寓,地点位于无锡市梁溪区商业区,毗邻商业文化中心区,生活配套教育资源丰富。 摩登绅士——A户型 47㎡
这是深圳市李益中空间设计负责的一处精装公寓样板间改造项目,分为A、B两大户型,定位为单身公寓,地点位于无锡市梁溪区商业区,毗邻商业文化中心区,生活配套教育资源丰富。 摩登绅士——A户型 47㎡
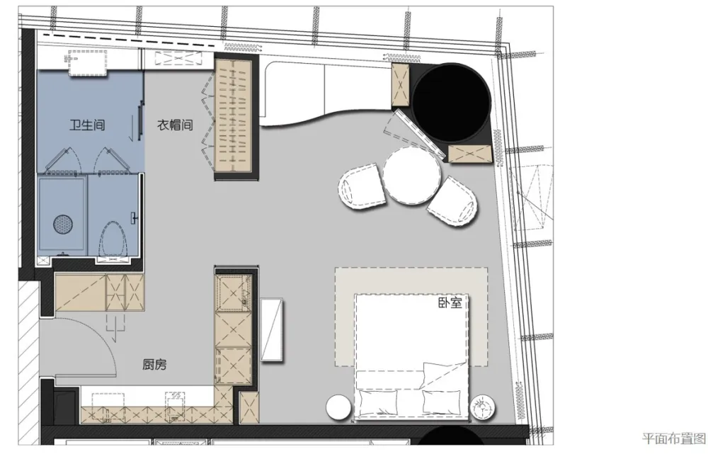
大部分单身公寓的特点是开门见山,进门便对整个室内的布局一览无余,而A户型的设计就有些与众不同之处。
大部分单身公寓的特点是开门见山,进门便对整个室内的布局一览无余,而A户型的设计就有些与众不同之处。
玄关处细心的设计了一个台面,既是换鞋凳也可做置物桌,一字型的厨房区,白色的整体橱柜洁净雅观,转角还有酒柜陈列,瞬间提升了室内的品质感。
玄关处细心的设计了一个台面,既是换鞋凳也可做置物桌,一字型的厨房区,白色的整体橱柜洁净雅观,转角还有酒柜陈列,瞬间提升了室内的品质感。
因为布局的优化使室内有一个非常漂亮的衣帽间,衣帽间内配有梳妆台。梳妆台面朝落地窗,通透自由,视野极佳。
因为布局的优化使室内有一个非常漂亮的衣帽间,衣帽间内配有梳妆台。梳妆台面朝落地窗,通透自由,视野极佳。
衣帽间的对面是卫生间,卫生间三区分布,淋浴区如厕区靠内侧,而盥洗区并不需要太私密的空间,设计师将其独立出来,置于窗前,洗手时抬眼便可望见窗外景色。
衣帽间的对面是卫生间,卫生间三区分布,淋浴区如厕区靠内侧,而盥洗区并不需要太私密的空间,设计师将其独立出来,置于窗前,洗手时抬眼便可望见窗外景色。
客厅电视墙是扇形造型,这样设计的原因是为了消化建筑的结构柱,而两侧多余的空间设计为暗柜,增加了室内的收纳面积,也让室内更加协调统一。
客厅电视墙是扇形造型,这样设计的原因是为了消化建筑的结构柱,而两侧多余的空间设计为暗柜,增加了室内的收纳面积,也让室内更加协调统一。
卧室的另一侧是大面积的落地窗,在室内拥有绝佳的视野。卧室床头设置了智能插座和智能家居控制面板。空调、灯光等皆接入了智能家居系统。
卧室的另一侧是大面积的落地窗,在室内拥有绝佳的视野。卧室床头设置了智能插座和智能家居控制面板。空调、灯光等皆接入了智能家居系统。
白色、浅木色、金属黄是主要的色彩,材质主要选择是灰玻璃、大理石和木饰面,整体配色简洁大方。
白色、浅木色、金属黄是主要的色彩,材质主要选择是灰玻璃、大理石和木饰面,整体配色简洁大方。
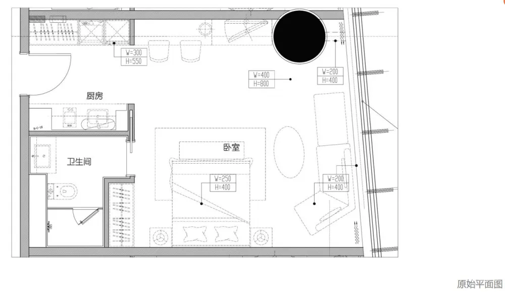
一个47㎡的房间产生了74㎡的错觉,单身贵族的品质生活。 简约风尚—B户型 41㎡
一个47㎡的房间产生了74㎡的错觉,单身贵族的品质生活。 简约风尚—B户型 41㎡
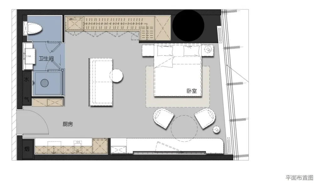
B户型公寓的室内空间布局非常简洁明了,卧室,客厅,厨卫入户便一目了然。室内没有迂回没有遮挡,空间通透,设计师为了丰富空间层次,在沙发背后设一灰色玻璃隔断,也为卧室区域增加了一丝隐秘性。
B户型公寓的室内空间布局非常简洁明了,卧室,客厅,厨卫入户便一目了然。室内没有迂回没有遮挡,空间通透,设计师为了丰富空间层次,在沙发背后设一灰色玻璃隔断,也为卧室区域增加了一丝隐秘性。
入户门处的定制柜,兼具收纳和置物功能。同样是一字型的定制橱柜贴边安放,操作台上有内嵌的微波炉,油烟机,两侧定制立柜与橱柜合二为一,整洁美观,有着足够的收纳空间。
入户门处的定制柜,兼具收纳和置物功能。同样是一字型的定制橱柜贴边安放,操作台上有内嵌的微波炉,油烟机,两侧定制立柜与橱柜合二为一,整洁美观,有着足够的收纳空间。
电视背景墙是一整面白色烤漆板,电视机内嵌其中,四周嵌入灯带,与室内风格整体协调,更具连贯性。
电视背景墙是一整面白色烤漆板,电视机内嵌其中,四周嵌入灯带,与室内风格整体协调,更具连贯性。
木元素以不同形态存于各处空间,木饰墙面、卧室木质隔断、木材桌椅、柜子、木地板等,在无形之间将各个功能区紧密相连,散发出温润自然的柔和气息。
木元素以不同形态存于各处空间,木饰墙面、卧室木质隔断、木材桌椅、柜子、木地板等,在无形之间将各个功能区紧密相连,散发出温润自然的柔和气息。
精致的器皿,现代的灯饰,赏心悦目的绿植,令室内温馨又美好。
精致的器皿,现代的灯饰,赏心悦目的绿植,令室内温馨又美好。
都市白领追求舒适便捷的品质生活,室内暗藏了不少智能化的家居。
都市白领追求舒适便捷的品质生活,室内暗藏了不少智能化的家居。
卫生间分三区设计,干湿分离,两侧分别为淋浴间与如厕区,设有玻璃门隔断,中间是洗漱台。
卫生间分三区设计,干湿分离,两侧分别为淋浴间与如厕区,设有玻璃门隔断,中间是洗漱台。
精装 样板间 单身公寓

