这着实是一个让人兴奋的项目:面积约700㎡的顶层复式,优质存量,重装上阵,对话流变的时代。
当我们回眸空间,记录珠海仁恒·滨海中心的设计与思考的长旅,一条潜藏的脉络呼之欲出:
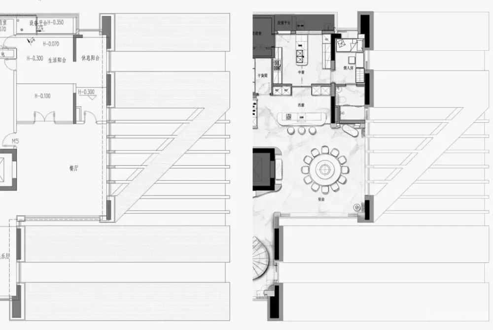
设计故事起于合作敲定之后,邱德光设计团队第一时间飞抵珠海。彼时眼前的毛坯房问题明显:
客厅双层挑空,有着大面积开窗,却被一道横梁一份为二,空间气度与舒适感大打折扣;
直棱直角的端点空间不断出现于眼前,空间路径被莽撞地画上休止符;
因建筑造型,玻璃外墙呈斜面,对窗帘处理带来难度;
细碎地畸零空间形同鸡肋,丧失空间的活力与功能。
我抬眼望到了窗外的一片海。
海向来是一枚介质,透过它,人们反复思考人与自然的关系、与宏大世界的关系,以及自由与自由的额度。
谈论眼前的这片海,我们首先需要解析珠海。这座城市随粤港澳大湾区的腾飞,成为东南部经济发展新的驱动力,吸引并创造了愈来愈多的层峰消费者。在2019年房地产研究机构CRIC全国千万级豪宅成交TOP20城市的数据榜中,珠海占据第14位,已跃居一线水准。
碰触一个时代,如果以财富作为切面便不难发现,经济的发展必然带来消费观念的变化,由此延展出新的审美与价值取向。这一切变革作用于人居,最先体现在平面功能与动线。
当豪宅不再是终极置业,便如汽车、珠宝、服装般成为一种「搭配物」,
不同城市的不同居所代表着不同的「屋品」。
选择珠海,立位情侣路,面向港珠澳大桥,仁恒·滨海中心以城市名片之姿承托「海洋重度成瘾者」对生活的极致追求,它宜居宜藏,是居所,更是「度假地」和「会客厅」。是以,
我们将平面中的卧室缩减至一间,更多注入社交与展示属性,这是设计加诸于平面的总章程。
而为平衡各功能,优化「居与海」的对应关系,我们需要更多的设计介入:
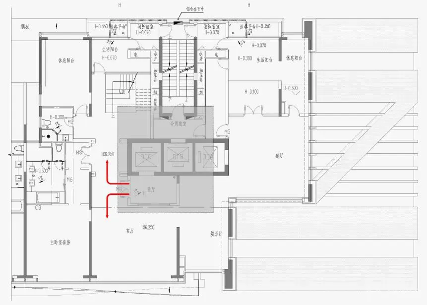
△调整前32F建筑平面图
玄关破坏了入户动线的流畅性
△设计优化,以电梯厅为核心
塑造洄游动线,实现自由平面
以一扇透明屏风实现空间的开放性和玄关的仪式性
拿到原始平面时,最棘手的是玄关。
不同于西方现代风格完全开放的入门宽厅,作为缓冲空间的玄关确然代表着东方居所的仪式感。
但当它封闭地存在于空间序列中,每每入户或穿梭不同功能区之间皆需绕行时,它的「仪式感」便成为了累赘与干扰。
日益开放的观念需要日益开放的空间来承载。
几经反复之后,我们与珠海仁恒决定
取消封闭的玄关,实现开门见海,
用空间的辽阔、自由去呼应海洋的精气神与时代嬗变之下人所向往的生活场景。而东方玄关的精神性则被交托于一扇缀满「水珠」的玻璃屏风。
更迭楼梯的位置是邱德光设计的一贯动作。在多层户型中,这一肩负垂直交通的组件或成为造景的核心,或扮演灵动的雕塑,是设计的「点睛之笔」。譬如武汉华侨城·原岸,又如苏州仁恒·棠北浅山。
在滨海中心,我们将楼梯移至挑空的客厅之侧,从心理层面放大了这种纵向空间的疏朗感。
它的移位更是对海洋的找寻:拾级而上,窗景的海浪与造型的「海浪」从地面铺陈至屋顶,人与海在转角时相遇、别离。
我们不断为厚重的楼梯「减负」,让它轻盈,更轻盈,去契合海面浮游的浪漫。
构想中面海而坐的场景最终因结构之故未能实现
△最终,楼梯之下置入了「气球装置」
设计中的遗憾就像飞至未竟之地的气球
我们曾构想过一种生活场景:于楼梯之下辟出一处「飞地」,面向大海,且思且读,观海亦自观。
遗憾的是,囿于原有建筑的结构,这种场景终化为虚梦一场。不过,有限的尺度恰合适做个探秘者,猫腰躲藏,回归孩提的心境。
以窗为媒,迎接海色天光
客厅的效果图,借助窗来占有海
当玄关被释放,楼梯并入客厅之侧,空间中朝向海洋的一面连结成巨大的海之幕。
徜徉流动的自然光影携着海天一色踏浪而来,静候一席观阁。
作为社交中枢的客厅,最大的观海视窗却被横梁一分为二。如何弱化梁的存在,强化空间对海洋的占有量成为毋庸置疑的解决之道。我们
避免无中生有的繁芜装饰,仅以曲线勾勒「一座桥」,呼应窗外的另一座。实相与虚相交错,一切在似有若无之间模糊。
餐厅占据最佳景致,独属城市
左:原始平面;右:餐厅优化
重新组织餐厅的配套功能,满足宴饮一切所需,中西厨、双面海景的奢华餐厅方能匹配会所级雍容。
△坐拥双面海景的餐厅空间
对于选择栖居海边的人们来说,享有的海景越是丰饶,空间便更具价值。纵观32F、33F两层,坐拥双面海景无疑最为奢侈,而这样的空间,被主卧及餐厅所占据。
定位「城市会客厅」,滨海中心理所应当地选择了「国际候鸟族」的非日常生活:
对他们而言,「居」是一种「潮汐」,遵循某些节令,于城市间辗转并锚固自己的文化坐标。
在坐拥壮丽景色的房间中醒来,品鉴艺术、筹办沙龙、时尚聚会、名流社交才是他们的生活。餐厅于是变得尤其重要:坐享最佳景致,四周无多余动线,兼设独立的中厨与开放的西厨、酒吧台……这里满足着你对私人会所的无尽想象。
临清流而饮,自然对话自然
△原楼梯所在位置成为挑空的茗茶区
「临清流,为流杯曲水之饮」是最具美学高度与文化厚度的待客之道。
我们引一湾曲水入室,与葱郁的墙面绿植共同遥遥呼应大海,以自然对话自然。而它所在的空间原本是楼梯的位置。
△过程图纸中,楼梯调整位置后
其所在位置被设计为上下两层的起居空间
以绿植墙面与活水与自然海景遥相呼应
决定楼梯更迭后,如何处理余留的空间成了麻烦事。最「实用主义」的办法是封闭楼板,设上下两层,作为各自的起居空间。然而,不论家具如何排布,此处空间总是缺少了豁然之气,局促着,与整个设计格格不入。
是以,我们与甲方决议「浪费」。
当挑空的茗茶区赫然出现于眼前之时,空间的情绪瞬间与海洋的情绪同步,它适合品茶香,也适合阅读或工作,赋予居者与访客味觉飨宴之外的欢愉和满足。
空间生成,没有风格只有海
△优化后的32F平面图
△优化后的33F平面图
当重要的空间次第排序于平面,设计的线索便清晰可见:是海。
一切手法、一切技巧性地表达都在大海的面前噤声。我们将记忆中的片段熔融重组,只为,那一片海。
△解构海的原型,是浪也是水
△空间优化,放大观海视窗
由平面至空间皆以曲线勾勒,拟合海之形态
空间亦由海而来,我们造一座岛,洄游于室,全无视线的阻碍,只有轻盈通透与肆意入侵的碧蓝。
自然之景藉由设计想象创造出一种意境,又外射于眼前的空间,而「赋形」的能力正是创造者与审美者的不同。
海之解构:鲸波万千凝于永恒
从电梯厢门开启的第一刻起,海的符码便在空间中起伏。我们将
「海」解构为一连串海洋文化符号,并以设计来控制其形态浓度和排布方式,并无任何制式的风格,海即是空间的风格。
借一扇「舷窗」,塑航海的感知
△楼梯间的窗以曲面所塑造,如同船舱或机舱的舷窗
机舱中观海亦是设计师对于珠海的初印象
东方或西方的传统窗格常以形态或色彩反复与自然、与光对话,而当下的窗往往拘泥于方方正正的轮廓,越开越大,却多少欠缺些生趣。
我们调取飞抵珠海时候的初印象,于楼梯处复原一扇「舷窗」,重温飞行与航海的感知。这是设计师的记忆,亦是本案目标客群「国际候鸟族」的日常。不止于出发和抵达,远离平淡、邂逅惊艳,生活亦如旅行。
水汇而成海,多雨的珠海铭记着每一朵水花的降临与皈依。缀满屏风的水珠,凝练一场自然与时间的游戏,
将雨季的神秘永恒凝结为设计所造之「海」的「第一相」。
水的相态在茗茶空间巨构化为两尊装置,嵌入墙面的条形窗。
真实的水流便沿着它们一滴滴下坠,汇入浅池一弯。「滴答,滴答」,仿佛顷刻间时光倒流,窗外无垠的南海回归了婴孩时期,回到珠江,回到马雄山洞口。
△水滴装置的设计及最终表现
以洞架桥,编织空间诗性
在客厅等重要的公共空间反复呈现
洞是「海」的「第二相」,这种天然、平衡的支撑形态成为传统桥梁的鼻祖,在仁恒·滨海中心却恰与港珠澳大桥互谕。
一系列形态各异的弧拱串联客厅、茗茶区、餐厅、连廊等开放空间的视觉中枢,架一顶顶桥,编辑空间的诗性。
取形于阳光倾泻时海浪的翻涌
曲线的天花、墙壁、扶手、装饰品皆源自海浪之形
再无任何事物的美丽与多变,能胜过万里鲸波。浪是「海」的「本相」。狂啸、翻腾是浪,平稳、悠然是浪,浪是宁静与喧嚣的互应。
邱德光设计以不同的疏密,复现海浪的急骤与宁静,以及日光照射下的粼粼。
舒缓是底色,「浪」抚过墙面、天花、扶手与地板,徐徐流淌在每个空间;汹涌是点缀,「浪」以艺术为媒,悬浮于墙面,闪烁捉摸不定的幻想。
TK HOME的重山沙发与浮云边几则如浪中漂浮的海岛
藉由一系列设计语汇,我们呈上关于海——一个无限事物的众多表象与侧面。
空间米色人造石主材配合蓝色的装饰,正如窗外的海浪扑打入室,与岸来一场游戏。
感性的情愫透过设计变成肉眼可见的实体,将自然的万千变化凝为永恒的珍藏。
△书画房由形形色色的蓝所点缀
来自rochebobois的蓝色坐礅为空间增色
醒时或梦着,都漂浮于海的梦幻之境。对海水与远方的向往永远在心中鼓荡——像孩子,像属于青春期的水手。
艺术的巧妙之处正在于记录——并非对现实的描摹,而是对感知的复现。
△设计的表述,艺术的对望
△设计的表述,艺术的对望
△前景为张国亮「氧化书香」雕塑
然而艺术品是孤独的,唯有设计能拥抱它。在滨海中心,一系列的艺术品即一系列情感唤醒的触发点,藉由设计,围绕社交核心动线徐徐铺陈开来。
艺术品的选择围绕一个主题:童趣,力图将人带离现实的烦扰,重新换上孩子的瞳孔看待世界。
少年、气球、肥皂泡与象……携窗外与室内的海浪,造一座梦幻之城。
与珠海·仁恒滨海中心初邂逅时,设计的命题是「一系列特定」:关乎城市,关乎区位,关乎建筑条件,关乎时代思潮与居者的思想,关乎销售的商业逻辑。当设计介入之后,「一系列特定」召唤一场「回归」:
海洋从环境席卷至造型,化为海浪拍打至室内,海的空间性从内心深处抵达无限广延。
在珠海仁恒·滨海中心,设计找回海洋。
项目名称:珠海仁恒滨海中心复式样板房
主创人员:邱德光、杨尹赢、陈惠君
设计团队:黄伯仰、林怡如、孙昱祺、王婕颖、江鎷如、姚道元
项目管理:朱晓东、夏梦
施工团队:南京仁生装饰工程有限公司
主要家居品牌:T.K HOME、Cornelio cappellini、GALLOTTI -RADICE、-Tradition、BENTLLEY HOME 、roche-bobois
摄影师:Boris Shiu
主要材料:人造石、鱼肚白石材、鹅毛灰石材、梦幻白玉石材、杷檀木皮、不锈钢
邱德光设计事务所,主持人暨总设计师,被誉为新装饰主义大师,中国设计界的领军人物。
邱德光四十余年来致力于两岸的尖端室內设计,以丰富的经验与深厚的素养,将装饰元素结合当代设计,开创了新装饰主义NEO-ART DECO东方美学风格,熟悉运用東方华丽、艺术、时尚元素、将生活形态和美学意识转化为尊贵身份,赋予新奢华生活新内涵,成功塑造当代东方都会美学与21世纪时尚多元的生活型态。
邱德光:「我」的设计,玩趣源于个性
邱德光设计:告别传统,告别平庸!

