本案来自北欧建筑,业主两位都是空中飞人,希望回到一个真正可以放松的空间。设计师根据业主自身的需求和生活习惯入手,为他们打造了一个可以容纳灵魂休憩的纯净居所。
男女主人喜欢旅行、每到一个国家会有纪念品,希望有一个刻画回忆的空间,希望家中充满爱与创造未来。
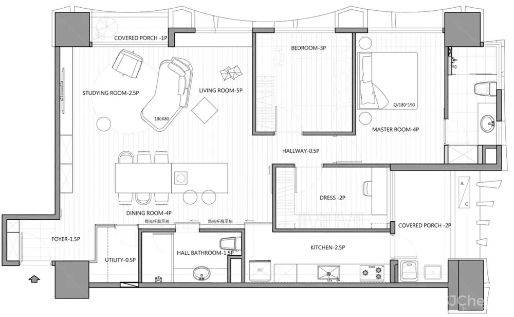
简约的空间设计,刻意让客厅像一张干净画布,承纳着男女主人的未来生活,所以用大量的木质调铺陈地板和立面。
客厅的天花板,以鸟巢为概念,用线条感规划灯具轨道的枝叶状痕迹,也让大楼既有的消防管线显得隐没。灯具部分,使用特殊的长筒状轨道灯,凸显枝状线条的视觉效果,同时弱化消防管的存在。
设计师先以低彩度色泽,营造出适合长时间待着,且视觉上保持舒适感的空间,这样简约的背景色,还有一个很大意义,就是让时常旅行的屋主2人,可以将携回的纪念品变成空间衬色,所以在中岛背墙有一整面的格状收纳墙,「这个收纳墙是以树枝的形状为发想,迎合空间就是巢的概念,同时让屋主陈列旅行中带回的物品。」
延续北欧风格设计理念,素净配色让空间保有喘息的机能。大地色系搭配沉静的灰与白,让居家拥有大自然气息,视觉在低彩度的色调中也能保持放松状态,才能安心舒适地待在家。
餐厅最主要的空间重点就是中岛以及背墙收纳柜。中岛的部分结合餐桌跟工作桌的使用机能,侧边台面的立面规划插座,方便屋主帮手机跟笔电充电。
背墙也是一大重点,主要功能是陈列男女主人从世界各地带回来的纪念品,墙面后方同时也隐藏了客卫、厨房和储藏室三个空间,让背景在视觉上回归单纯。
虽然目前只有男女主人2人居住在空间里,但考量到未来可能结婚生子,虽然每个空间都有基本的收纳柜体,但还是在餐厅旁另外增加了一个小储藏室,加上屋主时常会旅行,独立储藏室在收纳大型行李箱上,还是比较方便。
卧房虽然模样素净,但采光极佳,白日时透过白色窗帘洒进的日光,为空间增色不少。屋主购买的大床铺,有着厚实柔软的设计感,搭配床边原木加铁件的边桌,添加不少个性感。
讨论空间的时候,男女主人就要求一定要有更衣室,所以空间在调整时,刻意挪出了2坪大使用面积做为更衣室,沟通时也希望能采开放式设计,保持视觉的轻松和放空。
时常旅行的男女主人两人,喜欢宽敞明亮的浴室,所以空间规划时特地将浴室拉大,并且让收纳柜体隐身在角落,既不容易潮湿,也不阻碍使用动线。
大理石打造的台面,贴心的在侧边做了收纳面纸盒的小柜子,抽取卫生纸的时候不但方便,空间在整体视觉感比较一致,而且也减少了另外购买吊杆所需的使用空间,达到轻松收纳效果。

