南京燕子矶作为长江三大名矶之首,
有着“万里长江第一矶”的称号。
这座三面环空,直面江水的绝佳之地,承载了浓厚悠久的人文历史与绝美景致。这里不仅序写着历代文人墨客对燕子矶的偏爱,更是顺应时代的潮流,将这份沉淀了千年历史文化,得以延续为现代城市化建设的一部分。
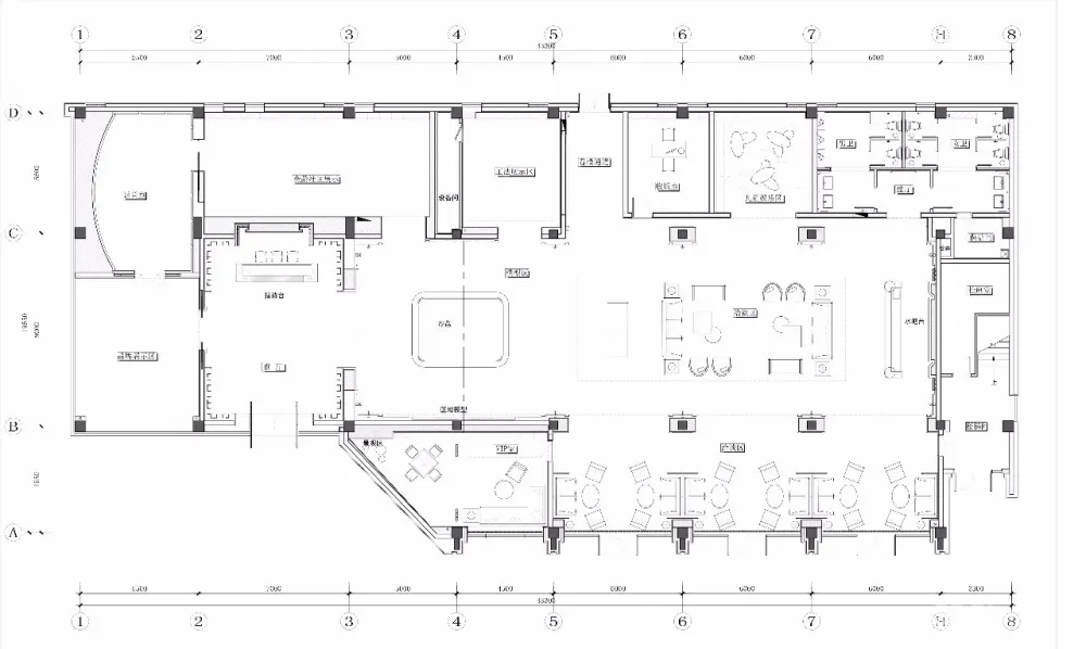
本项目融合了燕子矶的历史环境与文化,采用了东方美学中“无形化有形,有形归无形”的设计策略,规划空间的交通动线,从接待、品牌展示、影音室、全龄展示厅、沙盘、工法展示过渡到样板房,让参观者循序渐进地了解项目,最后回到洽谈水吧和VIP详洽细节,令每个空间产生互动互通的局面,并为参观者创造一个熟悉亲切,蕴含人文精神的空间环境。
前厅以围合的关系表现,我们希望给客户带来的是空间的气势感,因此结合了建筑立面的夜景效果,通过木和金属板的组合架构,使贯通到顶的格架,在围与透、虚与实之间,让原本不那么灵巧的材质在光的折射下变得通透灵动。
前厅服务台背景,则在高耸林立的格架气势感烘托下,采用深色大纹理紫山水对拼,两侧玻璃砖通过灯光的洗亮与背景石材充满强烈的视觉张力,形成强烈的记忆点,也是销售空间的亮点之一。
转而进入洽谈区,整个8米层高挑空结构使用了精品酒店的设计手法,顶部以条状韵律元素水晶灯点缀,打破原有结构的狭长感,并在中心位置设置了沙发组合,家具选用幕灰色定调空间气质,现代、质朴元素诠释了空间的安静力量。
且为了减弱大空间的空泛,空间立面以精致的细节和丰富的层次,塑造视觉的聚焦点与内部质感的饱满度:在二层位置做了竖向排列的金属格栅,运用灯光的渲染在天顶形成有趣的肌理层面;通过格栅与天花的线条呼应,在质朴中呈现精致质感与氛围。
极为巧妙的是,“隐”作为空间展现方式,将原本的柱子处理成对称关系,深色古铜钢包裹立柱两侧,柱子的粗笨被消解成凌厉的现代设计语言,完美实现了中轴对称的设计初衷。立柱正面浅色墙布硬包与横竖交错的黑缝形成强烈色彩对比,提供具有品质和细节感的舒适。
行至端头水吧台区域,水吧背景是客户进入模型区的视觉焦点。我们采用深色石材以及艺术品的点缀,让空间色调更加沉稳厚重,比常见的整面水吧柜更具意趣。
空间中大部分的情景重塑延续了“以形化形,层层递进”的表现手法,通过石玉、山水等一系列具有东方元素的具象艺术形式落实到空间的各个角落,自然而然的引导参观者在既定环境中所产生的心理活动与感受。
靠窗位置是深度洽谈区,层高略低于中心区域,半围合式处理打破了分区带来的边界感,并且以灯为介质辅以艺术品装饰,在空间中拉大沟通距离,形成了和谐舒适的交谈尺度,同时也给客户带来的是私密性及舒适感。
为了增强这种舒适感与空间环境,材质的天然肌理、柔软的棉麻质感与光影相生,通过传统中式风格塑造澄明心境的感官体验。
周而复始,无限循环。空间立意体现在将人的视觉与感受提升到心理层面,形成一个完整统一的空间效应。重视人作为主体的沉浸式体验同时,尝试在惯性之外,以不动声色的手笔,制造了一个个出乎意料的场景。参观者从平静到惊喜,再到豁然开朗,各种情绪在空间的行进中被层层打开,不自觉地被导演的空间关系所感染,留下了直击内心的亲身体验。
朴悦设计(PURE DESIGN),由郭子伟、彭清文、石千于2013年创立,总部设于深圳。专注于精品室内设计,为国内外高端客户提供一体化的室内设计及软装定制服务,业务涉及酒店会所、营销中心、豪华别墅、精装样板间等设计领域。 秉持“有品质的质朴,有节制的喜悦。”的理念,为每一个项目营造专属当下的生活格调以及超乎所想的独特意境。
经过几年来的发展,公司已拥有完善、先进的合伙人制度及设计管理制度,凭借稳定的团队、专业的执行,将设计创意与项目实践相结合,为客户提供高品质的服务保障。公司一直放眼国际视野、立足中国本土,在保持自我理念的同时,严谨、智慧地成就客户。目前已与万科、华润、保利、龙湖、绿城、蓝光、凯德等一线开发商达成长期、稳定的合作关系。
项目名称:南京中海燕子矶项目售楼处
设计公司:朴悦设计
设计总监:郭子伟
设计团队:吴华荣、陈永静
设计时间:2018.4
完工时间:2018.11
客户:中海地产
材料:石材,皮革,墙布,玻璃砖,木饰面,不锈钢
摄影师:释象万合-朱建利


😊