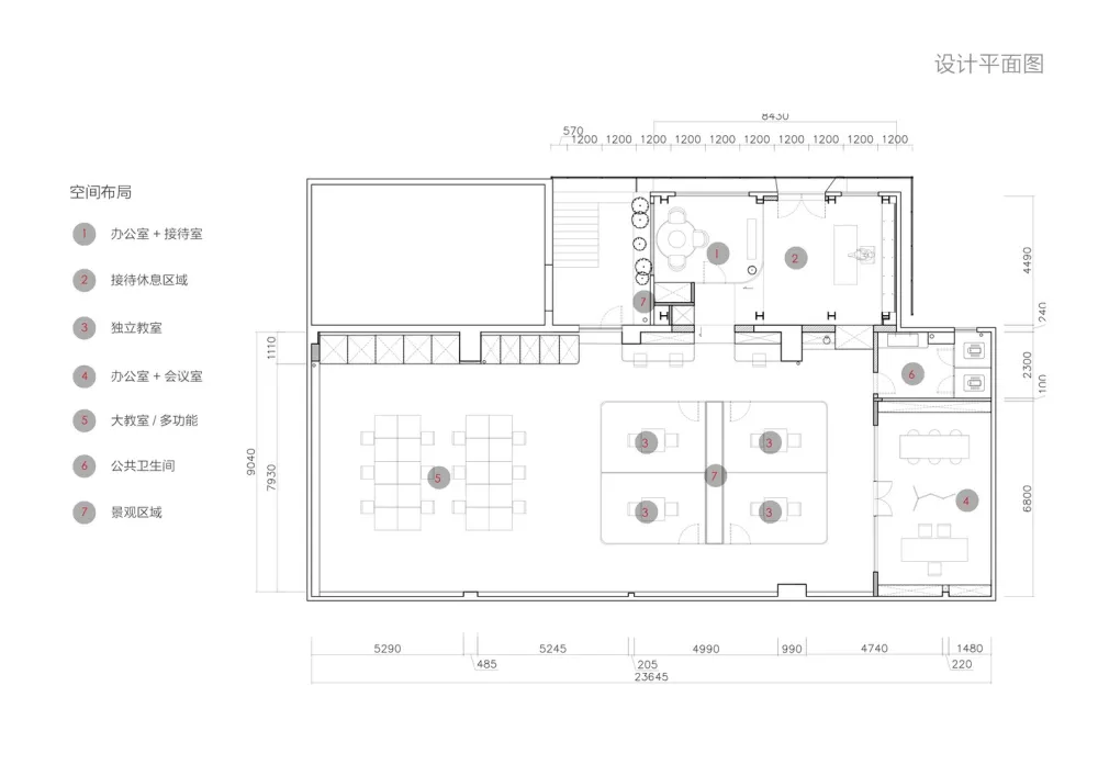
PART STUDIO是一家艺术留学教育机构,场地形态为25*10M长方形,入口处室外屋顶为建筑机电设备平台。 室内空间需求多样:一间30人左右的教学空间(同时可转换成50人左右的讲座及展览空间)、4间独立小教室、公共办公室、接待室、VIP休息室、卫生间、储藏室等。
面对复杂的外部环境,最初的概念是明确室内外边界,消隐室内各个区域之间的界限。 首先通过室外墙体增加开窗的面积和数量,最大化的保证采光的引入。 运用通透的围挡,景观的分隔保证室内外的视线互不干扰,以及设备的遮挡。

空间的魅力在于把真实的物质塑造成人类的感知,把空间的实体与形式在特定的瞬间转换为情感。 对于空间而言在满足人的多样性情况下,同时产生丰富的体验感。


开放的大教室引入灵活的储藏空间,满足展览之时收纳桌椅的功能,材料上我们采用原先老旧的木地板及条形砖,地面则随机保留原有地砖与混凝土相结合。












建筑师:序态设计研究室 地址:华东师范大学体育馆, 上海, 中国 设计团队:杨添堡、盛哲 建筑面积:320.0 平方米 摄影师:Susan Tan
版权声明:本文内容由用户自行发布上传或投稿由设计芝士代为发布,版权归原作者所有,设计芝士不拥有其著作权,亦不承担相应法律责任。如果您发现本站中有涉嫌抄袭或侵权的内容,请点此提交工单进行举报,一经查实,本站将立刻删除涉嫌侵权内容。

