瑜群空间位于江西南昌CBD红谷滩写字楼内,主要服务于喜爱瑜伽的都市白领,让人们找到心灵休憩的场所。本案以竹林为概念,旨在打造一个自然静谧的空间。希望每一个进入空间的人都能找到自己的心,找到人与人之间融洽的距离,找到打开心灵的钥匙。
步入空间的一瞬间,忽见一片竹林,嘈杂被退却了,换而一种安静。拾阶而上,空间变得豁然开朗。设计师以竹为题,通过竹林的构建手法使之融入室内,希望以物质空间为载体,展现空间功能的思想性。为都市丛林的名利欲望、人的自我迷失焦虑找到心灵的寄托。
整个空间采用环形动线,让人可以最大限度的在空间中行走。茶歇、阅读、互动交流在动线和景观中穿插完成,移步换景,在行走之间遇见美好。
强调材料的自然特性,运用将普通材质的特性延展发挥到极致。质朴的水泥漆,温润的木饰面板,自然的竹子以及白色涂料。
现代都市的生活方式,打破了传统社会以血缘亲情为中心的聚集方式,人与人变成独立的个体。而瑜群空间是一间无人化管理的瑜伽馆,提倡同修共建、共同成长的社群理念,让每一个热爱瑜伽修行的个体在这里都能找到志同道合的伙伴和心灵的归属。






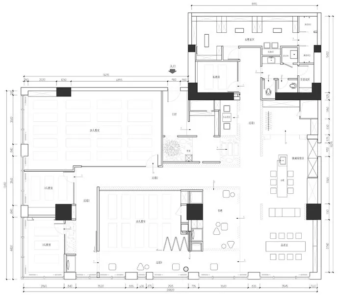
▼平面布置图
项目:「瑜群空间 | 竹空间 | BAMBOO SPACE」 地址:江西 南昌 主案设计:汪骏 设计参与:胡鹏 | 黄灿 | 张星 | 郑尧秀 陈设参与:张禹 | 罗敏 设计单位:「工墨设计」 摄影:杨欣丹 竣工时间:2018年10月 面积:340㎡+ 主要材质:竹、水泥、水曲柳实木、白砂石、青石板等
版权声明:本文内容由用户自行发布上传或投稿由设计芝士代为发布,版权归原作者所有,设计芝士不拥有其著作权,亦不承担相应法律责任。如果您发现本站中有涉嫌抄袭或侵权的内容,请点此提交工单进行举报,一经查实,本站将立刻删除涉嫌侵权内容。

