设计单位:双羽空间设计
软装设计:双羽生活美学
雅中见致,灵中见韵,带着幽幽的意境之美,泛着淡淡柔和之光;恬然自适,这就是东方的美学。
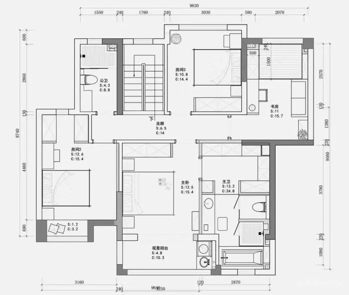
1、餐厅厨房区域过小,使用起来非常拥挤;
2、主卫空间紧凑,规划不合理。
经考量业主的需求,设计师重新思考平面规划可能性,以招待空间的规划作为主轴,把原有结构打通作长条型厨房,餐厅空间加大,增加水吧台的设计,创造出了近4米宽的用餐区域;以客厅及茶室区为朋友与家人间交流接待为主要概念,把原有与客厅相连的空间打通,以屏风相连,小阳台扩出,设计成抬高式榻榻米茶室,座椅底下则做暗藏收纳柜,使空间利用率最大化。
让客厅与餐厅,茶室整体回游串联,优化动线。主卧套房方面,考虑到卧室区域较大,在保留原有舒适的尺寸下,把主卫空间扩大,干湿分离,预留化妆区,使用感受更佳。玄关入门处,增加换鞋区与鞋柜收纳功能。
客厅与茶室相衔区域屏风的设计,实现了虚与实的结合,使两个空间互相独立又互相接连,从美学和功能的角度释放空间潜力,探索空间的界限,打造耐人寻味的氛围写照。
掬一捧岁月,握一份懂得,书一笔清远,盈一眸淡恬,时光,静好。
整屋选用原木色家具,返璞归真。或淡雅亦温润,摈弃传统中式的沉重感,注入一股悠然清流。
全屋采用3000K射灯,充盈着温暖白日光色温的家居,避免直射亮光眩晕。餐厅蕴含山水意境的吊灯,点缀间域,增添诗意。
位于餐厅区域的中岛水吧台,不仅作为一种生活的情调,更增添了生活的便利性。镂空吧台设计,兼顾家人日常饮水及日用品储纳空间作用。
入门玄关处,定制整面全身镜,让整个空间充盈着流动感,位于换鞋凳上方挂衣架的设计,都涵盖了设计师对于居住者生活细节的周全思虑。
与客厅电视背景墙相连的多功能榻榻米茶室区,约上三五知己,每每品茶会客,谈阔风生,不失清雅。座椅底下特别配置了按压弹簧式暗藏储物柜,弥补家中储存杂物功能的不足。
茶室左侧高柜下设计内嵌LED壁炉,热烈的火焰在摇摆在燃烧,暖意盎然,营造温馨氛围感。
坐酌泠泠水,看煎瑟瑟尘。无由持一碗,寄与爱茶人。
光与影间,尘同世说。温润自然的木色,或质朴亦暖心,游走在黑白之间,白的纯粹,黑的调性,无需过多的浮华的词汇堆砌描绘,这便是家最真实的模样。
光影间隙,通透叠层。以如何幸福的在这个空间生活这件事而思考,为家主营造专属私宅场域。
餐厅旁水吧台的设计,兼顾日常全家人饮水及冷餐操作吧台的作用,清晨的阳光懒懒的洒进来,笑意盎然。
这正是我们当初设计时所想象屋主的生活场景,不盲从于设计主流如何,更在乎考虑挖掘屋主的更深层次需求。
玄关入门处,定制悬空式换鞋凳,兼具抽屉收纳功能,长虹玻璃与全身镜的设置,虚实结合,使空间更加的开阔敞亮。
对于卧室的光源设计,考虑到为非功能性照明,设计尽量避免炫光,采用间接照明及低色温光源的设计,整个空间光线柔和,有助于放松身心舒适睡眠。

