新出现的悉尼建筑实践Retallack Thompson花了6个月的时间来设计,而Culbert建筑公司花了4个月的时间在Potts Point最令人垂涎的街道之一——Challis大道上建造了这个智能和优雅的一居室公寓。
“我们家的空间能在多大程度上感到独立和分离,同时又能促进它们之间的互动?”居民如何在保持联系的同时,在家中的各个地方举行居住仪式?雷特拉克·汤普森沉思着。
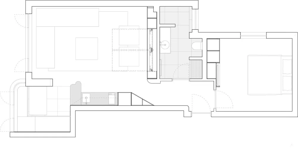
最初的两战时期装饰派艺术公寓拥有宽敞的比例和迷人的遗产细节,但与同一时代的大多数建筑一样,它过于分隔,不适合现代生活。该公寓由客户购买,作为周末在城市的“巢穴”,并在家人和朋友来访时接待他们。作为一个五口之家,新的布局很有必要能够适应任何地方,一次容纳一到五个人。









设计:RETALLACK THOMPSON 时间:2018 位置:悉尼,澳大利亚
版权声明:本文内容由用户自行发布上传或投稿由设计芝士代为发布,版权归原作者所有,设计芝士不拥有其著作权,亦不承担相应法律责任。如果您发现本站中有涉嫌抄袭或侵权的内容,请点此提交工单进行举报,一经查实,本站将立刻删除涉嫌侵权内容。

