探索事物于不同角度的发散认知
以相对述平化的方式来阐述其内在诸多的复杂可能性
挖掘更多不同的生活方式探讨和对人性的再思考
让空间更具可考究及情感共鸣的建立……
MEI JI FILE KINSUN DESIGN / 于间所隐 自形其述 中国 . 温州
TRANQUILITY / WARMTH / MINIMALIST
AESTHETICS /
“活得越久,生命就越加美丽。如果你愚蠢地忽视美感,您很快会发现自己失去了它,生活将陷入困乏。但如果你是明智的追求者,它将伴随你一生。”
——弗兰克·劳埃德·赖特 (Frank Lloyd Wright)
DESIGN DESCRIPTION
所谓的留空,绝不仅仅只是单纯空洞的留白处理,也非一味过度的做减法,而
探讨日常与空间所关联的互动间隙,进而提升私宅对外所阐述的情感共鸣。
The so-called blank, is not just a simpleblank space processing, nor do too much subtraction, but there is a combinationof appropriate.
Toexplore the interaction gap between daily life and space, so as to promote theemotional resonance of private house.
有结合的对外方式梳理,且伴有对空间的留白平衡,传达体验值的同时,思考其存在的合理性,深入于情感于空间的多维及方面。
Thereis a combination of external way to comb, and accompanied by the balance ofspace, to convey the value of experience, while thinking about the rationalityof its existence, deep in the emotional and spatial dimensions and aspects.
往复的过程直面空间内容的面貌呈现, 保留空间叙述的同时,来表达日常的情景拟定。
Thereciprocating process faces the appearance of the spatial content, retainingthe spatial narrative at the same time, to expss the daily scenario.
对于空间亦如此,它更多的反映着使用者独有的属性,乃至入微的细致体现。
Forthe space is also the same, it more reflects the unique attributes of the user,and even the subtle embodiment.
归于空间的本真性,皆少量化,凸显而出的是对生活方式的探讨,以绝多余的一切事物,但留内心的一寸空白,来彰显对于生活,空间对应的态度。
Dueto the true nature of space, are less quantitative, highlighted is thediscussion of life style, with absolutely superfluous everything, but the heartof an inch of blank, to highlight for life. Spatial Correspondence.
保留并完善自身结构的同时,来捕捉人及事物与处地空间所关联的常态。
Whileretaining and improving its own structure, to capture people and things andplace space associated with the normal.
以重组的方式来梳理相邻公区所对应的体验感受,使其再双向独立后,也能尝试另一种日常发生的可能性。
Theway to reorganize the adjacent public areas corresponding to the experience offeeling, so that after its two-way independence, but also to try anotherday-to-day possibility.
结合‘度’的衡量.更好的求善功能的完整性.匹配对应空间所要满足的诉求.多的结合实际功求来反复验证.尽可能的满足物质与精神双重的享受.
Combinethe measure of degree . Better for the integrity of the good function.Matching the demands that the corresponding space is intended to satisfy. Manyof the combination of actual work to repeated verification. As much as possibleto satisfy both material and spiritual enjoyment.
围绕人为的日常变化及所处空间的叙事性来作为情感寄托的可延展点,去探讨生活方式更多可能性的存在。
Aroundthe man-made daily changes and the narrative of the space as the emotionalsustenance of the extendable point to explore the existence of morepossibilities of life style.
伴有反思的心态去验证空间的切实可操作性,归于实际,归于体验。
Itis accompanied by a reflective state of mind that validates the Operability ofspace, as a matter of fact, as a matter of experience.
伴有反思的心态去验证空间的切实可操作性,归于实际,归于体验。
Itis accompanied by a reflective state of mind that validates the Operability ofspace, as a matter of fact, as a matter of experience.
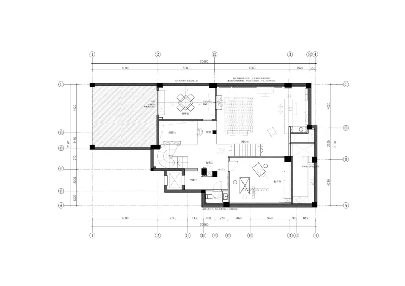
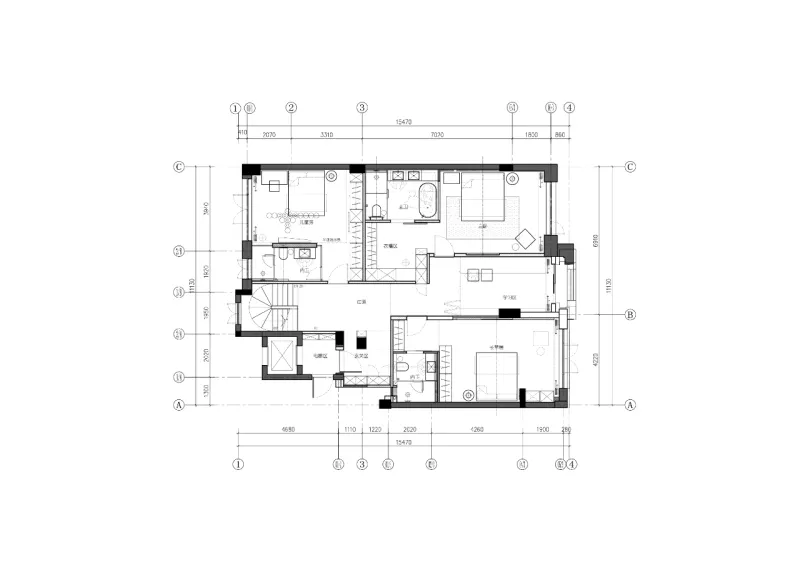
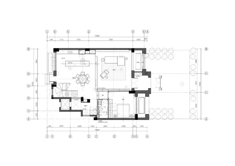
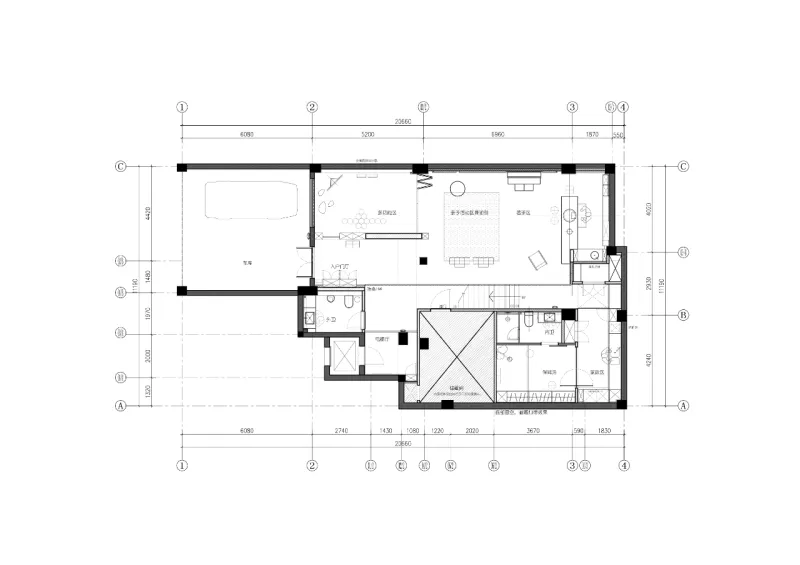
DRAWING PRESENTATION
– Name | 项目名称 –
序 述
– Co-creative Design | 联合主创设计 –
姜万静 . 兰斯
-Project Name | 项目地点 –
温州.乐清
– Area | 项目面积 –
550㎡
– Project time|项目时间 –
2021年
千上设计 执行董事 / 高级合伙人
我们心胸广阔,有容乃大,
我们专注美学,积极向上;
In person,Inmatter,In content,
In the Thousands
Our mind wide,tolerance is a great,We focus on aesthetics, positive……;
千上设计继续肩负千盛国际原有的使命,以“坦诚,担当,专注,向上”为公司的核心价值观,以全新的设计公司定位,聚集一批对设计有理想有追求的优秀设计师,集众人之智,及时的捕捉市场流行元素,快速的通过信息传送及互动形式带动设计观念的不断进步,充分的尊重本土文化以及当地人们的生活习惯,专注空间美学创新;
KINSUN designcontinue to shoulder the mission of KINSEN internationali original,Tohonest, bear, focus,upward for the companys core values,With new design company positioning, gathered a batch of designideal pursuit of excellent designers, Set of all wisdom, in a timely manner tocapture the market popular element, quickly pass the information transfer andinteractive form design idea of progress, fully respect the local culture andlocal peoples habits and customs, focus on aesthetic innovation space;
在未来的发展道路上,千上依旧秉持严谨的职业态度,结合周边成熟的项目顾问资源系统,以专业的设计和卓越的服务来对待每一位业主,以解决并改善城市人居环境而努力践行;
On the path ofdevelopment in the future, KINSUN still uphold the strict professionalattitude, combining the resources of the surrounding mature project consultantsystem, with professional design and excellent service to treat every owner,efforts to resolve and improve urban human settlements environment andpractice;
内容策划 / Presented
策划 Producer :Mei Ji File
撰文 Writer:Long 排版 Editor:W/fei
图片版权 Copyrigh

