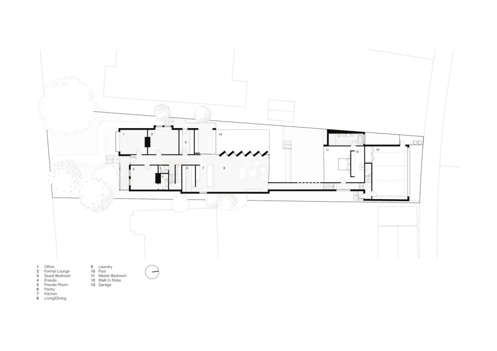
住宅的扩建部分利用现有的剖面挤压通过场地,减少了一部分体量来容纳一个新的游泳池和中央花园。随着场地朝向后方的角度变窄,群众的安排编辑了对邻近场地树木的看法或将注意力集中到内部庭院;封锁了邻近的房屋。
在西端,挤压被切掉,以容纳一个带有大型花岗岩刀片的游泳池。叶片朝向正北方,让冬季的阳光进入生活空间,阻挡了邻近房屋的视线。在外部,叶片提供了一个简单的姿态,因为它的垂直性是提高了水的反射。
扩展分为两个用途;挤压连接到现有的住宅和卧室翼,通过半地下连接。卧室的一楼覆盖着黑色的铝条,以减少体量,并使其退到背景中。主卧室主要利用场地的地形;允许面向庭院的全玻璃墙,同时从对面的起居/用餐区看不到。
黑色、白色、灰色花岗岩和美国橡木的最小颜色和饰面被选择;由于材质的纹理是焦点,创造了微妙的差异。













建筑设计:Mostaghim & Associates 项目位置: Canterbury, Australia 主创设计:Ashkan Mostaghim 设计面积:831.0 m2 设计时间:2018 摄影师:Romello Pereira 制造商:Austral Bricks, Havwoods, Miele, iGuzzini
版权声明:本文内容由用户自行发布上传或投稿由设计芝士代为发布,版权归原作者所有,设计芝士不拥有其著作权,亦不承担相应法律责任。如果您发现本站中有涉嫌抄袭或侵权的内容,请点此提交工单进行举报,一经查实,本站将立刻删除涉嫌侵权内容。

