本公寓项目坐落于罗马南部一个著名的多民族郊区Quadraro内。这座90平方米的公寓经过Margine更新改造,已经彻底改头换面。Margine是罗马当地的一家建筑公司,由Giulio Ciccarese和Valentina Pontieri共同创立。
建筑师将本公寓命名为Nisida,意为Flegree岛上的珍珠,其灵感来源于住户的职业——一位来自坎帕尼亚的年轻的广告文案创作者。住户是创造新生代中的一员,在过去的十年内,他们作为文化的创造者,在这一片区域内定居。

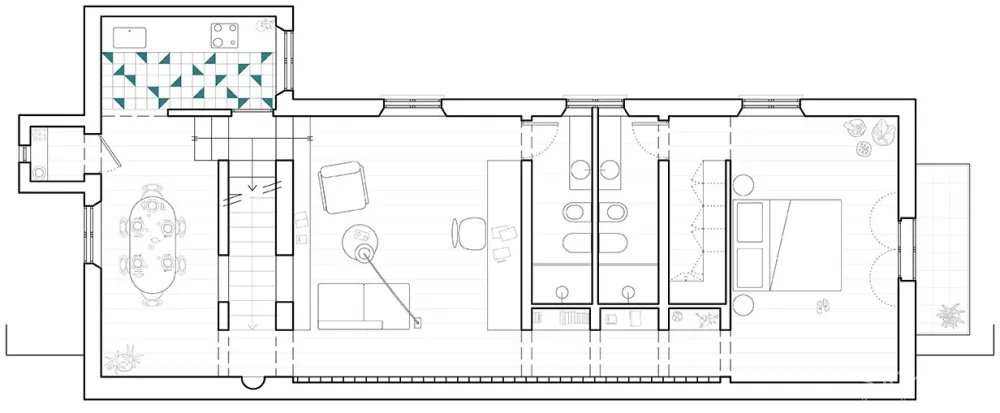
这是一座20世纪50年代的传统住宅,位于一个简易公寓楼的一层,原有的内部空间狭窄而缺少光线,铺砌的屋顶只能通过卫生间到达,室内空间通过一条常年缺乏光照的长走廊连接,并不温馨舒适。
建筑师对室内空间进行了改造,使其可以适应当代的生活方式,同时创造了一个简单却明亮的家庭工作室,使公寓变成一个既宜居、又可以在这里工作的空间。本项目重新思考并合理规划了空间布局,从而增强了空间体验感、改善了室内功能:建筑师拆除了室内的多片隔墙,不仅将阳光引入室内,更增加了各个空间之间的渗透性,将一个单一的平面几何图形打造为一个多功能的开放空间。此外,建筑师还着重考虑了连接着建筑首层、二层和露台的楼梯空间。墙壁上两个圆形的洞口将阳光引入第一段楼梯上,原本沉闷无光的空间瞬间明亮活泼了起来,而这两个洞口,不仅成为了建筑最具特色的标志之一,更为住户之间的视觉交流提供了可能性。通向屋顶的第二段楼梯在改造前只能通过卫生间达到,因此建筑师将其与厨房相结合。如今,在中间休息平台的帮助下,处在起居室和餐厅的人们都可以直接到达楼梯。

原先位于公寓中心的小卧室被改造成了一个综合辅助空间,不仅包含了两间卫生间(其中一间可以从现在的卧室直接进入)以及一个步入式衣帽间,还可以作为卫生间前室,进行干湿分离。综合辅助空间通过一条带有书架的走廊与起居室分隔开来。
从形式上看,极简主义覆盖了所有空间。公寓的承重砖墙并未经过表面灰泥处理,而是直接被粉刷成白色;起居室内高差形成的台阶平面直接以粗粒混凝土的形态展现在人们眼前,作为长凳和工作台;浅色的橡木地板与书架、步入式衣帽间和室内家具和谐统一;浅色的洞石覆盖在两个完全相同的卫生间的表面,与门槛和楼梯相匹配;厨房的地板和后墙面则将手工瓷砖作为贴面,蓝白相间的几何图案创造出一种干净简单的空间氛围。

建筑师解释道:“立足于Quadraro地区正在经历的艺术复兴运动,我们希望通过这个项目来探讨建筑、艺术和摄影在图像构成中的干扰性和互补性:缓慢的建筑改造进程、闪电般的艺术灵感瞬间以及永恒的摄影照片,三者交织在一起。我们沉迷于混合、混乱和重叠的想法和概念。最终,一个极简的、原始的、纯净的空间变成了一个充实的、温暖的、真实的生活环境。”






▼平面图
▼剖面图
设计公司:Margine 位置:意大利 类型:建筑 材料:洞石 水泥 混凝土 标签:renovation Rome Small and Delicate Residence 小而美的住宅 改造 罗马
版权声明:本文内容由用户自行发布上传或投稿由设计芝士代为发布,版权归原作者所有,设计芝士不拥有其著作权,亦不承担相应法律责任。如果您发现本站中有涉嫌抄袭或侵权的内容,请点此提交工单进行举报,一经查实,本站将立刻删除涉嫌侵权内容。

