顶层餐厅 ©南图摄影
每一段故事诞生的地方,都有一种“美”存在。我们与其邂逅,被其触动,心生涟漪,新的故事便随之诞生。 ——赤木明登
探索与突破,对应时间与契机,二者缺一不可。经过数年的沉淀,尺镀仿若冻土中的种子,已开出了花。而与觅隐邂逅,好似久别重逢,给予了双方无限可能。
▼设计一瞥 ©南图摄影
大隐于城,不隐于世,寻觅良久,终隐而居。基于这样的创业理念几个年轻人走到了一起,我很欣赏几位主理人,他们年轻、坚毅而笃定。对于酒店项目一直很感兴趣,在他们的提议下,尺镀加入其中。身份的转变也使我们对觅隐酒店的感情变得不同,有了更高的期许。
▼觅隐酒店 ©南图摄影
在一本书上看到一句话,旅游的含义是什么,是寻求反差大的生活。每一段旅程,都会带来异于常态生活的体验,进而需要更多的仪式感。
觅隐选址位于长沙芙蓉区车站北路的湘绣博物馆内,与匆忙喧闹的火车站为邻,人群熙攘,脚步纷杂。
▼酒店外观 ©南图摄影
一种解决空间属性的逻辑体系
《桃花源记》有述:初极狭,才通人。入口空间序位的错次,意味着新的开放与延伸。复行数十步,豁然开朗。
觅隐伫立于闹市之间,自行营造一方天地,拥有着独特的情绪感染力。简洁、平衡的建筑构造,柔和的光线透过玻璃砖,光与影之间,朦胧感与通透感相互融合,达到一种隔而不疏的空间氛围。
▼入口区域 ©南图摄影
彰显创造者的美学与态度
▼大堂轴测分析图 ©尺镀美学
曲线源于自然,灵动且不泛滥,用流动打破规整,带来沟通与碰撞。延续了建筑的构造感,酒店大堂柔和的弧面提升了整体空间氛围。
▼酒店大堂 ©南图摄影
以中性的色彩美学为基调,无彩色与暖调的咖色相互补充,一抹深色,使空间静默下来,将温柔缓缓释放。
柔涓的水流坠落在水面上,荡起一圈小涡,我们喜欢这种流动性,有种轻盈的感觉。
▼大堂和休息区 ©南图摄影
开放式的休息区,用下沉的块面使空间更具层次感。绛红色的皮艺沙发延续了视觉焦点,构成了人与空间交流的介质。
▼下沉休息区 ©南图摄影
在这里,使用连续性的弧面墙体分割走廊,似隔非隔,虚实相间,消解了走道的规则感。左侧则以水造景,上善若水,水利万物柔而不争,用感性与柔和去延伸和铺陈。
▼从休息区望向走廊 ©南图摄影
▼餐厅轴测分析图 ©尺镀美学
登高方能望远,餐厅位于顶层。建筑之上的露台空间被规划整合,选用带有朴质的木色与原生的绿植作为主色调,大面积的落地玻璃,虚实相生,从而使餐厅功能与环境和谐相处。
▼顶层餐厅 ©南图摄影
隐者,向往着隐于绿野。餐厅空间被木材与绿植包裹着,透过玻璃可以看到望见市井百象。
▼绿植景观 ©南图摄影
同时使用暖灰的皮沙发搭配木色餐桌,尝试以干净生态的色彩来激发人的味蕾。
▼客房轴测分析图 ©尺镀美学
觅隐共有64间客房,十几种房型,且同一种房型的系列房间又有所区别。并非模块化设计,空间的塑造基于对生活方式的理解,再用点线面演绎出相异的形态。
▼客房概览 ©南图摄影
“觅隐”,解其字意,即觅得隐处。在空间之中尺镀致力于化繁为简,为旅人提供一个消解空间,掸去一身尘灰,轻装履行。
▼化繁为简的空间 ©南图摄影
房型的命名以“觅”字为姓氏,取单字为名,便有了“觅逸、觅静、觅辰、觅雅、觅览……”,以星空庭院、LOFT复式、亲子套房为典型,为客人展现觅隐的多元化与包容性。
▼客房卧室 ©南图摄影
一千个人有一千种思考的方式,个体差异性之间的差异性造就了五彩缤纷的世界,而在个性之中亦存在着共性。空间给人带来的无形感受,是一种流动着的状态,在某一个节点,人会拥有同样的情感认知,短暂而美好。
▼带庭院的客房 ©南图摄影
▼庭院浴池 ©南图摄影
64间客房,均承载着时光的记忆,用体块起承转合的形态来发掘和构筑空间的形态与功能。摒弃隐晦的藏匿,配合纯粹与留白,既肆意展开又有所保留,满足人们的探索性与好奇心。
▼室内细节 ©南图摄影
空间中的台面均采用现场浇筑,表面用细腻的纹理包裹,凸显空间构造感。软装陈设的选取以表现艺术性为目地,客人舒缓精神之际,也会对生活的美学有更深理解。
▼客房会客厅 ©南图摄影
无论造型如何千变万化,点、线、面、体都是其变换的基点。我们用纯粹与留白来思考觅隐的空间,摒弃隐晦的藏匿,直白的表现线条与体块之美。
▼空间细节 ©南图摄影
品牌的塑造基于品质的追求,可以提供最基础的信任感。觅隐的品牌文化源于对生活美学与空间美学的研究与理解,而表达与传递便尤为重要。从VI元素的拆解应用,到每一项的具体实践,这个空间给予了具象的表达与回应。
▼品牌和平面设计 ©尺镀美学
怀着为客户提供“一千零一夜”美妙体验的初心与使命,觅隐品牌计划以“千店千面”的形式向前推进,未来将会有五至六间酒店在长沙落地。这是一种使命与责任,觅隐及尺镀一直在努力前进,沉稳且坚定。
▼功能区域分析图 ©尺镀美学
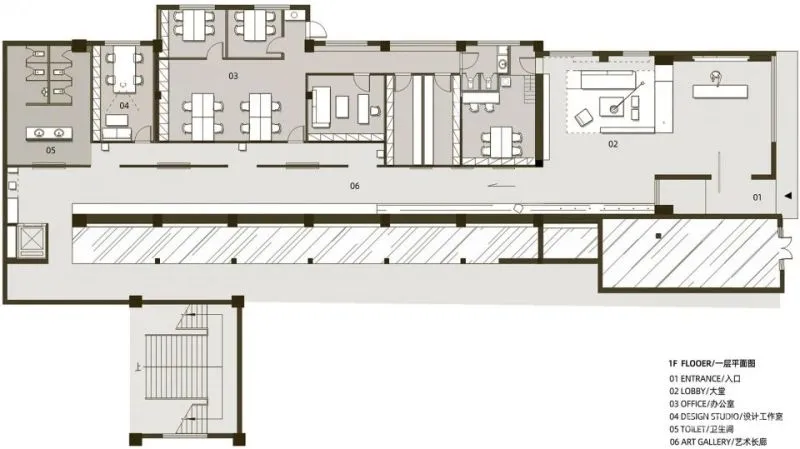
▼一层平面图 ©尺镀美学
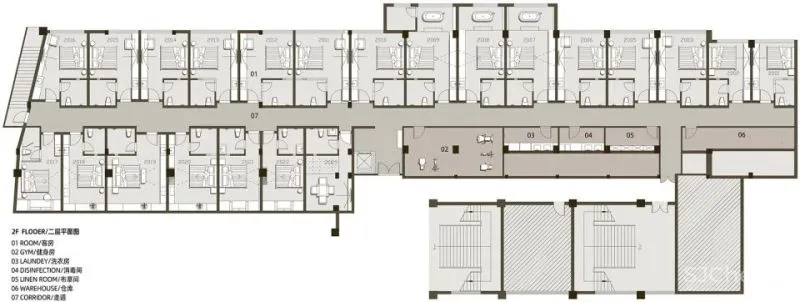
▼二层平面图 ©尺镀美学
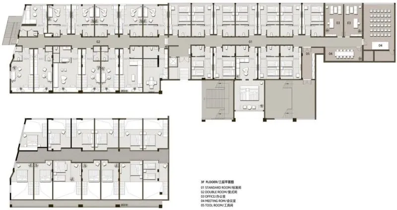
▼三层平面图 ©尺镀美学
▼四层平面图 ©尺镀美学
项目名称:觅隐酒店 设计方:湖南尺镀美学装饰工程设计有限公司 联系邮箱:75933860@qq.com;1129221240@qq.com 项目设计 – 完成年份:2019-2020 主创及设计团队:尺镀美学 项目地址:湖南省长沙市芙蓉区韭菜园街道车站北路65.67号 建筑面积:3800平方米 摄影版权:南图摄影 客户:觅隐

