项目名称:山水比德、ANZOHOME
设计机构:星艺-谭立予工作室
参与设计:张林,陈泳诗,葛鑫
项目面积:3000m²、500m²
面对的是细长的有着大面东向窗的空间
这里被设置成前台接待区
设计了一个超过20米的前台
台面上是设计师亲手堆积的青苔山景
三面墙体都可以自动开合的会议室
变成一个设计师们集会的广场
进入明亮、安静的办公室里
黑钢板 木饰面 水磨石
呈现的是相融相生的质感
ANALYSIS DIAGRAM
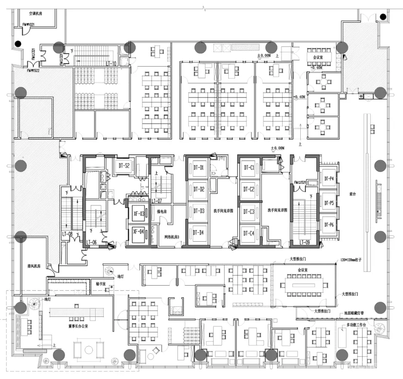
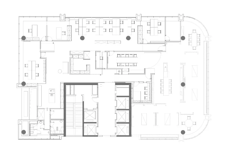
ANZOHOME 平面图
ANZOHOME 手稿图
充分利用挖掘并做最优化呈现

