未来·太空·星球·科幻
寰宇是永恒的主题,我们将掀开一场太空之旅,
将科技、机能、未来感的概念拉入当下时空,交错重叠。
Future, space, planet, science fiction.
The world is the eternal theme, we will open a journey into space,The concept of science and technology, function and futurism is pulled into the psent time and space, alternating and overlapping.
D E S I G N
提起星际、太空之战、科幻,我们记忆中浮现的电影必不可少的便是《星球大战》。无论是战舰军团的硬核对战,亦或是光剑以及绝地武士的“原力”,是多少人竞相模仿的对象。我们从星战中汲取灵感,采集表现元素结合当下艺术,将缩影投放于空间与建筑结构,以科技、探索未知的前瞻性思路,打造一场未来-太空的概念主题。
When it comes to interstellar, space war, science fiction, the movie that comes to mind is Star Wars. Whether its the hardcore battles of the Battleship Legion, or the lightsabers and the Force of the Jedi Knights, theres been a lot of imitators. We draw inspiration from Star Wars, collect expssion elements and combine with current art, and put miniature into space and architectural structure. With the forward-looking thinking of science and technology and exploring the unknown, we create a concept theme of future – space.
不同于传统意义上的居住空间寻求中庸,本着收藏、聚会的工作室功能,更具包容开放的空间载体,我们将更大胆的理念、结构、色彩应用在这次策划之中。颠覆传统居住形态,以超时空题材打造一场全新的居住之旅。
Different from the traditional sense of living space seeking moderation, in line with the studio function of collection and gathering, more inclusive and open space carrier, we will be more bold concept, structure, color applied in this planning. Overturn the traditional living form, create a new living journey with the theme of space and time.
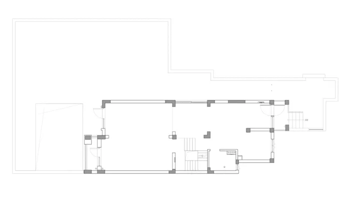
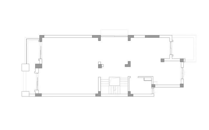
依据建筑结构规划室内布局,内外共融;改变入户位置,打造户外长廊加持入室仪式感。
According to the building structure planning indoor layout, internal and external co-integration; Change the entrance position, create outdoor corridor to enhance the sense of entrance ceremony.
借助建筑本身塑造室内微建筑体感,入户光廊-L形廊架阵列式排开,无限的延伸、递进……
With the help of the building itself to shape the sense of indoor micro-architecture, indoor light corridor – L-shaped corridor array, infinite extension, progressive……
茶室做挑空处理,光凭借通透玻璃顶肆意挥洒,自然共生调性十足。
Teahouse to do empty processing, light with transparent glass roof wanton spilling, natural symbiotic tone full.
旋转楼梯底部辅以光带勾勒姿态,太空人漫步探寻,
掀起一场未知的冒险旅程。
At the bottom of the spiral staircase, light bands outline the posture, and the astronauts wander and explore, setting off an adventure into the unknown.
原本入户位置与厨房合并衍生出社交厨房,舒适度、独立性都得到极大提升,加入跳跃的明快黄,一反常态提升空间趣味性。
The original entry location and the kitchen were merged to create a social kitchen. The comfort and independence were greatly improved. The jumping bright yellow was added, which unnaturally enhanced the spaces interest.
手办潮玩是屋主最喜欢的藏品,目之所及都可见到手办展示,说是为收藏品而打造的陈设也不为过。
Hand do tide to play is the collection that house advocate likes most, the place of the eye and can be seen hand do to show, saying is to collect and the display that makes also does not pass.
在暗黑的无边宇宙中,我们这一抹抹生命便是最为耀眼的形态,颜色上的张扬、肆意表达生命与宇宙的相对存在形式。
In the dark boundless universe, our life is the most dazzling form, the color of publicity, wanton expssion of life and the existence of the universe relative form.
各个墙面开不同形式的窗洞,室内与庭院紧密融合,多行为路线开启内外互动模式。
Different forms of window holes are opened on each wall, and the interior and courtyard are closely integrated, and multiple behavior routes open the internal and external interaction mode.
楼梯正对入口复刻黑武士专用钛战机头,引领第一视觉感受进入异域时空,开启星舰沉浸式体验。
The staircase is directly opposite the entrance with a replica of Darth Vaders titanium fighter head, leading the first visual experience into the alien space and time, and opening the Starship immersive experience.
以灰、黑主导的暗黑系走向、金属材质重工打造外太空科技感、未来感。顶面灵感来自于太空船休眠仓,并将星战的经典光剑元素引入其中,电路板纹路化身层板柜展示手办,光感、艺术、主题、喜好糅合为一。
With gray, black leading dark trend, metal heavy industry to create a sense of outer space science and technology, sense of the future. The top surface is inspired by the space ship dormant cabin, and introduces classic Star Wars lightsaber elements into it. The circuit board pattern is incarnated into the display hand of the panel cabinet, which combines light, art, theme and taste into one.
歼星舰仓门造型-星宇壁画,置身太空星船游走于浩瀚宇宙。
Star Destroyer warehouse door modeling – star murals, place yourself in the space star ship wandering in the vast universe.
主卧卫生间隔墙元素采集于超级歼星舰,浴缸顶面元素来源于X战机;加入屋主喜欢的热烈红形成空间色彩反差,不拘一格。
The elements of the partition wall of the master bathroom were collected from the Super Star Destroyer, and the elements of the top surface of the bathtub came from the X fighter plane. Join the warm red that house advocate likes to form spatial colour contrast, not eclectic.
结合当下概念性艺术形式,将未来感建立在时空衔接的基础之上,滋养生长。
Combined with the current conceptual art form, the sense of the future is based on the connection between time and space, nourishing and growing.
考虑是儿童睡眠区,我们并未延续空间的暗黑色系,代之为清爽神秘的星空蓝,结合舱体灰铺展开来;传送仓式淋浴区,柜·门的舱门机能结构,仿佛置身于宇宙舱内,穿梭于两个时空领域。
Considering that it is a childrens sleeping area, we did not continue the dark color of the space, instead, we used a refreshing and mysterious starry sky blue, which was spad out with cabin gray. Transmission warehouse type shower area, the hatch structure of the toilet door, as if place oneself in the space cabin, shuttling between two space and time domains.
设计机构 I Designer Department:菲拉设计
项目地址 I Project address:浙江杭州 · 风雅乐府
项目类型 I Project type:全案
面积 I Square Meters:500㎡
户型 I Door Model:排屋
菲拉设计是一家设计、施工、软装配饰一体化的家居全产业链发展模式企业。以设计为核心竞争力,服务品质为企业承重墙。公司服务定位于社会财智精英人士和高端客户,为业主提供最专业、省心的高品质定制服务。


非常好