项目名称 | 丽江本末设计办公室
项目地点 | 云南丽江
项目面积 | 270㎡
项目摄影 | more foto
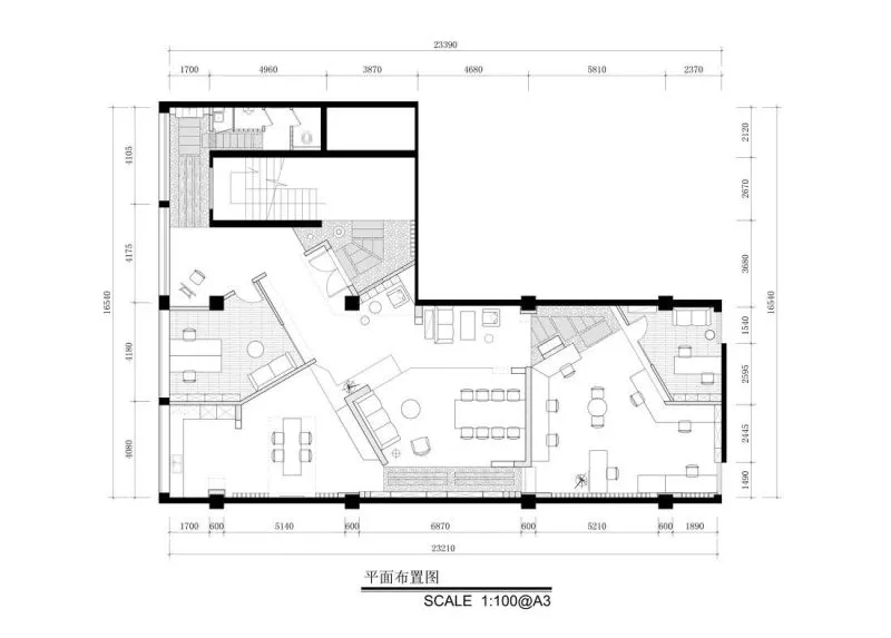
平面上用30度斜线划分,打破方正的空间。
空间设计强调冷静和理性,
整个空间的斜线构成与几何体陈设共融
大量的留白创造了简约的空间表面。
整体空间纯净整洁,在灰色调中高度统一,
强化人对空间框架和秩序的知觉。
老木头和老家具的运用,局部调和空间冷色,
古老残破与现代整洁碰撞交融
项目名称 | 丽江本末设计办公室
项目地点 | 云南丽江
项目面积 | 270㎡
项目摄影 | more foto
平面上用30度斜线划分,打破方正的空间。
空间设计强调冷静和理性,
整个空间的斜线构成与几何体陈设共融
大量的留白创造了简约的空间表面。
整体空间纯净整洁,在灰色调中高度统一,
强化人对空间框架和秩序的知觉。
老木头和老家具的运用,局部调和空间冷色,
古老残破与现代整洁碰撞交融
点点赞赏,手留余香