家,我们在世界的一角!
家宅在自然的风暴和人生的风暴中保卫着人;
它既是身体又是灵魂。
——Gaston Bachelard
我们的家:一砖一植,一桌一椅,一陈一设都来自我们的内心:我们的记忆,我们的向往,我们的旅途,我们的阅读,我与我家人的关系 …
它所展现的一切是我们内里真实的自己,家是我们在世界的一角——孩子在自己童年的家宅中建立起最初对世界和自我的认识,而后又将这些认识转化为记忆和依恋感,最终它们又穿越来到当下,来到新家的空间里,跟我们一起生活——我们通过创造 设计我们的新家实现这个过程,就像家人代际之间的相互影响。这个家的样貌也呈现出相互作用的交融和彼此区分的差异。
在这个案例中 ”风格“ 这样的词汇仅仅用来作为交流和达成共识的工具和符号。它不是我们在讨论的核心,也并不是家的核心;我们对家的塑造呈现出了对自己的理解,对自然的理解 和对生活的理解。这些理解外化为家宅的样子。
庭院 | 墙外归来 墙内家人笑
”我回忆中的家,门前有一方庭院,母亲栽种着四时的花木,屋檐下的椅子上,父亲有时会坐着看书或者听广播,或者帮母亲侍弄花草,大狗在院子里跟小孩子嬉闹 …..“
回忆里庭院的幸福的安定感 来到了当下的时空里 来到了此刻的家宅中
倚在厨房门边 可以望见整个院子 和院子里的家人
厅堂 | 开放友好的界面
通过院落登堂入室,仍然是惬意放松的生活气,甚至模糊了作为别墅客餐厅长久以来需要端庄正式的形象标签,营造了一个界面友好,态度开放的家庭空间。谈笑着走进客厅,于主人而言是如愿回到了家,与客人而言是有亲和力的相逢。像文章开场的序言,舒缓而留有余地。
娱乐&社交
恬淡松弛只是家庭生活的一面,生活还需要相聚,需要聚会中的热闹和熙攘与熟悉或陌生的面孔汇聚一堂。
社交空间的设计焦点放在了运用色彩、灯光、材质和形式的变化,对比来调动气氛。作为空间主角的人有感于氛围,受影响于氛围从内部调动自己,与他人或环境发生交流,空间才有了故事。
二层 是孩子们的世界
他们的语言是独立和共享,是个性和对话、探索和创造,自由而无拘束,陪伴彼此成长。
卧 室
卧室纯粹地为了夜晚或清晨,安静地入睡和醒来。
负二层 | 幸福深处
真实的幸福感,来自内在的满足和无所期待;由此而产生的自在和包容是人心最底层的基调和底气;
无论门外的世界怎样,在内里,我们始终被家拥抱;就像这一层的样子,既流动开敞,又亲切安宁;既野性混搭,又考究精致;有看不完的书,随处可窝;天光云影,浅池鱼趣;摆弄花草的间歇里,随手放一张唱片,也都像重逢了一段时光;
无论是热闹温情,还是安静独处,这里都具备不被打扰的自然而然。
喜欢的生活的样子,大抵如此。
角落,回忆和幻想的安身之处
关于它的梦想数不胜数
写在最后
那么这一次设计师做了些什么——
一千个读者心中 有一千个哈姆雷特 悲剧认定是对这个故事认知的唯一共同点;对于同一个场景的体验差异 来自每个走进这个空间的人内在的情感投射 而共情的部分来自我们内在的文化共鸣. 将能够引起共鸣的呈现作为基础 在此之上 追求进一步的差异化的展现 才会使空间呈现出更立体的性格 . 实际上这种性格也是对虚拟的空间主人的人设描述 —— 正是差异塑造了每一个人 或者说将个体的人区别开。
对于不同场景的塑造 来自对于人在每个生活状态的观察和情境感受力 之后才有理想化的还原 对于生活细节故事性的展现 。
在这个户型中 刻意放大了各个空间使用场景上的差异 对于家庭成员所处的年龄段特征 个性特点 生活和精神诉求进行了详尽的描述和表达 而户型的布局安排使得场景转换得以自然实现 于是在现场 就出现了一个又一个逐层划分的场景。
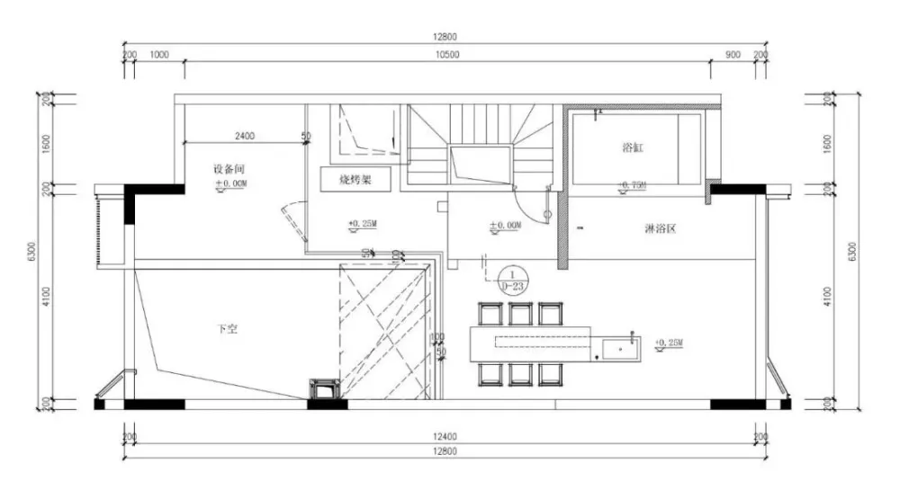
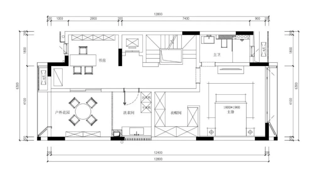
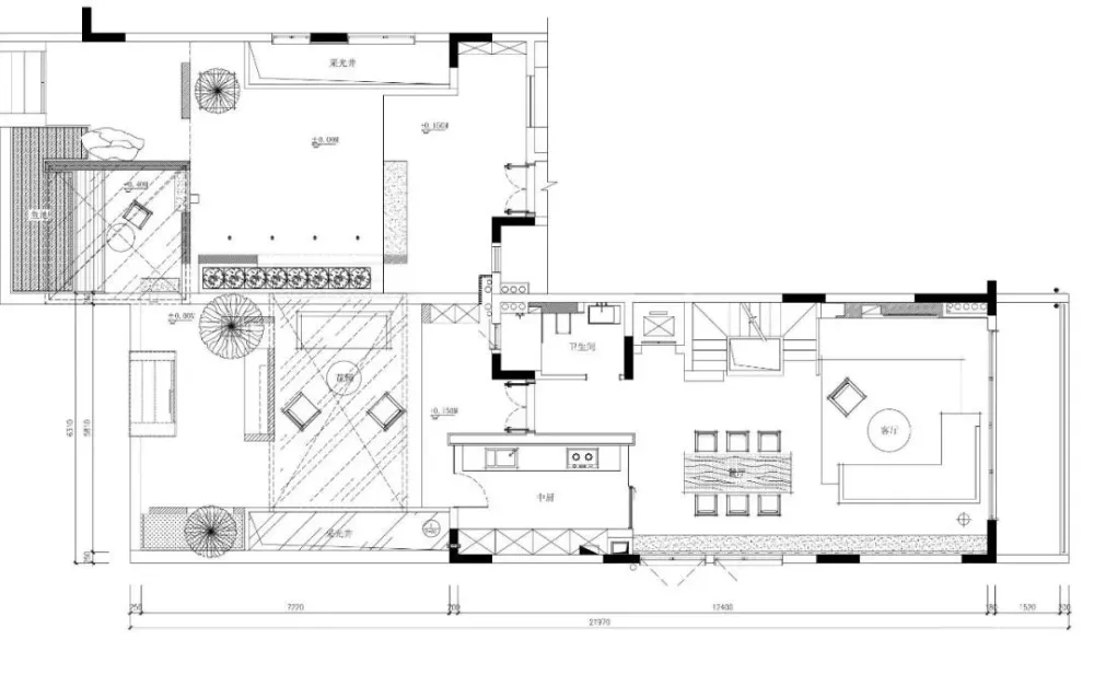
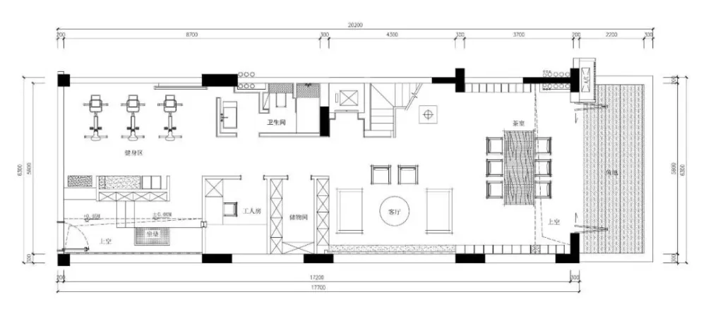
户型平面
▼
▲首 层
▲二 层
▲三 层
▲四 层
▲负 一 层
▲负 二 层
广州澄里空间设计是成立于2018年的独立软装机构,由一群致力于探索空间/场景/人物三者关系的青年设计师组建,创立于广州。
将软装设计应用于生活的诗意化表达,以场景联结人与空间,以场景唤醒人内在对于特定场所的依恋,向内实现回归之路。团队在项目实践中以项目需求为前提,深化背景诉求和概念延伸,实现多角度和多元化的设计表达。
项目名称:力迅·榕墅里B1户型
项目地址:佛山市南海区里水镇河村碧湖路1号
开 发 商:力迅地产
项目面积:580㎡
软装设计:广州澄里空间
完成时间:2018年10月
空间摄影:JOSSY

