*篇幅有限,本文仅展示部分内容,完整内容请下载查看。
【标题】
《 室内设计师的方案头脑风暴 》 同个户型N种方案的疯狂脑洞演绎16套丨JPG格式丨991M
【格式】JPG
【大小】991M
【数量】16套
图文详情
快节奏、高频率的生活
使得人们的生活方式也发生了转变
对于家的概念,也不断地被赋予更多含义
不但要满足日常的生活起居
还要有更大的公共空间
进行真正的娱乐社交和休闲放松
正因如此,”横厅”的格局
越来越受到广大年轻人的青睐
这几年从高端住宅项目到普通商品房
都开始追逐横厅户型设计
开敞透亮的横厅也更加
符合年轻人对理想生活的想象
作为设计师该如何做好
横厅户型的平面布局方案?
/
1
/
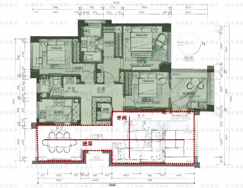
什么是横厅?
作在说明横厅之前
先给大家介绍一下竖厅的概念
通常大家所接触的常规户型
客餐厅都是竖厅的形式
开间<进深

竖厅的优点是客餐厅界限清晰
基本不用为布局操心
而横厅,则是开间>进深
客厅与餐厅连为一体,中间没有明显的分界线
开间:横墙之间的距离(东西墙之间的距离)
进深:与开间垂直,南北墙之间的距离
如果用开间和进深分辨横竖厅容易混淆
也可以这样来理解
客餐厅同面采光是横厅,客厅面采光是竖厅

/
2
/
横厅布局有哪些优势?
1.空间开阔大气
宽敞的横厅,空间尺度感更强
营造出开阔大气的视觉效果和居住体验
2.采光通风佳
横厅拥有更大采光面以及良好的通风效果
可以提高居住的舒适性
开阔的景观视野,拉近家与自然的距离

3.空间使用率高
横厅把走道纳入到客餐厅区域
没有明确的空间界限
可以提高户型的使用效率
减少空间的浪费。
4.百变多元化
横厅设计为客厅和餐厅
带来更多的可能性和多元化
为生活创造出更多畅想空间
孩子的玩耍区、大人的工作区……
满足家人的多重需求,增添生活情调

但是横厅并不符合中国传统的客厅布局
具有客餐厅界限模糊、房门多朝客餐厅开
私密性和隔音不如竖厅等的缺点
横厅虽然是这几年热门的户型
但比起竖厅,还是有很多设计师
都在苦恼它的布局问题
/
3
/
横厅在平面方案中该如何布局?
和竖厅空间最大的不同点在于
横厅在方案的布局,空间功能,动线设计等等
有更多的设计可能性
客厅+餐厅+ 收纳
横厅空间布置为客餐厅
这个是常规的横厅方案布局
也是非常实用的布局形式
客厅餐厅相连,同时辅以收纳功能
沙发作为两个空间的隔断
具有十足的空间感
同时增强住户的生活居住体验


客厅+餐厅+ 西厨
这种布局有两种设计的形式
第一种是客厅+餐桌岛台一体化
岛台上可放置水池和烤箱,完善西厨功能



第二种是客厅+餐厅+西厨操作台(含收纳)
收纳功能更加强化,更适合大开间的横厅布局


客厅+书房
在整个户型的平面中
有其他的空间可以放置餐厅
横厅的空间可以具备客厅与书房的叠加功能
书房既可以设置成开放式书房
同时也可以增加隔断门封闭式设计
或者书桌作为客厅与书房的隔断
将书桌放置于客厅沙发的后方


客厅+地台休闲空间
地台的第一作用是区分空间
高大的室内空间通常会给人以空旷感
这样其实不利于人们对家居
温馨的舒适、私密性较强的需求
在横厅适当位置设置地台,可降低高度
增强居住者心理上的稳定感与安全感
更重要的是,伸高的地台可以
使空间变得丰富,更有趣味性

客厅+卧室
如果业主家庭居住成员比较多
可以考虑将横厅打造成客厅与卧室结合的空间
充分利用多余的空间


客厅+儿童玩耍区
如果居住者家中有小孩
可以考虑在横厅设置客厅+儿童游乐区的功能
给小孩足够的空间玩耍
同时大人也方便看管孩子
儿童游乐区功能的设置具备弹性
等到小孩长大后不需要游乐空间
可以及时撤走,换之为书房或者茶室等等

/
3
/
客厅在横厅中的几种布局形式
将横厅的空间分区以及空间功能确定好以后
接下来重点在于客厅方面的布局优化
但是,在横厅空间对于客厅的布局
和传统客厅布局大有不同
沙发居中不靠墙
若是没有风水上的忌讳,这是最常见的设计方式
根据沙发摆放的位置将空间分隔开来。
沙发居中,直接在沙发后方布置餐桌椅
这也是横厅户型中比较常见的布置方案
这种设计方式需要注意沙发的尺寸
不能太大也不能太小,太大会影响动线
太小则会显得空间空旷
做方案的时候一定要考虑到对沙发尺寸的选择


电视背景墙做隔断
这是唐忠汉惯用的设计手法
可以通过解构主义设计的方式
设置电视背景墙的造型
电视背景墙作为两个空间的隔断
对两个空间具有起承转合的作用
电视背景墙可以与两个空间的功能叠加
所以电视背景墙可以和
看书(书桌)、用餐(餐厅)
还有收纳等等功能相互结合
充分合理的利用好空间


吧台隔断
横厅中客厅的布局,可以利用吧台作为隔断
吧台不宜过高,保证空间的开阔性
避免阻挡空间的整体视线
细长的吧台让客餐厅有了明确的划分
隔而不断的特性还能保证不同空间的互动交流
沙发靠窗
沙发靠窗摆放可以拥有绝佳的采光
背景墙视野明亮,让整个客厅都显得通透
但缺点是会遮挡部分光线,看电视会反光

无论什么样的空间
在平面方案布局上总会有若干种可能性
同一个户型
不同的设计师会做出不同的平面布局方案
这份资料推荐给大家
《室内设计师的方案头脑风暴》
16套不同空间的同户型N种方案的疯狂脑洞演绎
大平层 | 小户型 | 海景房 | 公寓


