该项目是位于泰国暖武里的一栋别墅,由曼谷事务所 Stu/D/O Architects 设计。混凝土是构成这栋别墅的主材料,材质质朴的气质富裕整个建筑低调粗狂的美感。
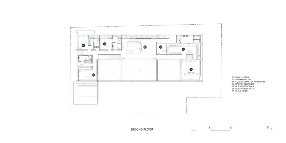
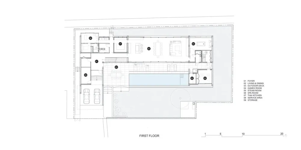
建筑共有两层,一层的平面与场地垂直;二层的墙体则与之相交。这两个相对平面的交点提供了整个项目的主要结构体系。
整栋别墅的占地面积为1545㎡,两层空间内分别设有客餐厅、厨房、游戏房、水疗室、4 间卧室、书房及私人泳池。
空间采用了开放式的布局,不同的功能区在空间内纵向排开,柔和的色调使室内重买的高级的质感。
大面积的玻璃移门可以将室外的景观尽收眼底,另一边又能把户外的绿植引入室内。
楼梯靠近玻璃幕墙而设,充沛的光线在照亮空间的同事也为楼梯增添了不少轻盈感。
设计师还在衣帽间内开了一个小天窗,梳妆台就近安放,这就更大限度的增强的室内的照明,是非常实用一处设计。
工程名称:Casa de Alisa别墅 坐落地点:泰国 暖武里 面积:1545 ㎡ 设计单位:Stu/D/O Architects 照明设计:in Contrast Design Studio 竣工时间:2019 摄影:Stu/D/O,Sofography,Sky|Ground

