设计机构|STUDIO.Y余颢凌设计事务所
设计内容|设计 施工 采购全案托管
主案设计|余颢凌 尹杰
深化设计|纪婧婷 施佳岑
执行设计|吕娜 温心浩 杨仕强
完工时间|2020.7
于私宅设计而言,曲线的价值概莫能外。此次项目位于山城重庆,设计极尽曲线的委婉表达之能事,正如这座城市的山河般宛曲逶迤,回环往复,吞吐灵动。
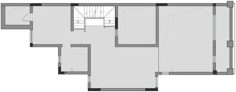
拾级而上,便步入负一层的客厅与茶室。
无论是中国传统美学中道家对"曲化坐度无弦曲"的无限向往,还是古希腊哲学家毕达哥拉斯对于“圆形”与“球体”的崇尚备至,都可以看出中西文化自古以来对曲线形态的偏爱。
西班牙“新艺术”运动的极大成者著名建筑师安东尼奥·高迪,就是将摩尔人建筑的装饰特征与生动的新艺术曲线手法相结合,形成了自己神秘、浪漫的建筑个性,在高迪的建筑中,曲线不仅仅作为装饰的线条而存在,有些甚至作为外观的结构而存在。难怪他信仰“直线属于人类,曲线属于上帝”。
吊顶、壁炉、沙发、电视墙中的圆弧线设计,从形态上表现饱满、稳定的视觉效果。
不同于直线的直白、冰冷与刻板,空间中蜿蜒迂回的曲线在娓娓道来的节奏感中,流动生发出更多的灵气,柔美之中传递出更多的飘逸、浑融与典雅,柔婉又庄重。
如渝城河道般弯曲的波形吊顶使空间功能划分更为明确,门厅的吊顶是一条抛物线,抛物线终点对应的是台阶,上升进入门厅的同时,屋面也不断升高。
空间中“曲”的主题在茶室中得到了延续,恣肆的曲线垂下轻盈无瑕的白色花朵灯。
“心远地自偏”的清净茶室,朴实无华,却在喧闹的现代城市生活中为人提供了一处慰藉心灵的“桃源”。
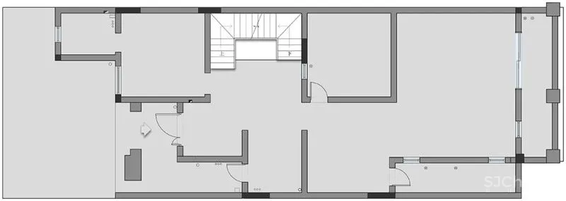
一楼,将入户门前移,打造出一条修长的入户门厅作为过渡地带。椭圆形的吊顶与菱形的地面拼接,在感性与理性的互动对话中形成了奇妙的张力之美。
菱形地拼向内延伸至餐厨空间,富于几何造型的多变。相对规则、接近正圆的椭圆形的吊顶,与空间中的“方”元素,形成刚柔相济的稳定感与力度感,同时漫向四周的扩张感,减弱了平面横线造成的压抑。让空间更加收放自如。
餐厨空间除了承载生活中的烟火气与人情味之外,还别具自然气息。
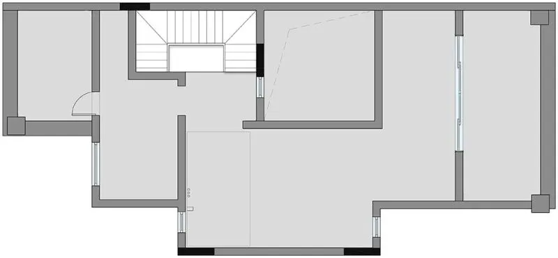
二楼家庭厅的弧度家具陈设既是对空间“曲”形态主题的呼应,又让人感觉到舒适温馨。
二楼的两间女儿房均为套房。并根据两个女孩不同的年龄个性与身心发展阶段做出了不同的设计方案。
粉色系的小女儿房充满天真烂漫的童心童趣。
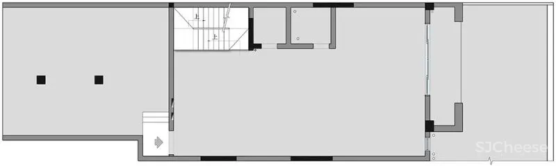
设计师将三楼逼仄不合理的原始平面加以改造与优化,打造了全新的主卧套间,并对每一间房屋的面积进行了恰当的分配,得到了更为合理的休憩之所。
△居于室内,远眺嘉陵江壮丽之景
从事室内设计行业21年
生活美学践行者、高级室内建筑师
中国室内装饰协会陈设艺术专业委员会副秘书长
四川尚舍生活设计创始人
Studio.Y室内设计事务所设计总监
BCSD柏城上建筑设计咨询(上海)有限公司 合伙人
余颢凌,从事室内设计行业20年,致力于私宅空间的全案设计订制服务,项目遍及全国。作品注重“科技、自然、生态、艺术“的引入,通过挖掘设计的生活底色,诠释空间与人的共生共长;在探索新与旧的平衡、传统与现代的对话之中,融入成都快与慢的生活节奏,寻根蓉城历史文化底蕴,将现代审美、文化、艺术与功能巧妙结合,打造“精致、都市、生活”于一体的现代家居设计。

