项目总面积578㎡,共三层,周围风景环绕,绿植矗立。T先生说厌倦了高楼迭起,霓虹闪烁,他希望家是温馨的回归,可以让父母孩子舒适而居,朋友们可以在此愉快相聚,找到心的方向。为了完成对未来生活的向往,遂委托观享际SKH室内设计,为他进行这场“家的塑造”。
Hallway / 玄关
内心就越向往愉悦宁静的格调
作为迎接回归的入户玄关
以木质 金属元素的结合
既增添童趣又兼具仪式感
Living Room / 客厅
依窗伴景,夕阳斜射,微风徐徐,白纱浮动
墙面与顶部线条丰富了层次感
黑色与黄色相撞 米色过渡
孩子们的笑声在整个客厅内萦绕
“居住”不再是简单的“栖息”
而是安放全家人幸福的私密空间
Dining Room / 餐厅
中西厨以简洁中性的灰色调为主
圆形餐桌更适合六口之家的用餐需求
家人相聚 or 会客宴请
更能体会到亲密自然、舒适惬意
Recreational Area / 休闲区
小型书吧、钢琴演奏、休息聊天
你将会感受到整个空间的力量
Parents Room / 长辈房
将宁静、舒缓的蓝色作为主色调
卧室楼层的划分也将两代人生活分离
Corridor / 走廊
Master Bedroom / 主卧
主卧设计层层剥离外界的纷扰
顶部以弧形设计拉高空间维度
大面积米白色调在光线晕染下尽显温柔
左右床头柜兼具收纳功能
Bathroom / 主卫
让美观与功能达成完美平衡
Study Room / 书房
为男主人划分出独立、私密的居家办公空间
Kids Room / 儿童房
同时蕴藏着男孩子的正能量
公主房纯洁清新、优雅大方
细腻的灯光搭配柔软的织物
儿童房关乎于色彩,关乎于趣味,关乎于功能,更关乎于一个家庭的未来与成长…
Negative first floor / 负一层
娱乐空间为即将到来的聚会 做好准备
酒窖、影视厅、休闲区、麻将室功能俱全
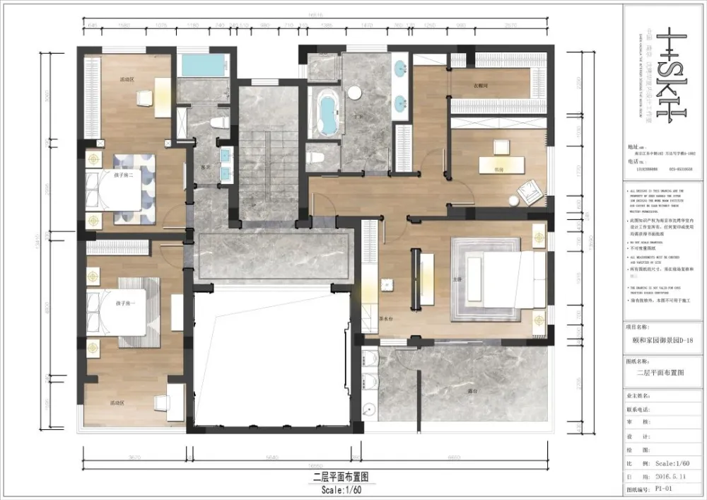
向右滑动,查看平面设计图
项目设计:南京观享际SKH室内设计
南京观享际SKH室内设计成立于2008年,是一家拥有资深背景、年轻、前卫的设计师团队,引进了国际流行设计的室内设计管理新理念,其专注于别墅、私人宅院、办公空间、展厅等。设计和施工及全程整体托管模式,拥有优质设计施工团队及配套高端材料资源,包括前期概念、施工图深化、效果图、现场施工负责、软装配饰等。从事装饰行业17年期间,累计全国近二十多个城市500套装修设计案例,一直坚持个性化的装饰设计,追求时代化的创新意识,公司正以适合自身、适应时代的前所未有的持续发展态势在装饰业界不断发展。在特色观念的鼓舞下,公司力争在装饰设计做出自身个性,与其他企业形成差异化。独特的构思和强大的设计后盾创建了鲜明的品牌形象及良好口碑。

