墨西哥工作室1540 Architecture最近完成了一个位于墨西哥瓜达拉哈拉的大都市地区的独立住宅项目Casa ZTG。这座“内向型”住宅是工作室为一对夫妇创建的,住宅内部以高大的大理石外墙为特色。1540 Architecture的设计目标是在形式和材料上创造一个永恒和优雅的氛围,这将反映业主的个性和年龄。
面对这一个平面基地,工作室将整个住宅想象成一个1200平方米的矩形建筑。外墙是砖砌的,上面覆盖着罗马大理石,正面由一面不透明的高墙组成,墙上有一个I形的反射池。一个矩形的开口提供了通往室内的入口,并让人瞥见郁郁葱葱的花园。由于周围环境的暗淡,建筑师决定创建一个“内向型”的住宅。
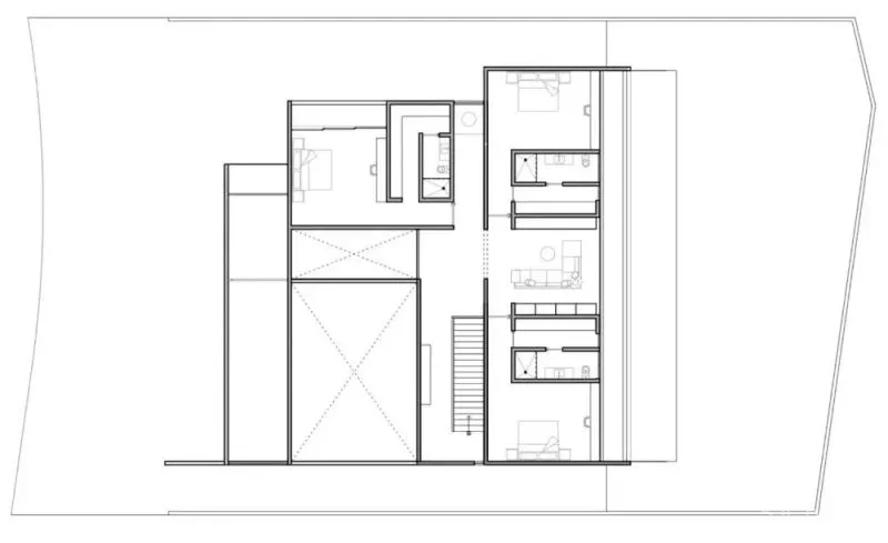
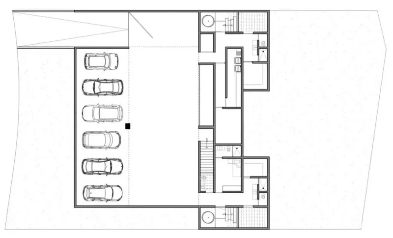
住宅位于一个私人回廊中,不提供任何有趣的外部景观。有限的玻璃也减少了太阳热量的吸收。住宅有三层,其中一层位于地下。在主楼的前半部,高大的走廊环绕着翠绿的花园。沿着走廊排列的是厨房、客厅、正式用餐区、小工作室和主卧套房。可伸缩的玻璃墙提供了通往后院的无缝通道,后院设有露台、游泳池和热水浴缸。工作室在住宅二层上设置了三间卧室和一个休息室,在地下室设有车库。
精致的泥土材料遍布整个住宅,包括用于地板、墙板和天花板的欧洲橡木。在公共区域,瓜皮绿大理石被用于客厅和正式用餐区之间,以创建厚重的隔墙。同时,主卧套间也使用了大理石。在这种情况下,灰色的山水纹大理石形成了床后面的一面墙,将睡眠区与浴室分开。“在建筑和家具中,我们决定使用具有永恒感官、物理和美学特征的材料、形状和细节,”1540 Architecture团队说。
About 1540 Architecture
1540 Architecture是一家位于墨西哥Jalisco的建筑及室内设计工作室,由创始人Oscar Quintero成立于2015年。工作室的使命是实现符合客户需求和期望的建筑产品设计,始终在项目中寻求高品质、舒适度和风格之间的平衡。

