LESH Studio以简洁的造型、完美的细节、时尚前卫的设计让无数的人为之心动。表达出了现在人所追求的生活,简单但精致,时尚却舒适。
创造了一个想要成为生活和感觉的空间,即使在有限的空是里也允许审美灵活性,让人感受明亮、温馨、细腻的空间情绪,以获得舒适的吸引力。
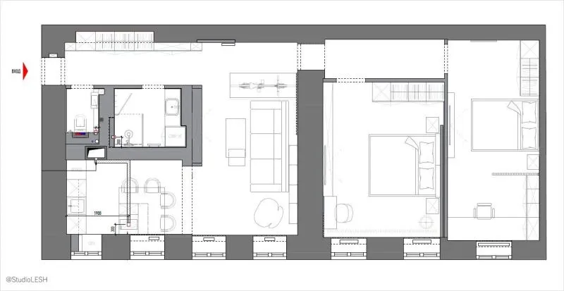
103㎡现代简约家庭住宅,由LESH Studio设计,合理的划分区域,使所有家庭成员居住感到舒适,各个细节做得非常棒。天花板的线条轮廓灯,浮床给人视觉失重的效果,落地式室内门被认为是现代室内设计的一大亮点。
85㎡的明亮公寓,一对年轻夫妇的家,
在此项目中,和谐创造了一组风格:
极简主义和斯堪的纳维亚风格。
对于使用简单形式,直线,光滑的外墙和简约家具的常见组成的结合。
85㎡现代风格的一室公寓,设计师用斯堪的纳维亚风格的元素将公寓的内部装饰成现代风格:在这里,使用天然材料,织物,绘画墙纸和具有石材质感的瓷器。
这里的主要布局决定是将厨房和客厅结合在一起,并为一对年轻夫妇创造功能性空间。将厨房区与起居室分隔开,还可以用作额外的烹饪空间。桌面由深色木材制成,与厨房外墙结合在一起,赋予了房间地位。
一对年轻夫妇新买的一套公寓,面积79㎡,设计师以一种符合人体工程学和功能的方式来组织公寓的空间。
该设计采用轻loft风格,利用混凝土制成的元素和各种功能的木板条。例如,大厅由木板条与客厅隔开,但在视觉上并没有减少空间。

