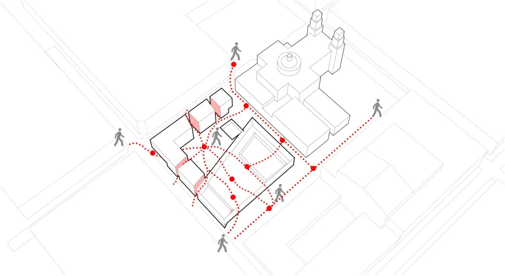
墨西哥音乐宫的建筑设计可以被定义为一个现代建筑,它的物理文脉具有巨大的历史价值。不仅因为它的位置在城市内部,而且主要是因为它的项目的性质是公开的,它的构思有潜力使它所在的历史城区恢复活力和再生。
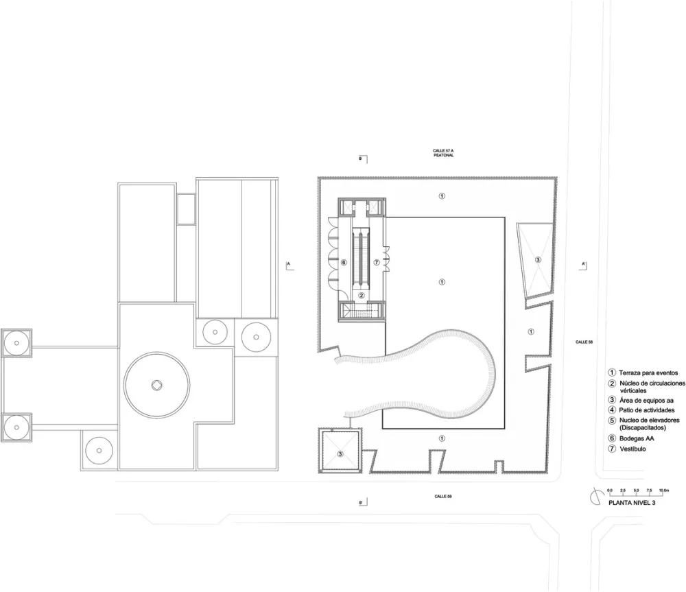
该建筑将成为国家资助的公共建筑项目的基准。它的设计概念不仅是公共空间的催化剂,同时增加周围建筑遗产的辨识度。为了达到这个目标,建筑不仅吸引了行人穿越公共空间,同时把人群带到临近的石墙和建于17世纪的圆顶寺。最后,屋顶作为一个绿色的平台,展示出周围的大教堂和三阶寺庙等宏伟建筑。
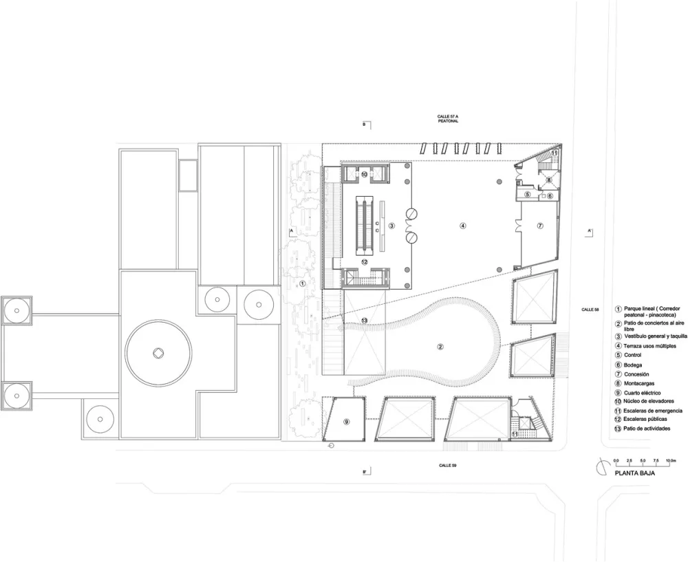
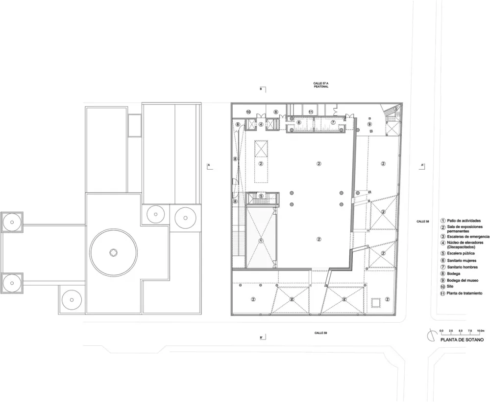
建筑有四层,根据三个主要使用目的划分出地上三层。地下为一层,1200平方米的展览空间分六个展厅,每个展厅都有一个特定的主题,讲述了墨西哥民族音乐从起源到今天的发展和演变。作为博物馆的补充,这一层包括一个商店、储藏区和杂物间。在街道层面,建筑基本上是一个开放的平面布局,行人可以通过。


除此之外,这一层还作为博物馆的入口,音乐厅和国家唱片及音乐图书馆(Fonoteca Nacional)。用户也可以通过数字方式访问。图书馆拥有650平方米的储藏空间以及多年的录像收集。 除了入口,街道层还有一个名为“Patio of Strings(弦乐天井)”的中心庭院,作为一个音乐表演空间,对公众和街道开放,可容纳400人。这个庭院允许独立的表演场地与主音乐厅同时运行,允许室内和室外表演空间的最大化。 主音乐厅可容纳450个座位,采用高性能声学可调嵌板,适合不同风格的音乐。它还拥有残疾人的所有设施,包括后台和专业录音棚。
除此之外,这一层还作为博物馆的入口,音乐厅和国家唱片及音乐图书馆(Fonoteca Nacional)。用户也可以通过数字方式访问。图书馆拥有650平方米的储藏空间以及多年的录像收集。 除了入口,街道层还有一个名为“Patio of Strings(弦乐天井)”的中心庭院,作为一个音乐表演空间,对公众和街道开放,可容纳400人。这个庭院允许独立的表演场地与主音乐厅同时运行,允许室内和室外表演空间的最大化。 主音乐厅可容纳450个座位,采用高性能声学可调嵌板,适合不同风格的音乐。它还拥有残疾人的所有设施,包括后台和专业录音棚。

室内和室外的空间质量,如构图,建筑和城市关系,是设计墨西哥音乐宫的必要前提。
这些主题项目旨在建立一个新的公共建筑的先例,振兴周边的城市空间,加强行人和城市的联系,提高人们对于城市中心位置和墨西哥音乐宫的感觉。













































建筑师 : Alejandro Medina Arquitectura, Muñoz arquitectos, Quesnel arquitectos, Reyes Ríos + Larraín arquitectos 项目位置 : 墨西哥 建造 : Constructora PROSER S.A de C.V. 结构估算 : ESSSA Ingeniería Estructural, Ing. Mario Gomez Mejía, Danstek S.A. 设计团队 : Mariana Ríos C., Natalia Ávila O., Carlos Fleischer, Manolo Rejón, Jonathan Álvarez 博物馆技术 : Exhibiscopio S.A. de C.V 项目面积 : 8840.0 m2 项目年份 : 2018 摄影师 : Onnis Luque, Cielito Drone, Pim Schalkwijk
版权声明:本文内容由用户自行发布上传或投稿由设计芝士代为发布,版权归原作者所有,设计芝士不拥有其著作权,亦不承担相应法律责任。如果您发现本站中有涉嫌抄袭或侵权的内容,请点此提交工单进行举报,一经查实,本站将立刻删除涉嫌侵权内容。


很棒的建筑设计