人们从未停止对生活的想象与期待。现代城市中,工业化环境割裂自然意趣,商业繁华打破舒缓步调,人们极力寻找心目中的栖居之所。 而上海招商虹桥公馆二期即是为了实现人们的“心之所向”,配备了销售中心、酒店级精品会所等多个功能区,其室内硬装皆由方磊领衔的壹舍团队操刀设计。
基于对当下人居与未来趋势的洞察,设计师从城市、人文角度出发,追寻格调品味与时代审美的共鸣,强调现代轻奢、简约新潮之感,同时将场域与美学相结合,并统筹室内、建筑及景观院落的和谐共融,以期能给予访客不断的视角转换和空间层次变化的多样体验。
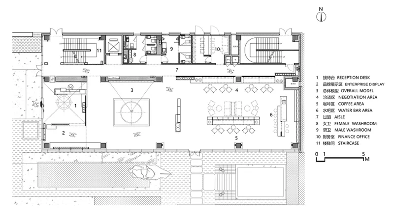
前厅以7.8米高挑空渲染一种大气格调,米黄的石材与粗细不一的金属条在适度配比上做形体区分,打破呆板,也增加了细节表现。金属与石材在接待台的穿插构造,既是整体统一的焦点再现,亦赋予其叠加的层次感,充满灵动与活力。
格栅贯穿顶面、立面始终,与植栽槽一体延伸,在打造端景的同时,强调前厅、沙盘区、洽谈区乃至各区域的交流连接,又带来一丝隐隐约约的朦胧之美,分布的星星点点则是外部景观波光粼粼的情景再现,感性与趣味不期而遇。
顶面的格栅随挑空顺延至沙盘区,金属条和石材的体块分割,则以强烈的序列感和纵深感,勾勒一种更为宽敞和谐的状态。
抽象的线条以简洁、干净回应现代人的理性、克制。
为赋予更自如的沟通环境,洽谈区摒弃常规布局,通过解构手法,以卡座、沙发、散座等组合关系加以打造。格栅与星星点点的设计在此延用于立面,既打破单调,也堪称一景。
而中间金属冲孔板的柜体则强调视觉及功用的双重感受,既能进行有效划分,又可展陈妆点。在整体与局部的多方位考量中,共同实现访者会客、办公、阅读、休息等多样性需求。
设计师精准拿捏整体自由与从容的气度,大片的玻璃窗于前厅延续至水吧台,进一步加强户外景观与室内布局的联系,让游走的光影于此对话。吧台以建筑感营造沉稳气氛,多种元素的碰撞衔接,又极具时尚气息。
为了让访客处处皆有惊喜,以丰富的设计语言加强各区的灵动串联,同时通过合理规划多个端景,起承转合间实现“移步换景”“步移景异”“情景交融”之境,让视线的每一次切换,皆可发现无处不在的美与耐人寻味的仪式感。
于一幽静之地设有VIP室,既给人一种舒适和缓的感受,又将线性秩序的美感娓娓传达开来。
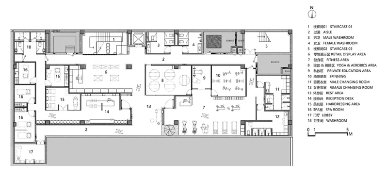
地下层同样以简约的笔触来铺陈,在材质运用、细节刻画上与一楼既有一脉相承之处,又因时因地制宜重新演绎。
在快节奏的都市,会所可谓社交的重要载体,也支撑着社区生活的便捷性与归属感。地下层以前瞻性视角合理规划出包含零售展示、美容SPA、健身运动等场域的综合性会所,多元的业态选择、至臻的质感格调,满足广大居者的需求,更能唤醒深层的情感享受。
零售展示区既有完整大块面,又有散落的岛台,在多样的展陈形式中,也蕴藏着设计师对轮廓、比例、节奏的精心把控,开放的架构亦自成一景。
既要响应不同的氛围情境,又要动静分离互不干扰,还要在不同功能分区之间构筑关联,休息区在某种程度便是这般枢纽的角色。在一切从简中释放出舒缓惬意的基调,模拟天光下的绿植静默守护一旁,则让这一隅更加富有灵趣与玩味。
踏入SPA区,火山石马赛克墙面,在大小不一的有序组合中,肌理感跃然而出,与木饰面、金属天然地达成了一种和谐的对比之感。纯粹质朴的基底,安宁私密的空间,恰到好处的点缀,身处其中便能真切的感受到舒缓放松。
设计师方磊坦言:我们在上海招商虹桥公馆二期的室内设计中,注入对社区生活的理解,关注体验、功能与细节,希望通过不断的思考和创新,让一种包容、自由的感受扑面而来。以言有尽而意无穷的手法,引发人们对未来的无限幻想与期待,让空间拥有更多可能。
项目名称 | 招商虹桥公馆二期
项目地点 | 上海市 青浦区
设计面积 | 1505㎡
完工时间 | 2020年11月
室内硬装 | ONE HOUSE DESIGN 壹舍设计
参与设计 | 蒙程鹏、徐金山、胥磊、谭超杰、沈蓉蓉、陈诚、王晓童、李斌、黄才华
项目摄影 | 本末堂 彦铭
方磊,现代简约设计先行者,都市精英生活方式引导者,壹舍设计创始人。近年来获得诸多国内外室内设计大奖。他认为设计师思维是感性与理性的结合,擅长用现代简约的美学精神展开空间多维描述,以克制与平衡的手法、表像和内在的矛盾统一来表现丰富而纯粹的设计本质。
ONE HOUSE DESIGN壹舍设计由方磊创建于2009年,凝聚了一批拥有前瞻性理念、国际化视野的活力团队。作为集室内设计、环境设计、软装设计等一体化的综合性专业设计公司,壹舍主要从事地产售楼处、样板间、会所、商业空间、办公空间、精品酒店等设计项目,为众多知名地产商提供至高水准的个性化定制服务。以过硬的专业能力和不懈的探索,积极面对未来与市场的全新考量,致力于当代新人居观念的启迪与更新,为设计提供更多可能。

