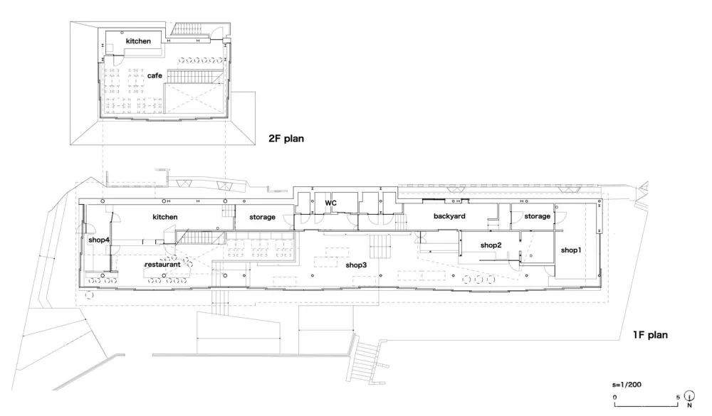
东京附近的旅游目的地高尾山被米其林绿色指南( Michelin Green Guide Japan)评为三星级别。这座建筑为于这里的一个缆车车站旁,为其提供零售等服务措施。在我们装修之前,从车站到山路有一排排的零散独立的小店铺。纪念品店并没有从咖啡店和餐厅的客流中获得“流量”引入。
大楼前的街道有40米长,坡度高差高达1.8米。因此,我们决定利用这一特点,将街道与室内设计进行一个全面的考虑。其结果是,利用场地上的高差将咖啡、餐饮和纪念品销售设计出了三个层次,这不仅其综合到“同一个屋檐下”,还解决了客流流失的问题。

面向街道的建筑立面由滑动门构成,在天气好的时候,这些门可以完全打开,将建筑与室外连接起来。在设计中,我们发现曾经的排房建筑是不符合时代的要求的,我们根据 Takao 山的原始地形对这个项目进行了重新的设想。









建筑师 : Naruse Inokuma Architects 地址 : 都道189号線, Hachiōji-shi, Takaomachi, 〒193-0844 Tōkyō-to, 日本 建筑面积 : 357.0 平方米 项目年份 : 2018 摄影师 : Masao Nishikawa
版权声明:本文内容由用户自行发布上传或投稿由设计芝士代为发布,版权归原作者所有,设计芝士不拥有其著作权,亦不承担相应法律责任。如果您发现本站中有涉嫌抄袭或侵权的内容,请点此提交工单进行举报,一经查实,本站将立刻删除涉嫌侵权内容。


现在这个浮躁的世界,能细心整理一些东西发上来的越来越少了。要么就是敷衍的图片,要么就是枯燥的文字。之后就是AI生成的预制菜类的打包便捷快餐了。感谢楼主的分享,让我能在大智能无人化来临之前,看到同类发出的项目。有幸与您互动,缘分2
是不是一直复制,人就会变懒,变笨,第一次的复制粘贴,可能还略带羞赧,第二次再复制,内心的自责就少了一分,第三次毫不犹豫的ctrl+v 是那么的心安理得。回头一看,重复的留言已经700多条了。心安理得么?得到了什么呢?
人生本就短暂,走了除了家里三代人能记得,谁有会记得谁呢?反倒是这数字世界会多多少少留下我们的印记,然而周而复始的评论终究无法让人看上一眼,注定成为网络垃圾。
垃圾+3
昨天看到儿子在家里玩儿我的世界积木。突然发现小孩子每天都能摆出不同的造型,比之以前已经创造出很多有意思的空间设计了,除了地上建筑里刚需的客餐卧,还有地下室活动空间,储藏室,战备工具间。。。。。儿子是彩色的,而我的色彩饱和度越来越低了。
宝剑锋从磨砺出,梅花香自苦寒出。
0
0