人们从未停止对生活的想象与期待。现代城市中,工业化环境割裂自然意趣,商业繁华打破舒缓步调,人们极力寻找心目中的栖居之所。
而上海招商虹桥公馆二期即是为了实现人们的“心之所向”,配备了销售中心、酒店级精品会所等多个功能区,其室内硬装皆由方磊领衔的壹舍团队操刀设计。
基于对当下人居与未来趋势的洞察,设计师从城市、人文角度出发,追寻格调品味与时代审美的共鸣,强调现代轻奢、简约新潮之感,同时将场域与美学相结合,并统筹室内、建筑及景观院落的和谐共融,以期能给予访客不断的视角转换和空间层次变化的多样体验。
前厅以7.8米高挑空渲染一种大气格调,米黄的石材与粗细不一的金属条在适度配比上做形体区分,打破呆板,也增加了细节表现。金属与石材在接待台的穿插构造,既是整体统一的焦点再现,亦赋予其叠加的层次感,充满灵动与活力。
格栅贯穿顶面、立面始终,与植栽槽一体延伸,在打造端景的同时,强调前厅、沙盘区、洽谈区乃至各区域的交流连接,又带来一丝隐隐约约的朦胧之美,分布的星星点点则是外部景观波光粼粼的情景再现,感性与趣味不期而遇。
顶面的格栅随挑空顺延至沙盘区,金属条和石材的体块分割,则以强烈的序列感和纵深感,勾勒一种更为宽敞和谐的状态。抽象的线条以简洁、干净回应现代人的理性、克制。
为赋予更自如的沟通环境,洽谈区摒弃常规布局,通过解构手法,以卡座、沙发、散座等组合关系加以打造。格栅与星星点点的设计在此延用于立面,既打破单调,也堪称一景。
而中间金属冲孔板的柜体则强调视觉及功用的双重感受,既能进行有效划分,又可展陈妆点。在整体与局部的多方位考量中,共同实现访者会客、办公、阅读、休息等多样性需求。
设计师精准拿捏整体自由与从容的气度,大片的玻璃窗于前厅延续至水吧台,进一步加强户外景观与室内布局的联系,让游走的光影于此对话。吧台以建筑感营造沉稳气氛,多种元素的碰撞衔接,又极具时尚气息。
为了让访客处处皆有惊喜,以丰富的设计语言加强各区的灵动串联,同时通过合理规划多个端景,起承转合间实现“移步换景”、“步移景异”、“情景交融”之境,让视线的每一次切换,皆可发现无处不在的美与耐人寻味的仪式感。
于一幽静之地设有VIP室,既给人一种舒适和缓的感受,又将线性秩序的美感娓娓传达开来。
地下层同样以简约的笔触来铺陈,在材质运用、细节刻画上与一楼既有一脉相承之处,又因时因地制宜重新演绎。
在快节奏的都市,会所可谓社交的重要载体,也支撑着社区生活的便捷性与归属感。地下层以前瞻性视角合理规划出包含零售展示、美容SPA、健身运动等场域的综合性会所,多元的业态选择、至臻的质感格调,满足广大居者的需求,更能唤醒深层的情感享受。
零售展示区既有完整大块面,又有散落的岛台,在多样的展陈形式中,也蕴藏着设计师对轮廓、比例、节奏的精心把控,开放的架构亦自成一景。
既要响应不同的氛围情境,又要动静分离互不干扰,还要在不同功能分区之间构筑关联,休息区在某种程度便是这般枢纽的角色。在一切从简中释放出舒缓惬意的基调,模拟天光下的绿植静默守护一旁,则让这一隅更加富有灵趣与玩味。
踏入SPA区,火山石马赛克墙面,在大小不一的有序组合中,肌理感跃然而出,与木饰面、金属天然地达成了一种和谐的对比之感。纯粹质朴的基底,安宁私密的空间,恰到好处的点缀,身处其中便能真切的感受到舒缓放松。
设计师方磊坦言:“我们在上海招商虹桥公馆二期的室内设计中,注入对社区生活的理解,关注体验、功能与细节,希望通过不断的思考和创新,让一种包容、自由的感受扑面而来。以言有尽而意无穷的手法,引发人们对未来的无限幻想与期待,让空间拥有更多可能。”
△效果图
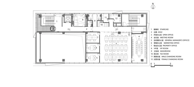
△1F平面图
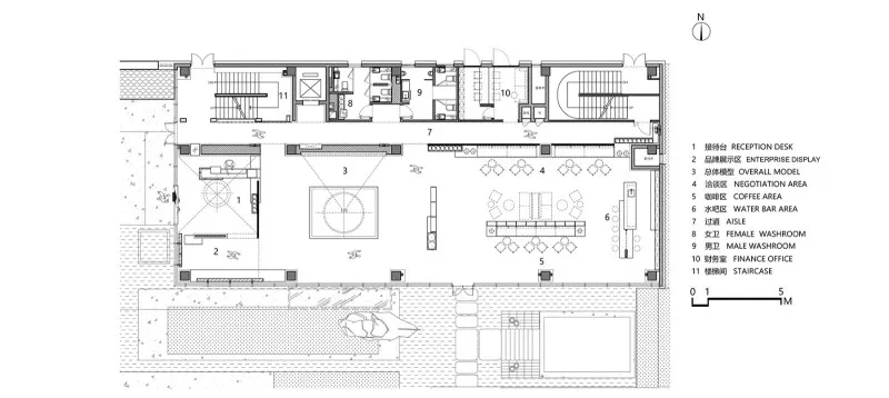
△2F平面图
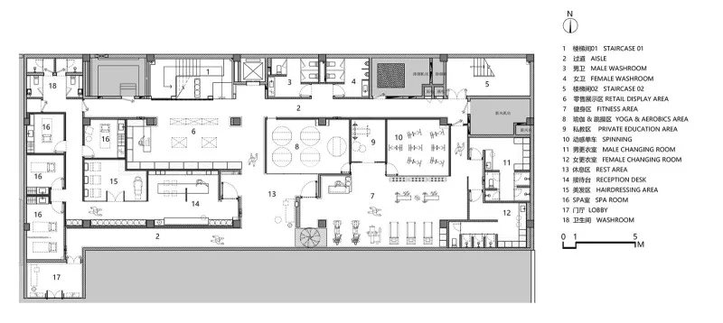
△B1F平面图
项目信息
项目名称 | 招商虹桥公馆二期
项目地点 | 上海市 青浦区
设计面积 | 1505㎡
完工时间 | 2020年11月
室内硬装 | ONE HOUSE DESIGN 壹舍设计
设计主创 | 方磊
参与设计 | 蒙程鹏、徐金山、胥磊、谭超杰、沈蓉蓉、陈诚、王晓童、李斌、黄才华
项目摄影 | 本末堂 彦铭
方磊,现代简约设计先行者,都市精英生活方式引导者,壹舍设计创始人。
近年来获得诸多国内外室内设计大奖。他认为设计师思维是感性与理性的结合,擅长用现代简约的美学精神展开空间多维描述,以克制与平衡的手法、表象和内在的矛盾统一来表现丰富而纯粹的设计本质。
Mr. Fang Lei, a renowned interior designer, the pioneer of modern minimalist design, the guide of urban elite’s lifestyle, is also the founder of One House Design.
In recent years, Mr. Fang has won multiple domestic and international interior design awards. Mr. Fang believes that the designers thinking is the combination of sensibility and rationality, and he is good at using the aesthetic concept of modern simplicity style to develop the multi-dimensional description of space, psent the abundant and pure design essence with the method of restraint and balance, the contradiction entity between appearance and internal.
ONE HOUSE DESIGN壹舍设计由方磊创建于2009年,凝聚了一批拥有前瞻性理念、国际化视野的活力团队。作为集室内设计、环境设计、软装设计等一体化的综合性专业设计公司,壹舍主要从事地产售楼处、样板间、会所、商业空间、办公空间、精品酒店等设计项目,为众多知名地产商提供至高水准的个性化定制服务。以过硬的专业能力和不懈的探索,积极面对未来与市场的全新考量,致力于当代新人居观念的启迪与更新,为设计提供更多可能。
Established in 2009 by Mr. Fang Lei, One House Design has a group of dynamic teams with forward-looking ideas and international vision. As a comphensive and professional design company integrating interior, environmental and soft-mounted design, One House is mainly engaged in the design projects of real estates sales center, show flat, club,commercial space, office space, boutique hotel, etc., providing the high-end level and personalized customization services for many well-known real estate developers.
With the excellent design ability and untiring exploration, One House responds and embraces the future and the market actively, is committed to the enlightenment and renewal in the new concept of contemporary human settlements, demonstrating more possibilities for design.
壹舍设计代表作品
▽
▽F House
▽壹舍设计办公室
▽重庆新华协信中心售楼处
▽成都花样年 花漾锦江
———————————————————————————————
更多请关注 :
壹舍设计官网 / www.onehousesh.com
媒体联络 / xs@onehousesh.com
新浪微博 / 壹舍设计 / weibo.com/onehousesh


😊