近年来,喜茶越来越兴旺
不断给茶客们带来新的惊喜
喜茶的室内空间也设计的相当精彩
以至于怀疑喜茶的专业是设计….
品牌是一种能与大众进行沟通的文化传播媒介。我们选择空间这种载体,如何在喜茶多元化的专属空间形象中,探寻本土中坚型新生代茶饮品牌的内核,传达先锋、前瞻的品牌形象,成为本案的中心议题。
以“灵感之茶”的产品定位作为延展,DAS Lab试图搭建“地域符号与当代商业”的空间语境关系。
该空间的空间构想是从一个剖面开始的。光线将通过建筑幕墙的矩形窗洞投射進内部,挑高的斜面形成了新的建筑形态。我们希望这种修正本身产生的能量有助于人们再次认识空间的界限,身体的感知。
空间由银灰调不锈钢材质作为基底,与大面积墙顶彩色砂浆材质的碰撞是该空间商业绩效与文化价值取向的平衡。
该场所彩色砂浆模拟了民间传统材料“夯土”,与充满轻盈之态的空间对比出一种极具现代感的苍劲。隐喻了东方地域性符号的克制与释放。
「本土」是对东方语境、地域文化与商业绩效充分理解下的回应,这种回应释放了“本土性”最为肆意、自然的天性。同时,充满现代感的空间语境令不同层面的消费者对喜茶有了更为有效的感性阅读。
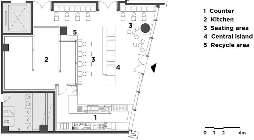
项目名称:喜茶虹桥新天地店
项目地点:上海虹桥新天地
空间与道具设计:DAS Lab
参与团队:钱瑜、向国、段晶晶、陆张瑜、陈泽源
本店位于深圳福田CBD综合体商圈One Avenue卓悦中心,秉承商场探索,创新,活力的精神,MOC DESIGN以“攀登”为寓指,以台阶形态为媒介,将追求进步、勇于攀登的态度融于设计进行延展。
设计构想来源于《纪念碑谷》中纵横交错的空间形态,以打散重组在空间中的台阶做为概念的表现形式,错落有致的体块结合台阶形态,自上而下延伸至整个空间。
在材质及造型上,为缓解小空间固有的压迫感,使用白色基调和方正的体块拓展空间界面。
中岛区域的高桌组合装置做为空间的主角,摆列形式仿佛在尽然有序地诉说。实体和线框的台阶造型构成虚实结合的姿态,游走在天花纵横交错的台阶与整体空间体块之间,在空间整体纯白色调的渲染下,成为空间中的视觉焦点。
台阶造型的分布,既可陈列品牌周边文化产品,也满足动线的划分,同时达到小憩饮茶的功能需求,人群的交流由此密切展开。
设计师将空间的功能区域如自助台等隐藏于纵横台阶之间,并为品牌方特别设计定制了一款茶具用于向顾客展示其采自不同产地的茶叶。
茶具以传统的陶土为器身,壶盖则以透明亚克力制成,底部台阶状的形式便于固定于墙面。
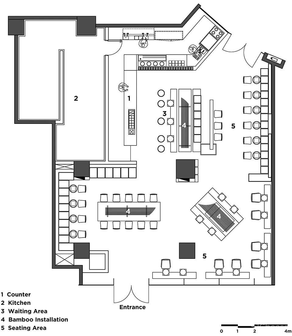
项目名称:喜茶深圳卓悦中心店
设计单位:MOC DESIGN OFFICE
主创设计师:吴岫微,梁宁森
设计团队:庄亦乘,胡侨
项目地址:深圳市福田区卓悦中心1层L140
唐代陆羽先生的《茶经》,为中华后世奠定了品茶文化的基调;咸丰年间,广州出现了一种名为“一厘馆”、“二厘馆”的馆子,门口挂着“茶话”二字的木牌,供食茶水糕点,以供路人歇脚谈话。
从那时起,“饮啖茶,食个包”成为广东饮食文化重要一环,其历史传承下来的生活方式所表达的态度值得人们深思。
在极度削减的方式里,人的注意力更容易集中在为数不多的物件上,这种环境令人心绪平静,也使人的感官更为敏锐。设计师用极为纯粹的白色体块,营造了一个悬浮着自由精神的茶空间。
这是一次崭新的概念化尝试,设计师尝试在体块、色彩、空间和环境四个不同的维度探讨关于茶客的心理状态,通过丰富空间多维度体验,创造更多交流可能性。
整个空间不同功能构造,均由多个同样尺度比例的白色体块组建而成。
在时间的加持下,白色体块和不断变化的光线瞬息间刺破空间的界限,自由的精神在本案的设计中,凭借纯粹的体块变化和色彩关系,变得更加通透和有力度。
平移、错位变幻与局部镜子的折射……白色盒子在室内外地无限延展,营造质感层次丰富的空间,让茶客沉浸在多维度感官体验之中。
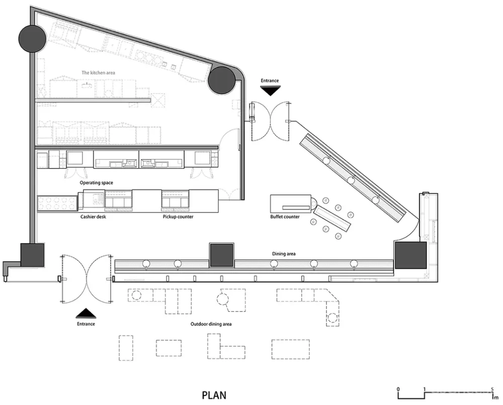
项目名称:喜茶深圳方大城店
项目业主:HEYTEA 喜茶
室内设计:UND设计事务所
HEYTEA LAB是喜茶具有实验性质的复合功能空间,包含着喜茶对现代茶文化的多方探索。
EDGE DESIGN 希望打造出一个与长沙这座城市气质相符的沉浸空间,并在其中为东方禅意与实验先锋性融合寻得一个恰当的设计落点。
围棋是中国的珍宝国粹,是最具代表的传统文化符号。千古无同局。围棋对弈中,双方每一步精妙的落子都会让棋局产生变化,每一局棋都可以产生361x种可能性
我们希望以「无限的可能性」作为切入点,让茶客与喜茶共同定义LAB店。每个茶客在进入店内时即成为偶然因素,与喜茶一起探索现代茶饮的呈现。
空间的石材以有序的不锈钢线条进行切割,以此表现棋盘的特性。
茶客拾级而上,螺旋的楼梯间利用光线与镜像营造出虚实相映的画面。
在座位区,棋子以镜面内凹及外凸的两种半球造型置于墙面。茶客在饮茶时,仿佛置身于纵横交错的棋局之中,明示每一位茶客是品茶者,亦是局中人。
空间中大量运用麻石及实木,唤醒茶客回忆起庭院的氛围,细部的打磨透漏出质朴温厚的气息。
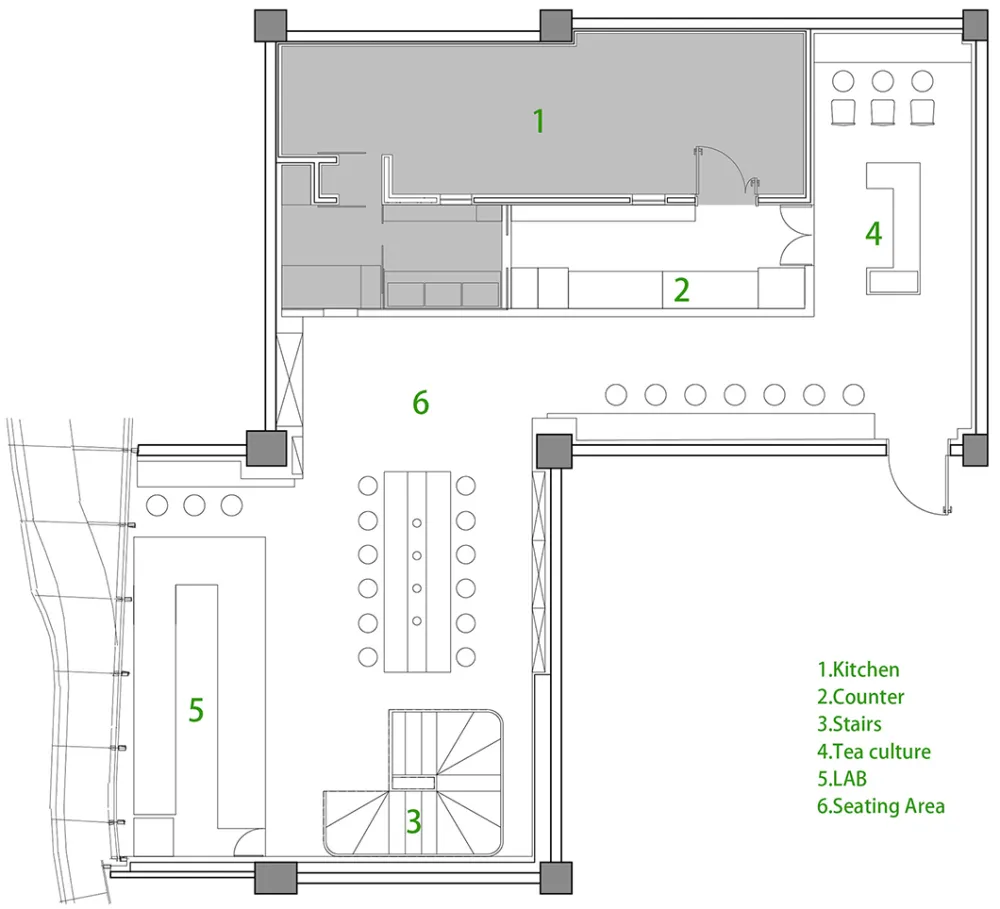
项目名称:喜茶长沙LAB店
项目地址:中国湖南长沙
喜茶郑州正弘城茶空间店
饮茶自从汉代出现以来,时至今日其作为传统文化之一依旧在中国人的生活中扮演着极为重要的角色。
从传统的茶道到年轻人喜爱的新式茶饮“喜茶”, MOC DESIGN从这些变化中看到传统文化随着时代推进而催生出新的形式的更多可能。
在这个茶饮空间中,MOC DESIGN通过将中国传统书法艺术用年轻人更关注的现代手段重构,探索传统书法艺术在新时代语境下的可能性,从而达成空间设计与喜茶在品牌精神的高度契合。
茶是中国古代文人交流时必不可少的饮品,亦是挥洒水墨之际,激发灵感的妙物。中国的书法艺术以水和墨为介质,讲究的是在简单的线条中传递丰富的精神内核,正如茶一般,总能品出不同的况味。
书法的基本元素是笔触。落墨或干或湿、或浓或淡、或遒劲或悠扬,期间蕴含无尽的内涵。
MOC DESIGN将书法艺术中水墨笔触的印象,以艺术装置的形式在空间中立体化呈现。
白色的空间为纸,悬浮于空间中的黑色竹子构成的艺术装置,如同在三维空间中落笔挥毫。
随着时代不断前行,当新式茶饮延续了茶文化的生命,MOC DESIGN也与喜茶一道探寻传统文化与当下年轻人连接的更多可能。
项目名称:喜茶郑州正弘城茶空间店
设计单位:MOC DESIGN OFFICE
主创设计:吴岫微,梁宁森
2019第七届金创意奖颁奖盛典-BTV北京卫视新闻播报

