长春作为东北典型的老工业城市,依然具备多元发展的无限可能性和当代活力。售楼处作为中国城市的特殊建筑类型,也需要被发现再利用的价值。当我们第一次来到项目场地,面对着眼前立于杂草丛中的玻璃盒子时,便开始思考如何通过巧妙的改造,为它注入鲜活的生命力和凝聚力,为附近居民提供丰富多元的活动空间。
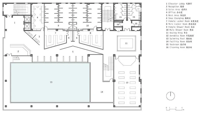
该项目业主希望将这栋废弃已久的售楼处改造成社区游泳健身活动中心:一层为亲子游泳馆;二层用于商业出租;三、四层为成人游泳健身馆。我们惊讶于业主的大胆设想:一栋四层的框架结构建筑中,竟要容纳三个不同功能和尺度的游泳池,不禁也开始自问:水——作为核心要素,对于建筑和使用者而言意味着什么?
曾经,东北的房子大多没有淋浴设施,大家都会去单位的公共澡堂洗澡。这里的冬天又冷又长,人们通常会在温暖的澡堂里泡很久,于是它便成了东北人感到放松舒适的社交场所。现在,“健身房”渐渐取代了“澡堂”,成为了人们,尤其是年轻人喜欢去的社交娱乐场所:它有水,可以游泳也可以洗澡,并且健康而时髦。所以,“水”不仅仅是东北集体记忆的一个符号,它更是具有联结和疗愈作用的具体介质。在与业主进行了多次深度沟通和探讨后,我们确立了基本改造思路:在匀质的框架结构中,植入灵活多变的几何系统,让“水”与各种功能分区产生空间和视觉的联系,赋予建筑内部具有生命力的形式和内容。
重设边界:渗透空间、激发事件
由于泳池需要与其它功能区域“干湿分离”,所以如何在柱网的限制下恰如其分地设定“边界”便自然而然地成为了设计的重点。我们试图通过引入新的几何系统来创造灵活、连续、变化的“边界”,让两侧的空间相互渗透,让边界本身激发事件。
▼一层平面分析图-轴测图
在一层,我们用直线和圆弧形成了一道连续的干湿分离边界,它的内侧为亲子游泳区,外侧为亲子游乐区。亲子游泳和亲子游乐两条并行的流线彼此分离、互不干扰。弧线边界的凹凸形成了彼此侵入渗透的有趣情况,在两个区域活动的人因能够看到彼此而产生联结和互动,这也方便家长可以随时随地看到孩子。
▼由接待大堂看向亲子游泳区
▼幼儿泳池与游乐区通过弧形边界互相渗透
让“天空的光”与“海底的暖”治愈失落的心
我们决定将成人标准泳池设置在三层南侧的通高空间内。在泳池上空,让白色软膜吊顶靠近玻璃幕墙的两边微微翘起,形成自然光缝;通过几何的褶皱令吊顶中央裂出两道人工光缝。它们使泳池上部空间产生起伏、动感的效果。
▼三层平面分析图-轴测图
钢结构泳池表面的标高实际上位于三层半的位置,所以泳池过道下方剩下了一个紧邻泳池侧壁的半层空间。我们在泳池侧壁斜撑结构之间“开洞”,将原本向内的“被看”空间反转成向外“看”的空间。
泳池面的过道和四层楼板间的半层空隙由磨砂玻璃砖封上,泳池通高空间的自然光便可以均匀地渗透进来,使其变成一条横向的柔和光带。负半圆形的烤漆板包裹住了泳池钢结构的斜撑,斜撑之间自然形成了安静舒适的小尺度休息空间。
▼泳池通高空间让自然光均匀地渗透进来
▼过道和四层楼板间的半层空隙由磨砂玻璃砖封上
对于除了泳池外的三层空间,我们需要设计两层边界:一是干湿分离边界,一是淋浴区的过道边界。我们将过道边界设计成折线形,意外地与泳池侧壁形成了一个休息区。为了使边界变得柔和灵动,隔断材质选择了U型玻璃。
休息区被打造成了一个“深海下的避难所”,躲在这个角落里的人,可以透过浴室过道旁的U型玻璃和泳池过道旁的磨砂玻璃砖看到走动的人影,也可以透过圆形窗洞看见水下游泳的人。如此,人与人之间以一种更加敏感、细腻、含蓄的方式相联结。
模糊边界:玻璃、镜子、光
四层的健身区与泳池通高空间的干湿分离边界由一圈通透的玻璃隔断围合而成,健身的人可以在各个角度看到泳池。对于私教区与器械区之间的边界,我们设计了折线形的钢框架隔断,交替镶嵌玻璃和镜子:一方面玻璃可以使泳池空间的自然光渗透至私教区,也让私教区与器械区产生视觉联系;另一方面镜子满足了两侧空间健身者的使用需求,同时各种角度的镜子形成的反射效果和通透的玻璃共同形成一道模糊的边界。另外,钢框架隔断上设置了由斜向方钢支撑的横向隔板,以方便健身的人随时随地放置水瓶、手机等物品。
▼四层平面分析图-轴测图
▼私教区与器械区的空间渗透
▼楼梯细部展示出楼层间的标高关系

