开放与封闭形成对比,突显框景效果:场地位于西班牙梅诺卡岛(Minorca)的东北海岸线上,能够俯瞰大海壮丽的景色。地块陡坡与场地规定使得住宅的选址非常有限。为了避免被前面的房子遮挡视线,住宅设置在地块的最高处,主入口位于二层。
 
 
为了进一步保证住宅清晰的观景视角,传统住宅的布局模式被推翻,白天活动的区域位于二层,卧室位于首层。只有主卧室位于顶层,业主希望能够拥有有一个可以轻松开启或封闭的夏季住宅,可能只有业主夫妇会在周末到这里暂住。建筑设计回应了这一需求,住宅可以看做是一个单层的loft,延伸出供业主孩子及客人使用的空间。
 
 
海景立面的开放性与侧面、背面的封闭性形成强烈的对比,构成一个强有力的框景效果。为了进一步加强这种形态,屋顶从后部向前部景观面抬高、开放,整个前部立面使用大面积的落地玻璃滑动窗。屋顶使用了通常在工业建筑中才会出现的预制空心板,能够覆盖11m大跨度的露台且不使用柱子,保证观景视线的连续性。
 
 
一块完整的预制板从屋顶上拆卸下来,形成无框天窗,自然光线照射到没有窗户的后部空间。立面使用现浇混凝土,这是一种零维护材料,在梅诺卡岛(Minorca)高湿度、含盐高的极端气候下能够长时间保证建筑美感。住宅灰白色的立面与周围赭石色和赤红色的土壤融合在一起,一道垂直条纹浮雕围绕整个立面,统一协调所有的门窗。
 
 
厨房到起居室的空间内具有巨大的滑动落地窗,能够朝向43平方米的露台完全开敞,通常将这里用作聚会空间。主卧室有一个私人阳台,与公共露台没有任何视线联系。业主希望住宅能够保证孩子们的私密性,因此几间儿童卧室都有私密的洗手间、露台及供他们自己使用的起居室,为年轻人提供私密与公共活动的空间。
 
 
 
 
 
 
 
 
 
 
 
 
 
 
 
 
 
 
 
 
 
 
 
 
 
 
 
 
 
 
 
 
 
 
 
 
 
 
 
 
首层平面
 
 
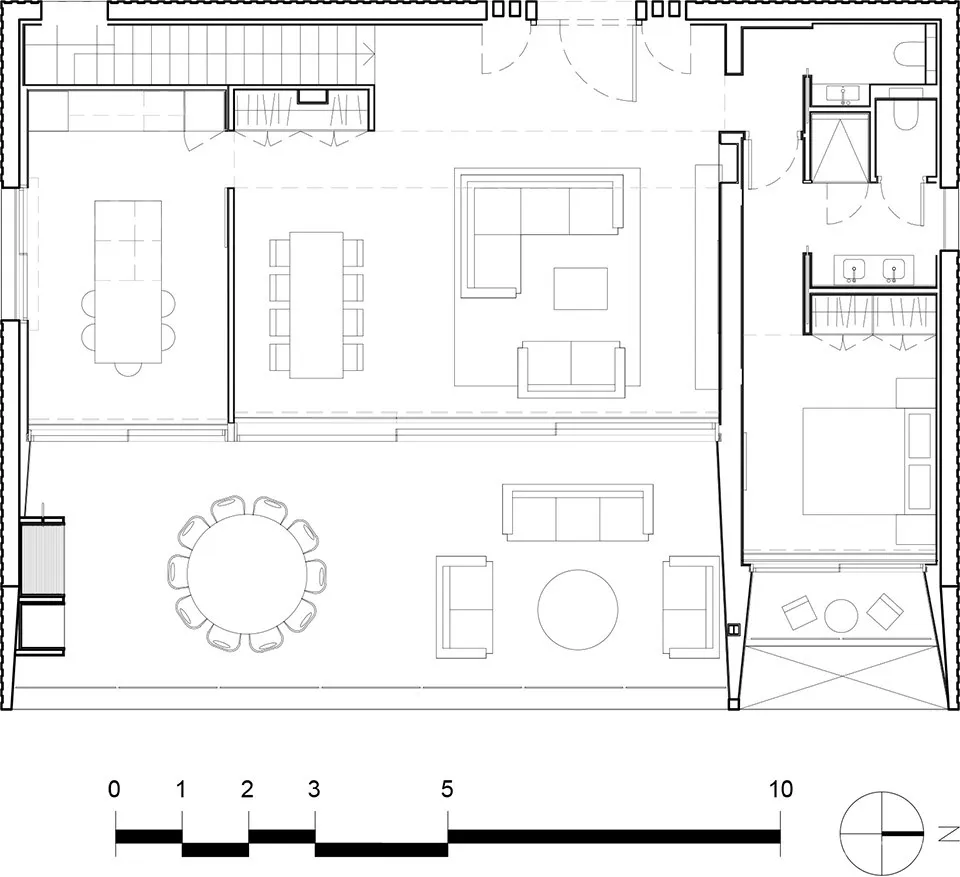
二层平面
 
 
正立面
 
 
后立面
 
 
侧立面
 
 
CREDIT LIST
PROJECT: Single-family house
TYPE: Commission
CLIENT: Private
COLLABORATORS: Structure e2A, Juan Mora SA and Gaimo, Francesc Sbert
SIZE: 300 m2
LOCATION: Minorca, Spain
Partner-in-Charge: Alicia Casals
Project Leader: Alicia Casals
Team: Karl Johan Nyqvist, Jordi Ribas, Mira Botsewa, Jennifer Mendez
Photography: Adrià Goula


