最全最详细!955套家工装深化节点图丨DWG格式丨1.62G
【名称】 最全最详细!955套家工装深化节点图丨DWG格式丨1.62G
【格式】 DWG格式
【大小】 1.62G
简介:本套宝贝,『最全最详细!955套家工装深化节点图丨DWG格式丨1.62G』,无水印,案例带设计说明和平面图及各个位置的节点,可做为设计首选参考资料。
本文展示内容为部分内容,素材实际内容多于本文展示内容!
目录

『最全最详细!955套家工装深化节点图丨DWG格式丨1.62G』



资料名称:最全最详细!955套家工装深化节点图
资料大小:1.62G
资料形式:DWG文件
资料目录:
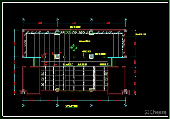
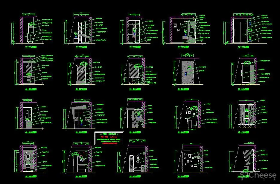
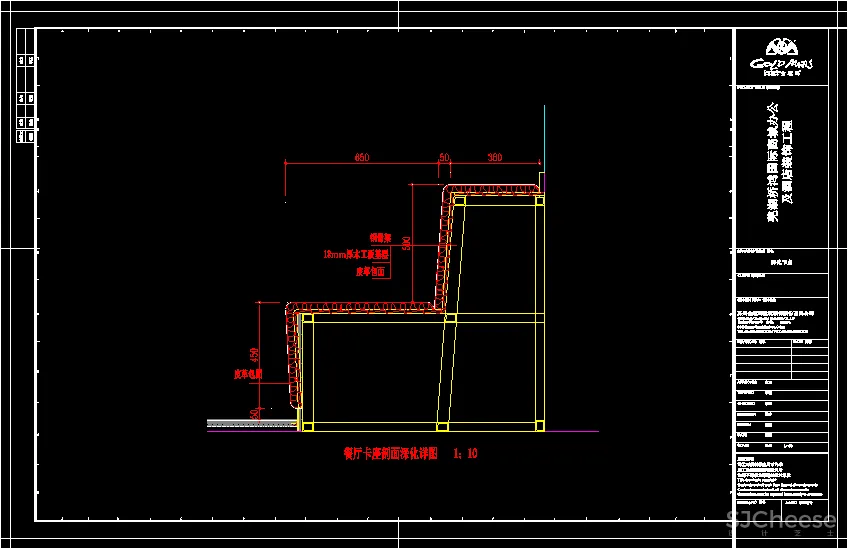
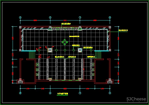
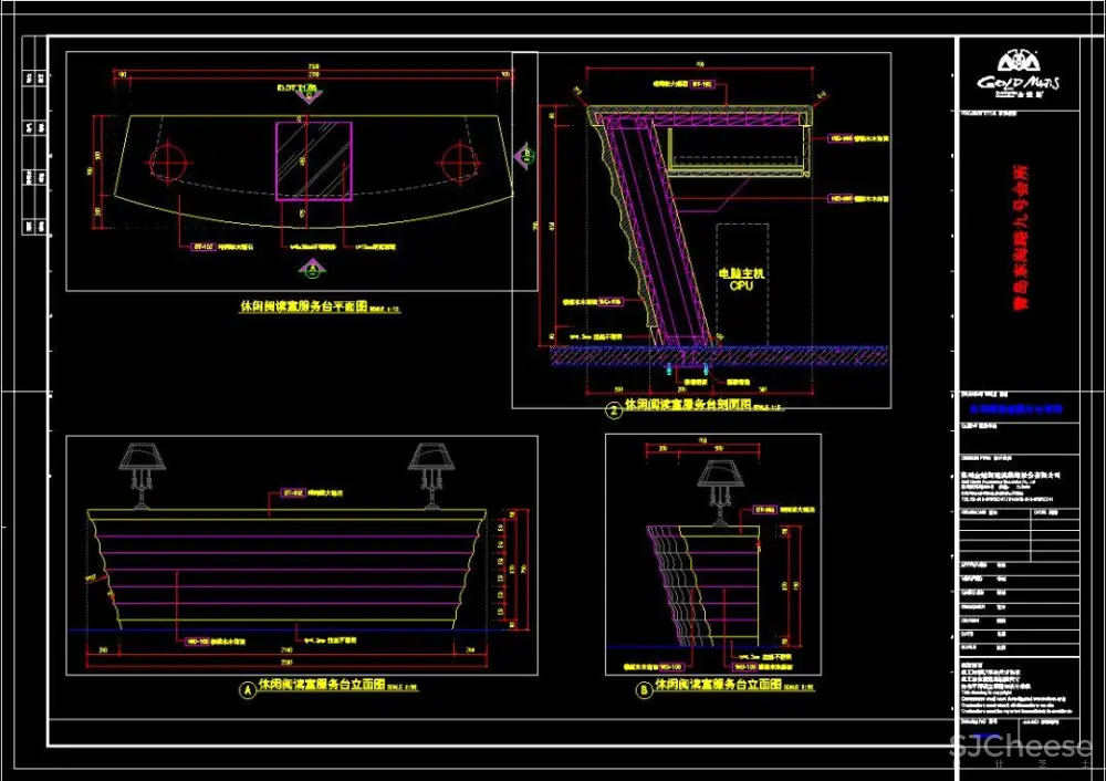
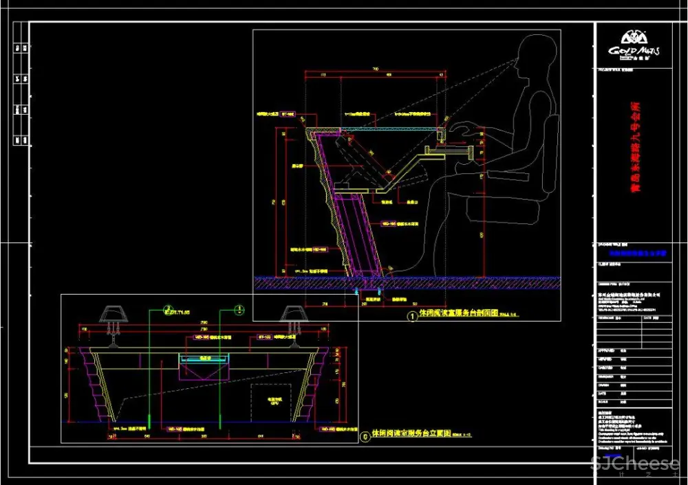
A深化节点一454套
B深化节点二350套(含各类图库)
C深化节点三成套家装49套(含平立面大样)
D深化节点四家装工装节点大样图102套





图文详情
『最全最详细!955套家工装深化节点图丨DWG格式丨1.62G』













































下载地址:



有点文不对题,里面有工装部分
可惜没有积分,只好奔命挣积分