【名称】 全季酒店 – 上海虹桥吴中路店丨效果图+施工图+材料表丨938M
【格式】 PDF,DWG,JPG格式
【大小】 938M
简介:本套宝贝,『全季酒店 – 上海虹桥吴中路店丨效果图+施工图+材料表丨938M』,无水印,案例带设计说明和平面图,可做为设计首选参考资料。









– 【01】效果图 –
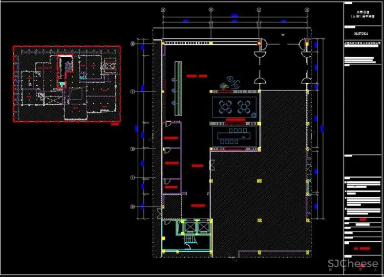
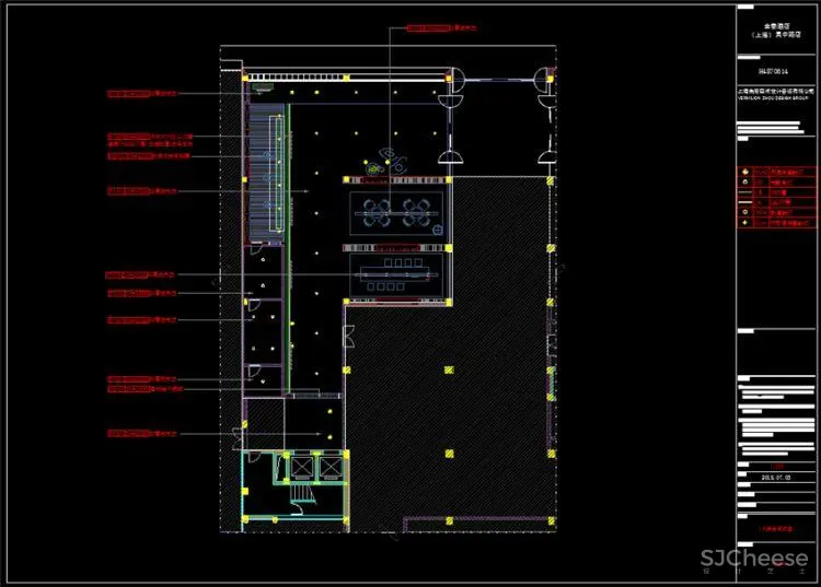
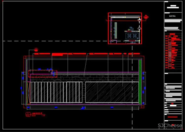
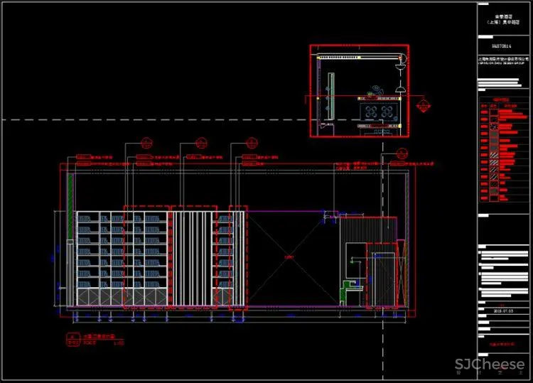
– 【02】公区施工图 –

– 【03】材料表 –


– 【04】灯具表 –

– 【05】软装清单 –

– 【06】官方摄影 –

– 【07】现场实景 –

– 【08】全季酒店设计标准手册 V3.0版(完整版) –



『全季酒店 – 上海虹桥吴中路店』































































下载地址:

