项目位于加州帕洛阿尔托市,其业主是一对将于近期退休的老夫妇,他们委托建筑师为住宅设计一个更为亲人的尺度,并简化其现有的设计风格。
老夫妇十分钟爱场地内郁郁葱葱的花园,并发现了它的潜力。在Ground Studio Landscape工作室的重新规划下,花园的景观效果被增强。
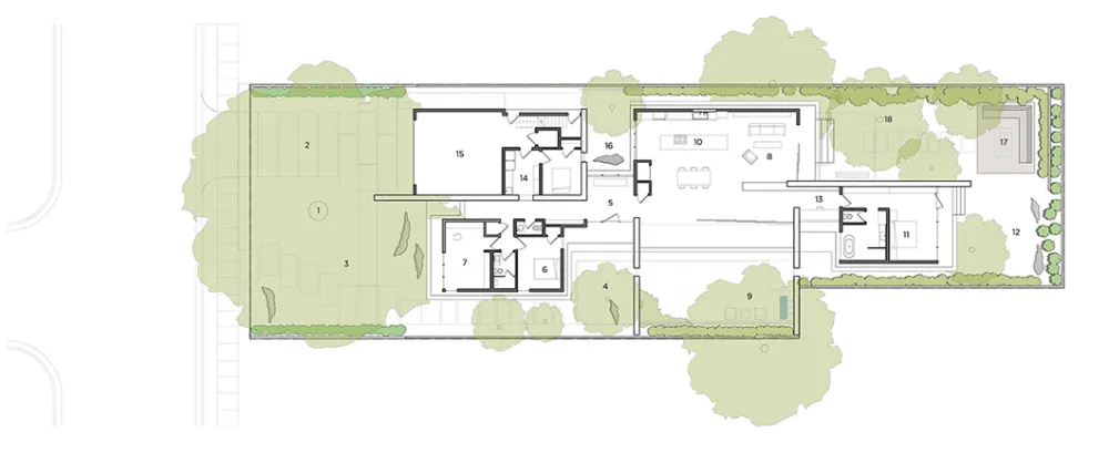
来访的客人们被引导着由树下穿过,进入一系列的庭院与景观花园。
每一个室内空间都配有不同的景观视野,实现了建筑与景观的完美融合。
建筑的底部被架空,这种设置不仅使建筑与周围树木的产生互动,同时保护了隐藏在土壤里的树根。
通过将生活区扩展到户外空间,建筑师为业主创造了充裕的休闲娱乐空间。即使日后家庭成员增多,也不会使空间显得拥挤。
The Sanctuary 是一个强调景观元素的现代主义住宅。项目的核心理念是,通过众多隐秘的庭院,带给业主与访客宛如初见的惊喜体验,可谓一座城市绿洲。
设计:Feldman Ground Studio Landscape
Whidbey农场住宅坐落在一片森林边缘,周围遍布着高大的道格拉斯冷杉、铁杉和野草莓树。
这座历史悠久的住宅从农田和附近道路上看都保持了低调谦逊的姿态,为的是可以避开人们的视野。
森林深处,房屋的体量被谨慎地置入冷杉之间的一处不大不小的空地,以尽可能地保护场地上的树木。
住宅的空间被分解成一系列大小适中的分散区域,谨慎地穿插在一排高大的杉树之间,并环绕着种满原生灌木和蕨类植物的庭院。
可再生的天然材料和低维护成本的外墙随着时间的推移将焕发出更强烈的自然之美。
木制的窗户系统采用了以氩气填充的大尺寸低辐射玻璃,减少了房屋的热桥效应,平均传热系数稳定更佳的水平。
这座假期住宅是为多代人的家庭而设计,虽然其初衷是为两个人提供舒适的生活环境,但也足以为20个人提供相聚的空间。
主体部分拥有4间卧室,此外还有一座布局紧凑的小屋,可供亲戚的孩子们或客人们居住。
石砌的墙体紧贴着杉树的边缘,看上去房屋已经与森林共同生长了多年。
树木的落叶被小心堆积在场地,可以为农场提供木材、牛群护栏和壁炉柴火。草坪边缘还设置了新的篝火休闲区。
屋顶种植原生草皮以降低人造建筑对环境的干预,同时将建筑对这片流域的影响降到最低。
绿意绵绵、生机盎然,这片五英亩大的青草地毫不保留地令人如痴如醉、心驰神往。
于树林里与青草地上沿著蜿蜒石墙前进,在耐候钢的指引下漫步走过一层又一层的青葱翠绿,揭开整座宅邸全貌的面纱后,来访的宾客来到了入口。
客厅阶梯式的设计令人感到犹如从树丛中走出来的旅人一般,震慑于倏然开阔的美景。

