内向操作打造小型“综合体”:项目位于浙江省杭州市滨江区西可网易科技园区,基地位于建筑群的最西侧,与阿里巴巴仅一路之隔。整栋楼纵向分为三部分,1层作为共享公共服务空间,2-6层作为联合办公空间,7-15层作为出租公寓。而我们的设计任务是1-6层整体空间以及7-15层公寓公共空间。
原始建筑内部以采光中庭及观光电梯为主要空间特征及设备。搭乘观光电梯缓缓而上,面对无差别的中庭立面仿佛如静止一般。这种原始构造和视觉感受决定了从刨立面出发,内向操作的工作方法来打造一个小型“综合体”。
设计策略上我们没有从某一种风格入手,而是坚持在平,立面上做工作,再介入空间形态和材料。试图借助中庭的纵向联动来激活各层功能间的联动,进而使其形成一个具有向心性的共享空间氛围,这也是对滨江区未来发展规划的回应。
我们最初的方案是首先在中庭增加了可供路演休息的阶梯以及直达三层的楼梯。并借助原有从层楼板伸出的挑台,采用拆除和加宽部分挑台的方式,在中庭立面增加外挂休息空间。通过这种对立面直接处理试图打破各层之间明确的空间界限,强化各层之间的关联以及空间向心性,进而汇聚视觉焦点。
但第一轮方案因大楼物业坚持不能拆除挑台,以及其他各方原因而停止。于是我们在不拆改挑台的前提下重新规划联通楼梯,“随机应变”的采用平面语言对中庭立面做了有秩序的色彩处理,使其形成整体秩序。这种“随机应变”带来了另一种空间体验,不禁会让人联想到香港的彩虹邨。
建筑主要入口分为东、西两个,起初业主仅想打造西侧一个主入口,但结合园区总体规划以及业态我们觉得两个都应该作为主入口来对待,可以为一层商业创造出更多的价值。
在对于城市改造风生水起的当下,设计师以一个什么态度和方法去回应空间是给每个设计师提出来的基本问题。对于改造更新项目上一直比较坚持要因地制宜,实事求是的去发现问题并且有策略性的解决问题,而非刻意“原创”。由于项目的各方面原因,主要的立面和局部空间的方案在最后发生了颠覆性的变化,我们所在意的一些细节也未能落成。
相比空间主体,风格不是最关键的。设计的主要作用并非是为了创造细节和风格,而是创造更多得主体价值,让细节自然形成,而不去刻意捏造。在限制条件下做设计是基本功,因势利导,有法无定式,这不是狭义上的妥协。反而各种条件都有限的改造项目,也会让设计过程中更有平常心,更关注基本问题。
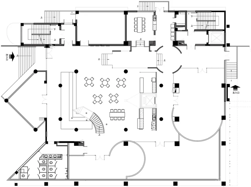
一层平面图
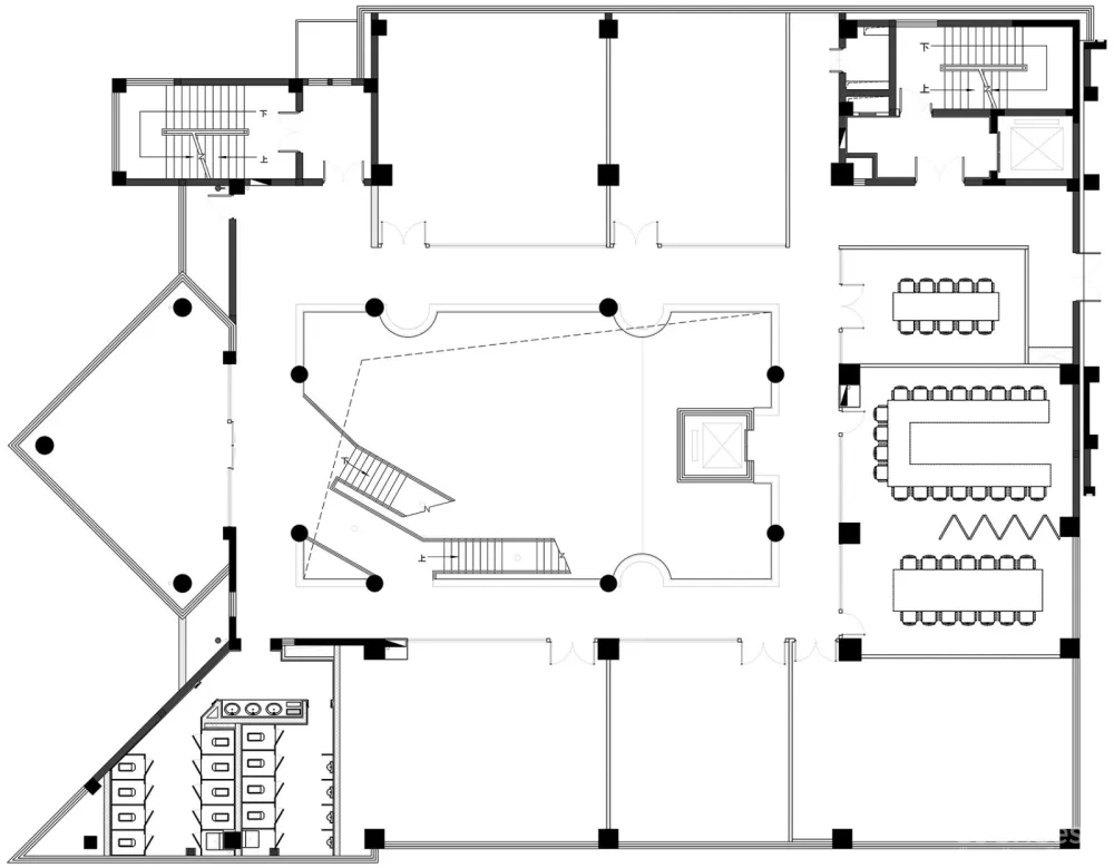
二层平面图
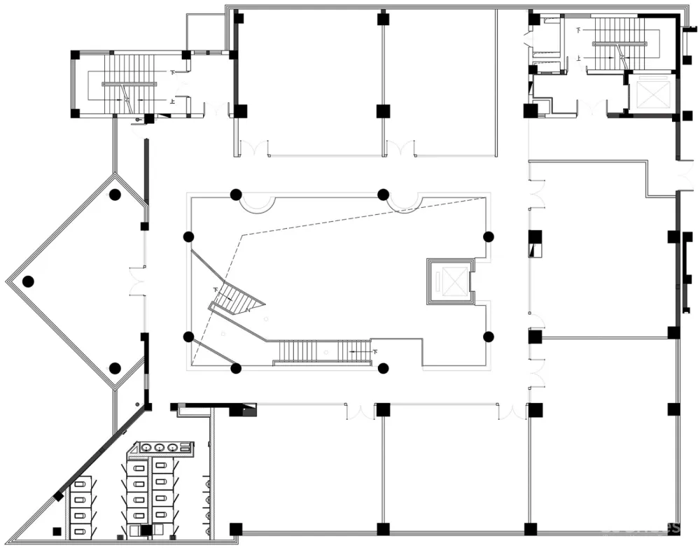
三层平面图
项目名称:杭州万科时代公社
改造设计:DAGA Architects大观建筑设计
设计团队:申江海、任晓伟、黄达、许云飞、刘宇哲、庞学颖、温顺和、陈阳、黄冶平
施工图团队:DAGA JAZZI大观匠子施工图
施工图团队:王一涵,陈世志
设计时间:2018年3月-5月
建造时间:2018年5月-8月
摄影师:五透,w.n_t

