seibmaca无锡恒隆店,是我们授香港潮艺基金的委托,为其设计的第二代全新形象店。在面积不足100平方米的内部空间里,采用白色为主色调,呈现出轻盈、纯粹之感。设计之时力图避免矫揉造作的语言,采用极简主义的空间线条。我们秉承着“空间最终是为体现服装而存在”的理念来做设计。在这并不宽敞的空间内,我们为中庭植入了一块枯山水。以山、石、树木、水为自然元素,在喧闹的城市里,为顾客呈现一种舒适与宁静的感觉,让心灵得到放松和释放,远离日常生活的急躁。
Seibmaca Wuxi Henglong Store is the second generation of new image store designed by Hong Kong Chaoyi Fund. In an interior space of less than 100 square meters, white is the main color, showing a light, pure feeling. At the time of design, we try to avoid the artificial language, using minimalist space lines. We are adhering to the philosophy that “space exists for the clothing”. In this not spacious space, we planted a dry landscape for the atrium. With mountains, stones, trees and water as natural elements, in the noisy city, the customer is psented with a feeling of comfort and tranquility, allowing the mind to relax and release, away from the urgency of daily life.
▼室内概览,interior overview
▼为中庭植入了一块枯山水,planted a dry landscape for the atrium
▼前台及等待区,the reception desk and waiting area
潮牌代表着年轻人的活力和态度,不锈钢和铁板材料的使用,打造出一个整洁、时尚的空间环境,回型购物动线简明顺畅,为顾客在挑选衣服时带来便利。白色的粗糙墙壁、简单的不锈钢货架、宽松的试衣空间,我们摈弃了多余的空间装饰和软装搭配,使服装和空间在这里相互补充,散发出朴素的光辉,营造出静谧安详的氛围,让喧嚣和沉静达到一个平衡。
Tide brand repsents the vitality and attitude of young people, the use of stainless steel and iron plate materials, to create a clean, stylish space environment, the shopping line is smooth, to bring convenience to customers when choosing clothes. The white rough walls, the simple stainless steel shelves, and the loose fitting space, we have abandoned the extra space decoration and soft fittings, so that the clothing and space complement each other, exudes a simple brilliance, creating a quiet and serene atmosphere. Let noisy and calm reach a balance.
▼不锈钢和铁板材料的使用,打造出一个整洁、时尚的空间环境,the use of stainless steel and iron plate materials, to create a clean, stylish space environment
▼白色的粗糙墙壁、简单的不锈钢货架,the white rough walls, the simple stainless steel shelves
▼宽松的试衣空间, the loose fitting space
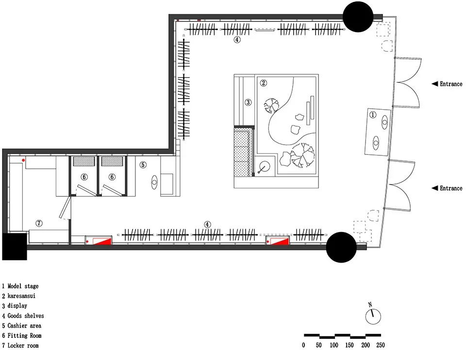
▼平面图,floor plan
项目名称:SeibmacA无锡恒隆店
空间设计:上宅良营空间设计
公司网站 : http://www.szlydesign.cn
联系邮箱 : Elegentdesign@hotmail.com
完成年份:2019.10.01
主持设计:汪春林
项目地址:中国.江苏.无锡
建筑面积:100m²
空间摄影:张家宁
道具制作:新柏装饰
项目客户:香港潮艺基金管理有限公司
主要材料:铁板、不锈钢、石材、乳胶漆

