日本东京作为一个国际化的城市 它时尚、繁华,却不失古朴传统 它是寸土寸金的世界级的商业、金融中心 各国文化在这里交流融合 让东京成为一座艺术之城 为东京增添了更加多元和包容的色彩 今天小编要带大家看的就是位于东京的 Kita Aoyama Apartments(北青山公寓)
Kita Aoyama Apartments(北青山公寓)
 
 
 
 
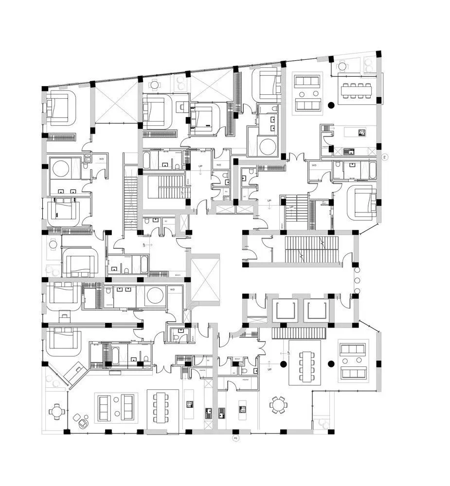
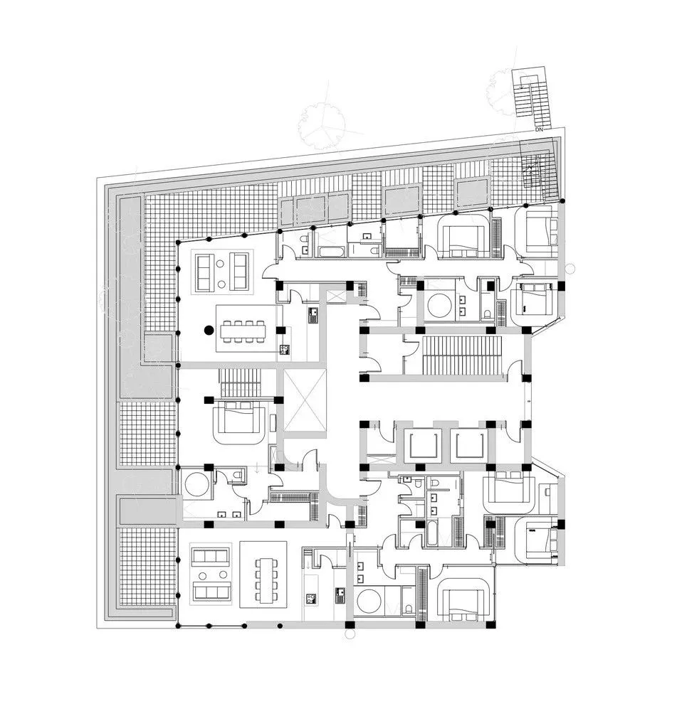
整套公寓总面积达6098平方米
共有7层楼高,15套公寓
这么大的面积却只有15套公寓
看来大平层确实是越来越受欢迎了
但大平层也有大平层的吸引人的地方
真要我选的话,还真是难呢
 
 
葛饰北斋的木刻版画——《青山的靠垫松》
它采用独特的锯齿形光洁的混凝土和石头建筑
模仿山坡的形状,种植茂密的本土松木
使之成为了“富士山的三十景”之一
 
 
密集种植的松木,光洁的混凝土
以及火焰状花岗岩之字形结构
也在东京创造了“绿色的垫脚石”
 
 
在东京这样寸土寸金的地方
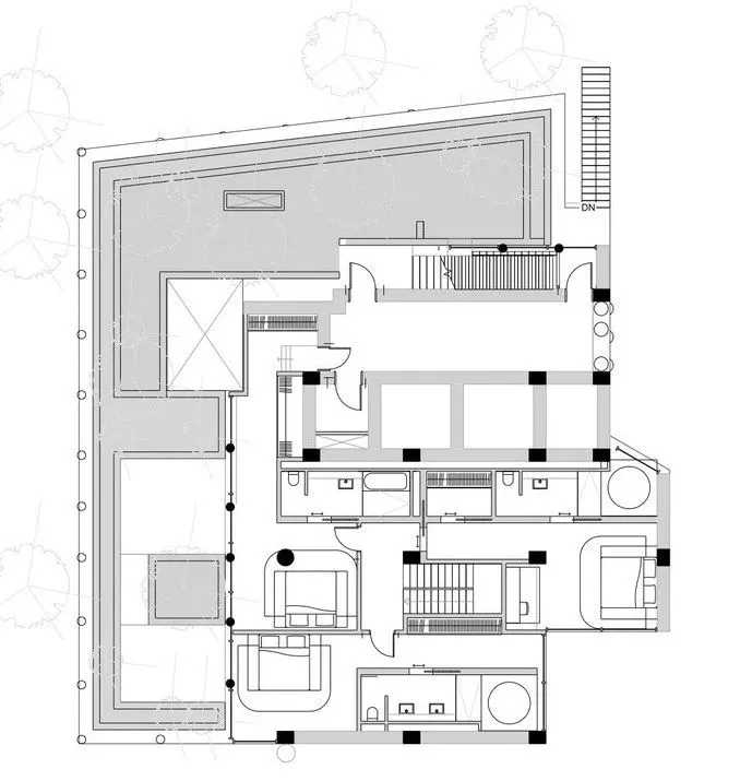
拥有一个能看到星星的大露台
已经是无数东京人这辈子奋斗的目标了
 
 
落地窗采用了木质框架去包裹
外部露台上郁郁葱葱的植物
诺,你要的诗和远方其实就在眼前
 
 
这栋公寓的位置位于狭窄的街道交界处
该结构的设计使行人只能看到前三层
树木和灌木的层叠绿植遮挡着高层
宽敞的露台种植大量的植物
公寓上方采用的是黑色钢包梁结构
对于日本这个地震频繁的国家
黑色钢包梁结构能够起到很好的抗震作用
 
 
公寓建筑景观与景观设计师平田龙也合作
通过使用景观和本土植物
在城市中就能享受自然的风光
 
 
针对人口稠密的城市中对隐私的文化需求
半公共接待区再到私人公寓
公寓外表面的石头和混凝土
林荫的电梯间和走廊空间
公寓内部的独特的空间路线划分
这些小细节都展示出对隐私的保护及尊重
 
 
考虑到东京大部分的公寓大小
北青山公寓楼内的住宅大得不同寻常
因为日本文化中的敏感性
公寓内特别提供了公共和私人流通路线和区域
这样你带朋友来参观也方便
 
 
享受慵懒而惬意的生活!
粗糙的石材、光滑的混凝土及抛光的花岗岩
这些不同的材质,都让视觉让变得丰富很多
 
 
直接从街道走回家的感觉
 
 
一顶柔和的光线打在门牌上
低开窗也是日本一个本土特色
这样的设计会让空间更加有通透感
 
 
公寓是一个由下逐上的坡度设计
地下停车场就设在一楼及以下
一层的大空间几乎都做成了公共设施
因为相对于豪华别墅的公共空间
 
 
朋友来找你时,带到这边坐坐也不错
光线透过巨大的玻璃门折射
 
 
因为一共只有15套公寓
可想而知这里每一套房子有多大了
 
 
明显的划分出公共与私人空间
 
 
客厅里明黄色的沙发和灯光
营造整体舒适的生活氛围
随处可见的绿植摆放其中
阳台上还有两把木编椅子
闲来无事坐在椅子上看看外面的风景
 
 
 
 
 
 
客厅和卧室与外面的大阳台连接
不过你放心,隐私还是被保护的很好
也在保护隐私上起了很大的作用
 
 
越往上六、七层的面积自然也越小
小编非常中意zui顶层的一套复式公寓
 
 
各种高配的厨房、健身房、浴室应有尽有
所拥有的开放空间自然也zui多
 
 
 
 
在东京这样一座水泥城市
北青山以独特的自然景观设计
这样的房子确定值得入手!
Kita Aoyama Apartments(北青山公寓)
将外部冰冷硬气的城市环境
和本土特色的日系原宿风格融合的非常好
打造出一个独一无二的“城市花园公寓”
其实无论别墅也好,大平层也好


