有植、有光,一座光与绿植相依的城市別苑;
一座孩童与植物共生,学习感知四季转移的小苑。
——–来自设计团队
NestSpace Design
忙碌的工作与快节奏的生活时常让屋主感觉到压抑与烦恼,他们希望在城市中也可以拥有一座小花园,早上可以被大把洒入的阳光唤醒,夜晚可以享受植物带来的轻松与惬意,NestSpace Design首先改变了这个141平米的部分布局,让屋主全家不论是在工作、聊天、料理还是睡眠中都可以感受舒适自在。
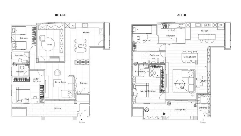
▲原先的空间被划分的非常混乱,毫无美感可言。
▲设计师调整了原先的布局,通过缩小书房从而扩大公共区域,让全家人有更多的空间可以待在一起沟通交流。
▲由于屋主时常需要在家办公,所以设计师在多处区域都规划了可以办公的地方,不同的场景也可以为工作带来灵感。
▲为了将室外的喧嚣与家中小物完全隔离,从入口开始设计师就进行了氛围上的渲染,落脚处铺设了优雅的黑白花砖,周边的木料温暖而清新,定制的丰富柜体足以收纳全家人的衣物鞋物摆放需求。
▲进门并非像传统布局一样通往客餐厅,而是直接将屋主代入了最爱的阳台,所有的烦恼与压力都会瞬间消散,架高的地面不仅避免了灰尘的飞扬,也很好的划分了区域。
▲阳台的天花板一半替换为了钢化玻璃,让阳光可以更好的洒入,让绿植可以更好的发挥光合作用。
▲沿着窗边定制了高低不一的飘窗台,不仅看起来更加有层次感,也满足了储物、办公的功能需求。
▲透明的无轨道玻璃门保证了光线的穿透,看起来也非常的灵活,虽是独立的空间,却也可以保证联系的紧密度。
▲屋主非常喜爱舒缓惬意的自然氛围,所以设计师在家中使用了大量的木质材料,从人字形拼贴的木质地板到家具,与栽种的绿植也互相呼应。
▲开放式的厨房还定制了中岛吧台,让料理成为一件全家人都可以参与的事情,也增加了家庭的互动性。
▲洗漱台、马桶与淋浴区被厚实的隔墙分开,有效的将墙体利用保证干湿分离。
▲主卧只是稍微增加了一点空间,却巧妙的将两个分开的衣柜更改为拥有L型衣柜的半独立衣帽间,整体感更加协调。
▲衣帽间里的木桌可以作为梳妆台也可以作为屋主的私密办公区。
▲原先书房的面积虽然被缩小了一半,却因为拆除了柜体、改用透明移门的方式,丝毫不显压抑,如今这里成为了家庭活动室,展现的都是快乐与美好。
▲活动室与儿童房互相连通,原先并列摆放的儿童床更换为上下铺,让空间显得更加宽敞。
/NestSpace Design
摄影/Hey!Cheese

