自建房,首先要选在平地上,
可是今天我们带来的案例,
“如果选择了坡地怎么办”?
这座独立住宅被命名为:
CONCRETE BLONDE
自然的材质 明媚的光线。
Carter Williamson、建筑师Ben Peake、景观设计师Melissa Wilson的共
2020澳大利亚建筑师协会新南威尔士州室内设计奖
2020新南威尔士州Marrickville保护奖
2020 Dulux 色彩住宅奖
CONCRETE BLONDE位于悉尼的Annanndale,这里拥有宽敞的街道、古典优雅的建筑以及不远处令人神往的海滨,但是在改造前,业主对这座老建筑拥有诸多的不满:
●建筑位于坡地上,不够平整
●建筑宽度为5米,不够宽敞,且受限于两侧建筑,无法进行拓宽
●面向阳光的朝北方向,仅有一扇小门,采光受到严重影响,且考虑到街道的整体美观性,外墙无法更改
●原始空间公私区域划分不合理
▲即便是改造后,设计师们依旧保留了建筑的外立面,维持街道统一的美感。
▲不是平地?没有在怕的!设计师们根据坡地的特殊地形,重新调整了建筑结构,原先令人不满的高低落差,如今成为了有趣且独特的错层效果。
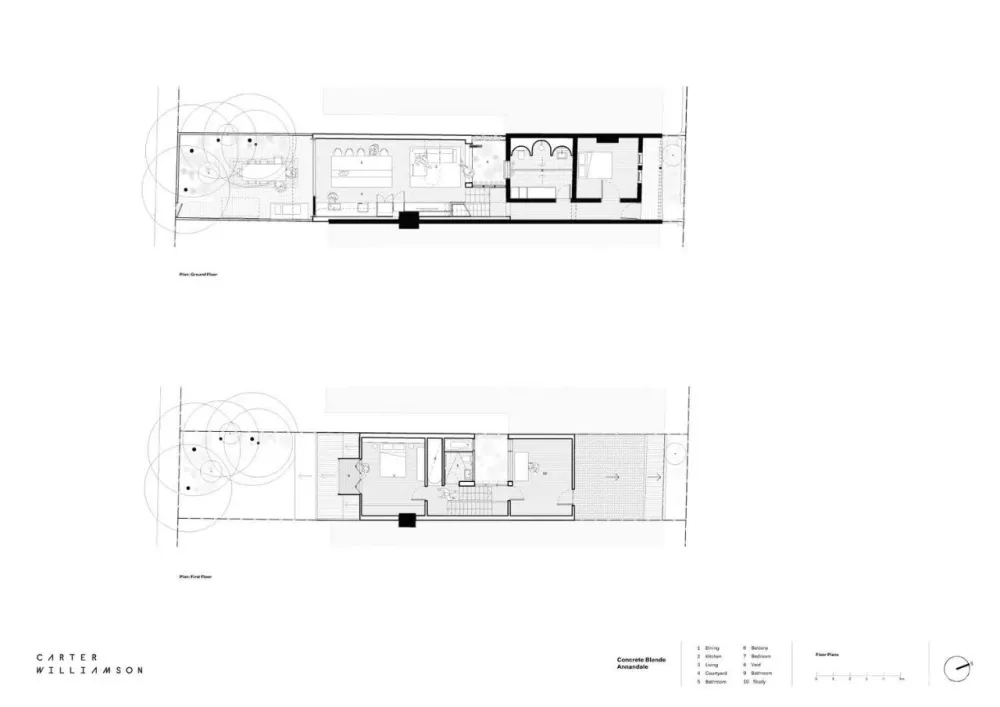
▲精致雕花的拱形门洞,入口处紧接着便是客房以及洗浴室(客房无图),这条通道的尽头可以直接通往上层空间,而在过道的西侧,则是生活区,所以这条入口的通道,也是功能区的界限。
▲拾级而下的公共区域。
▲拥有一个属于自己的院子,养花弄草,孩童奔跑,是很多人的愿望,在这个家里,设计师将改造时拆除的红砖铺设到了院落的地面,不仅节省了开支,也可以“回忆”建筑的历史,全开门的设计,将光线引入。
设计师Carter Williamson将这个家比喻成一个首饰盒,
会被里面的璀璨而惊艳。
▲从过道进入生活区,从狭长变得宽敞,最佳描述可能便是“尽情的利用5米的宽度吧!”
▲南侧的院落,是室内最佳的光源地,墙面上是Bowral Chillingham的白砖,餐桌由Carter Williamson和Orange家具设计师Will Brennan的合作结果,餐桌一侧摆放了单人椅,而另一侧则是定制了卡座,卡座的后方是料理台,只有下厨房的人才知道,宽敞足够的操作台是多么的重要!
▲其实小编认为,在有限的餐厅区域,卡座是很实用的家具,因为在卡座的下方可以用来储物,并且在承载人数上,也拥有“无限”可能,即便亲朋好友到访,也不用担心坐不下的问题。也许有人会觉得卡座会让家像快餐店,但是只要在软垫的材质、色彩以及造型上稍下功夫,就可以完全避免这种问题。
▲色彩是一个家中提升活力与灵动感的好帮手,但是切勿引起杂乱,以厨餐厅为例,卡座上铺设了橄榄绿的皮革坐靠垫,而厨房的柜体则选用了淡淡的水绿色,色彩深与浅的变化,还可以带来层次感的递进。
▲开放式的布局,让客厅也可以享受到南侧院落的阳光。
▲不得不承认,不论家大还是小,只有丰富的储物柜,才可以为家中的整洁打好基础。
▲这里的媒体墙采用了包裹式的柜体定制,这在家装中,也是最常见的设计,将所有的物件全部收纳,观影的属性也更加突出。
▲沙发正上方的拱形穿孔是什么?这是几位设计师为了室内引入更多的光线,特意开设的,在顶层天花板定制额外的窗户,光线通过拱形穿孔直达底部空间!
▲这种直接引入顶层空间光线的手法,我们原先也曾介绍过类似的案例,所以对于家中采光不佳的困扰,“想尽一切办法”借用自然光线,在天花板开窗、在外墙开窗也值得一试!
▲俯视客厅,拱形开孔分割下,色彩的鲜明对比,很惊艳。
▲“无处安放”的阳光,从缺乏到充沛,设计师到处“开孔”,功不可没。
▲自入口开始优雅而古典的拱形元素便出现在室内的多处,独特的形状更容易形成记忆点,且统一的规划让整体显得更加和谐。
▲设计师首先测量好尺寸,将洗浴室的一面墙定为储物柜,另一面则被均匀的划分为三块,拱形的隔断下分别是洗浴区、淋浴区、马桶区,三分法保证功能区互不干扰。但是从另一角度说,拱形的隔断对面积的要求也更大,换为透明玻璃,是否更加通透实用?为了美观做出空间上的小部分牺牲,是否值得?
▲水绿色的顶部与客厅做到了色彩呼应,而细长的砖块与大理石展现了石材的魅力。
▲黄铜绝对是万年不会出错的法宝,而且是华丽与精致的灵魂。
▲回到入口的过道,水磨石与木质拼接的台阶,通往二层空间。
▲百叶窗下的阳光与绿植,都显得更加文艺了。
▲如今室内共有两间卧室,不常用的次卧临街,而主卧被改到了二层朝南的区域,相比之下,更加安静,连接的阳台可以看到院落,也保证了采光。
▲二层的洗浴室原先位于卧室内,考虑到实用性,设计师们最终决定将它“移出”,成为独立区域。
▲绿萝蜿蜒而下,为白色的空间增添了生机,但是根据我们前几天的浴缸专题,这个淋浴与浴缸一体的设计,完全是反面教材哦。
在这个家中,从不常用的客房可以看出,常住人口并不多,也没有孩子,设计师却规划了两间洗浴室,是否有这个必要呢?小编之所以提到这个问题,因为越来越多的买房人,都把两间洗浴室当做是必备条件,甚至有身边人买了建筑面积89平米,却任性的规划出两间洗浴室、三间卧室的“非常规”住宅,所以对于
卧室、生活区、洗浴室,到底孰重孰轻,不知道各位怎么看呢?

