目标
当我们获委任翻新香港大学李嘉诚医学院的大堂时,我们发现了一个可以将人们聚集在校园里,并鼓励他们采用新方式把大堂内、外与环境联系起来的机遇。
 
 
医学院大楼坐落在绿树成荫的山坡上,而非香港大部分地区常见高楼大厦林立的状况,而朝西的窗户可以引入充足的阳光。我们处理这个项目时,构思建造一个可以体验周围环境的空间。
 
 
 
 
设计
内饰采用了白色表面,这既表现出白色与医疗的联系,又最可以展现自然的环境。我们希望用充满空间并与人类比例相配合的设计来捕捉光线。墙壁由白色的弧形胶合板覆盖,天花板上的结构悬挂着0.8毫米厚的白色粉末涂层穿孔铝板。光线穿透铝板,突出日光的变化。金属体积亮白而实在,又显示为黑暗和透明,与周围的树木一起过滤光线。金属体上方的LED灯与自然光融合。随着日落,灯光发出温暖的光线,逐渐增强并最终主导了整个空间。
 
 
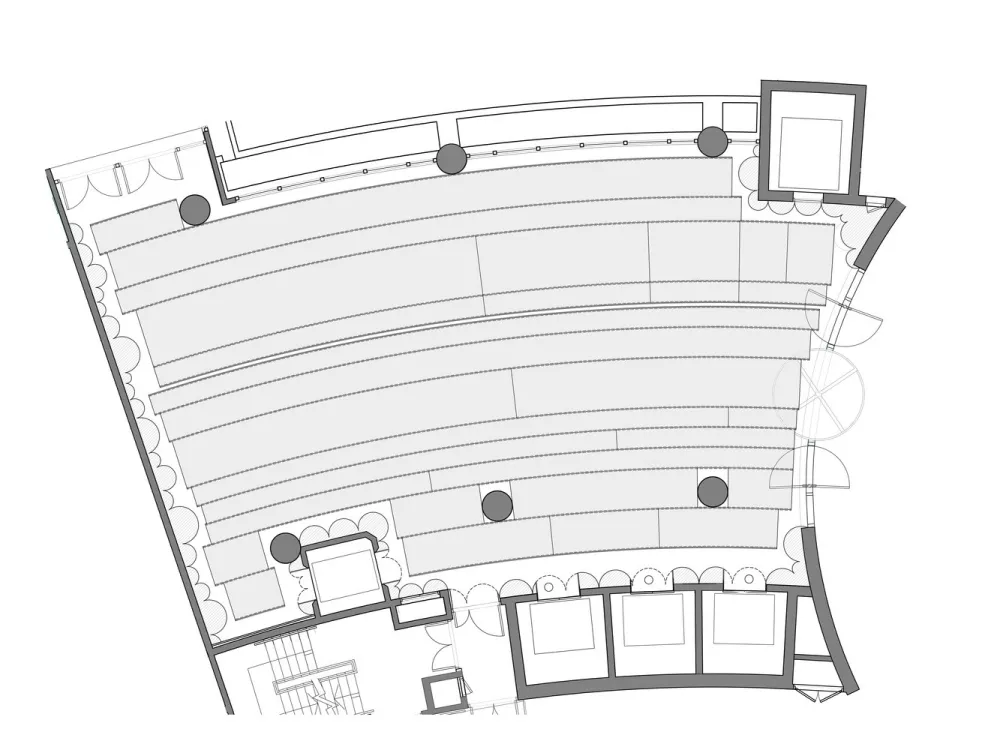
与其追求增大大堂的高度,我们制作了向下伸开的大型滚动形态装置。在6米高的前厅中,我们将天花板的高度降低至2.05米,使得灯光可以跟空间紧密接触。为了减慢人流速度,我们引进了一套木制阶梯平台,借此鼓励人们的社交互动。
 
 
 
 
 
 
 
 
随着光线的进退和材料素质因应光线不断变化,学生每天可以在这个互动的空间里,亲身体验季节的来去。
 
 
 
 
 
 
 
 
我们的信念
我们注重选用普通的材料。在香港,装潢通常使用奢侈的材料,而较为低调的材料常常被忽视。涂有白色油漆的表面和穿孔的铝板在公共汽车站和地铁站等熟悉的空间中,不难找到,而大堂墙壁上使用的商用白色油漆也主导着校园不少其他地方。在大堂里使用这些普通材料强调了日常生活中充满着不同的可能性,在学术的层面来看,也暗示着每个学生都有达至成功的途径。
 
 
 
 
 
 
 
 
 
 
 
 
 
 
 
 
 
 
设计:Edmon Leong
面积:300.0 平方米
年份:2019
摄影:Edmon Leong
主创建筑师:Nuno Da Silva, Tang
顾问:Tino Kwan Lighting Consultants
业主:香港大学李嘉诚医学院


