这座折衷主义建筑可以追溯到20世纪初,被Agueda UMP(城市总体规划)列为公共利益财产。这个建筑,位于Av。乔奎姆德梅洛博士,教区和Agueda直辖市,显示一组其外墙的装饰元素,影响或与装饰艺术引用,因为它发生在其他相同类型的建筑,更高的元素,塔——就像站在其容量分析,定位于建筑的身体接近公共街道,装饰效果。其融入城市电网规划,这类型的孤立的独栋住宅主导,和它的视觉关系,靠近公共花园荷兰Conde de Sucena分配一个附加值这个建筑,除了其历史特殊性在20世纪初的葡萄牙建筑。
该物业位于城市心脏地带,其建筑价值促使业主决定对该建筑进行改造和扩建,使其适合自己的住宅。从构思到最终解决方案的整个过程,既有进展,也有挫折,所有参与者,包括业主,都经过不断的批判性分析。住宅的功能组织设计不仅是为了在不同的现有室内空间和提议的室内空间之间,以及与室外空间之间建立相互依赖的关系,而且还通过太阳能朝向和住宅的舒适性来尊重能源效率等问题。另一方面,人们也关注如何调整这些方面,使之符合创建一个与周围区域有一定私密性的居住空间的要求。
对该物业的干预包括内部分区的拆除工程、人行道的拆除、立面的清洁和修复,保留了其所有的装饰元素。为此,在立面清理工作开始之前,所有装饰元素的模具都已制作完成,保证了原有设计的完整性。
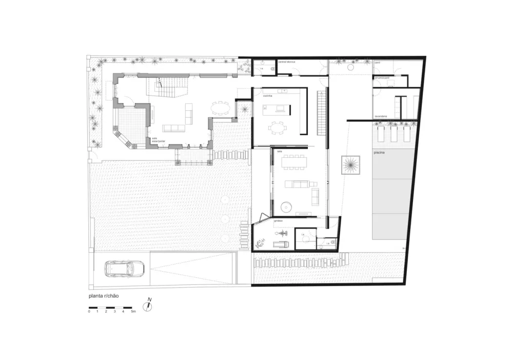
项目在原有建筑的两层进行,包括一层、入口区域和客厅;一楼是图书馆和一间带步入式衣橱和套房浴室的卧室。建议的扩展区域包括两层相互连接的体量。在其中一个体量中,一楼被设计成厨房和备用区域,而一楼将包括两间卧室和相应的配套浴室。
这个新的主体与之前存在的建筑连接起来,承担了一些正式的和体量上的承诺,通过一个小的体量连接起来,增强并标志着新的干预。纹理,色彩和图案的新白色混凝土施工导致创建两个机构之间的关系,尽管广泛不同的建筑语言,到目前为止,寻求可能的对话,不仅通过容量分析,也有一些元素和材料,他们的外观设计。
身体的第二个延伸部分直接连接到第一个,它还包括两个楼层,一个地下室和一个一楼。地下室被设计成停车场、地下室和储藏室,通过外部坡道和靠近服务区的内部楼梯进入。一楼有一间客厅、一间小健身房和卫生设施,用来支撑这两个空间和游泳池。这个单层体量是长方形的,它靠近游泳池的位置有助于创建一个有一些隐私的户外区域。
在游泳池的室外区域,引入了一个四边形的露天休息室,可以欣赏到地下室花园的景色,同时为地下室和地下室空间提供自然光。位于北端和东端的附属建筑连接到房子的服务区,包括一个洗衣房、一个狗舍和一个覆盖的备用区域。在非建筑区域,用草和一些灌木创建了一个绿色区域。








位置:Agueda、葡萄牙
名称:Águeda House
面积:950.0 m2
年份:2017
摄影师:Ivo Tavares Studio

