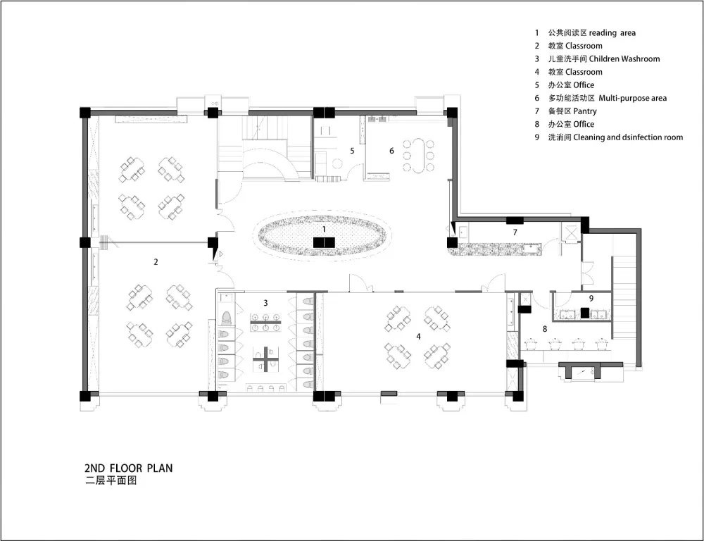
入口区——闪烁着点点星光的洞穴将孩子们引入这个奇妙新世界。
 
 
滑梯、海洋球池、私密小屋——滑梯与球池的组合,让小朋友们运动嬉戏的同时也产生互动。而滑梯后方的神秘小屋则给了孩子们一个安静独处的小世界。

 
 
 
 
沿着球池旁的楼梯拾阶而上, 一侧是蜿蜒而上的金属滑梯与悬空的白色编织攀爬网。
 
 
 
 
 
 
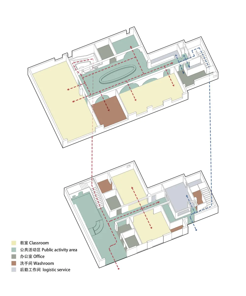
洞穴将一个个活动空间串联一起。这些“洞口”在外观上形成了特点鲜明的弧形门窗,半圆的门窗的构造出多样丰富的空间感受。
 
 
 
 
洞洞墙,黑板墙与烘焙区——小朋友感知吸收美与知识的同时也可以随时自己创作和表达。
 
 
 
 
教室一览——大面积的留白以及玻璃的运用,使得空间干净而通透,摒弃多余的装饰元素,保留最简单纯粹、柔和温馨的底色,只为让孩子们的创意成为最美的装饰和最耀眼的主角。
 
 
洗手间——温馨而合理的布局让孩子们爱上洗手间!
 
 
 
 
 
 
 
 
 
 
 
 
 
 
项目名称:粒粒森国际双语私塾
项目地址:杭州
项目面积:600m²
设计公司: 杭州巨合建筑设计事务所
设计团队:鲁先辉,谢杰,郑晓,郭盐
摄影师:尹咏
主要材料: 木饰面、水磨石、艺术漆
联系邮箱:328990685@qq.com/JUheAD@163.com
联系电话:15958114163 18758295765
联系微信:laolu10000


