感谢来自 序态设计研究室 的商业项目案例分享:
码趣学院(CodingMarch)致力于为国内青少年提供包括基础编程语言课程、竞赛辅导、机器人、科研等深度延伸领域项目。
Coding March is committed to providing Chinese young people with extensive coding courses including basic programming language, competition counseling, robotics, and scientific research.
他们的上海浦东校区基地位于锦延路,一河之隔紧靠上海科技馆,第一次来到街道的时候被道路两旁的各种类型的教育机构所震惊。感受到当下对于青少年教育的重视程度和补习课程的繁重。
Coding March’s Shanghai Pudong campus is located on Jinyan Road, with Shanghai Science and Technology Museum just across the river. We were astonished at the sheer number and variety of educational institutions on both sides of the road and felt on the spot the importance of youth education.


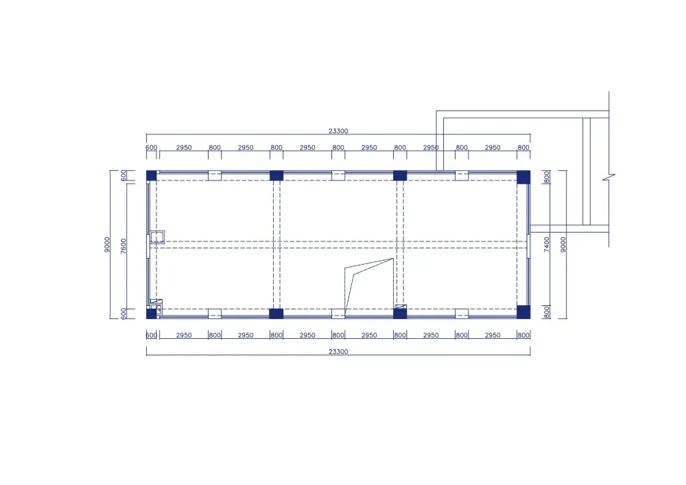
项目基地是23.3*8.6M长方形两层楼场所,沿街道为北面,一层西面一半空间面积为一家日本理发店,二层整层为使用空间,外立面整体都是玻璃幕墙。功能需求上因为客户团队具有教学的长期经验,很清晰明了。复合功能主要在希望具有讲座/学生展览/学生休闲阅读/老师灵活办公几个点上灵活转换。
The two-storeyed building comes in the shape of a 23.3*8.6m rectangular with the north side along the upfront street. The west half of the first floor is taken up by a Japanese barber shop. The entire second is there for us to explore. The façade is made of glass curtain wall. Functional requirements are clear as the client has exceptional teaching experiences. The focus is on the flexible transformation of functions between lecture rooms, student exhibition rooms, reading rooms and staff offices.
激发构思主要从两个方面萌发,一是身处基地二楼时候环顾一圈,四周的树荫透过幕墙透射进来的氛围,光影斑斓。也唤起我们小时候漫无目的的奔跑在山间田野的记忆。二是激发起看Coldplay乐队MV.地面模拟浩瀚苍穹的璀璨星空图像片段尤为深刻。
Inspirations came instantly from two observations. Looking out from the second floor, I was reminiscent, by the glimmering tree shadows created by the light through the glass wall, of carefree childhood frolics in the field. The impressive image of stars in the vast expanse on the ground in A Sky Full of Stars, an MV by Coldplay also played a facilitating role in the final design.


身处都市,现在的青少年已经很少可以用眼睛去触摸苍穹星光之间的五色斑斓,而且我们希望强调身体的感触记忆。从这几个点入手,我们尝试在空间的视觉上保证树林的光影感,北面沿街外立面用铝板渐变穿孔表皮,形成编程代码结合繁星的璀璨效果。
Born and bred in cities, young people nowadays hardly see for themselves the colourful light of stars, and it is our wish to highlight the memory of physical touches. To this end, we try to visually retain the light and shadow of the surrounding trees, and perforate the north façade with gradient aluminum plates, mixing programming codes with the illuminating stars.
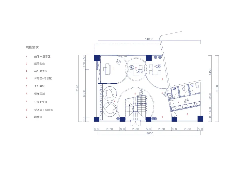
在功能上强调通道路径的自由,然后连接到各个具体功能区域。不同的功能区域之间通过材料/颜色/冷暖的不同对比增加体验。
Functionally, the crisscrossing corridors serve to link different spaces and. Every kind of experience is underscored by contrasting materials and shades of colours


沿街道的外立面从整体考虑,我们纳入了理发店的区域范围。一层空间上我们包含:接待/家长休闲区/楼梯/卫生间/储藏室。在相对局促的空间上,我们利用吊顶的和地面的铺装上来隐形分割。立面空间上全部开敞。二层空间包含/老师的办公区域/学生的各种类型教室。在老师的办公室区域我们采用折叠门来保证不同活动下的场景转换。各功能交接的区域我们植入小型景观,室内外相互视觉上衬托。
Taking the façade as a whole, the area of the barbershop is also included in the design. On the first floor we have reception, parent waiting area, staircase, toilet, and storage room. In the relatively small space, the ceiling and the pavement help to divide functions. On the second floor, we have staff office and classrooms of all kinds suiting students’ needs. The staff room is furnished with folding doors to provide alternative arrangements for different activities. The adjoining area is complemented with micro landscape to echo the greenness outside.
考虑到以后会有针对小学1-6年级的青少儿教学,我们在满足空间的安全舒适使用前提下,由衷的希望营造的空间,可以通过强调五感叠加体验,为短暂学习编程之外的青少儿,提供一段趣味的印象记忆。在学业之余,漫无目的发呆片刻也会敏锐感受到不知名的美好。
Considering that there will be young children from grades 1-6, in addition to meeting the basic requirement for safety and comfort, it is our sincere hope to offer them a fascinating experience of nature and its changes by emphasizing the use of all their senses, so that they may become aware of an unknown beauty during breaks.
















∇ 基地现场

∇ 建筑外立面

∇ 概念01

∇ 概念02

∇ 概念03

∇ 一楼

∇ 二楼

∇ 1f原始平面图

∇ 2F原始平面图

∇ 1F设计平面图

∇ 2F设计平面图

完整项目信息
项目地址:上海市,锦延路
项目类型:码趣青少儿编程学院
设计内容:建筑外立面+室内+软装
建筑面积:300平米
设计时间:2018.05—2018.06
施工时间:2018.07—2018.09
设计单位:序态设计研究室
设计团队:杨添堡,Diamond,徐林蒙,秦志伟,吴玲
室内施工: 上海延悦装饰工程有限公司
摄影师:陈颢
翻译:ELLEN
Project Location: Jinyan Road, Shanghai
Client: Coding March
Design: Façade & Indoor & Soft
Building Area: 300 m2
Design Duration: May 2018—June 2018
Construction Duration: July 2018—September 2018
Designer: Xutai Design
Design Team: Yang Tianbao, Diamond, Xu Linmeng, Qin Zhiwei, and Wu Ling
Indoor Construction: Shanghai Yanyue Construction Co., Ltd.
Photographer: Chen Hao
Translator: Ellen

