当今的办公空间设计趋于未来化,自由空间更是一场全球职场改革运动,这种未来性面临着更多的负荷和需求。
保利 · 未来大都汇规划方案
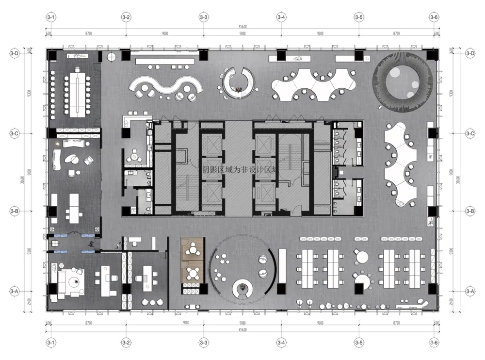
项目位置位于北京昌平未来科学城南区,作为保利置地“汇”系列,它是国内首个科学城内地铁上盖的大型综合体业态,而这次样板层设计也是为了达成新一代总部办公、联合办公、创意办公的聚集地。为重新打破、定义与重组,便是保利(北京)房地产开发有限公司找到CUN寸DESIGN设计的重要原因。
前台接待区域设置了半围合的曲线造型空间,让其作为进入空间时的第一印象,为办公空间创造出一个有机的‘身体’,使其以一种充满现代感且具有建筑体量的形式自然出现。
设计更多考虑的是空间价值,加重访客的第一印象,并在进入办公空间的第一时间感受到公司的气质氛围。这里也属于员工的第一空间,是每位员工日常工作的起点。不同于传统接待前台的形式,它是集聚了接待、社交、展示为一体的多功能升级空间,成为一种即相对开放又相对私密的空间并存状态,也一定程度上分担了内部空间的使用压力。
空间的新生,不仅仅有视觉的更新,更是功能的聚合,半围合的休闲区便由此诞生,使其成为办公空间动态体验的一个重要区域点位。
木作的旋转起伏,仿佛是一个核心齿轮,无论是员工,还是客户,都可以在这里小憩一刻。
小空间的建筑表现手法,模块组合、咬合关系,外加一些线型灯的元素,使得空间线条简洁、利索。黑色主调,科技感十足,同时也让使用者保持思想的高度集中。
CUN寸DESIGN为未来大都汇定制了一款环形灯具,突破传统的形体关系,丢掉繁复与堆砌造型。在满足于光与环境的基本属性下,用简单的元素表达出它所属的空间氛围。
几何框架式的柜体设计分割空间,蓝色亚克力的材质让整个相间的空间更加个性化的表现。
我们生活在一个需要社交空间的时代,放眼望去我们周围对大多数的办公场所,无一不是重复的格子与冷硬的转折,一种统一秩序法则所带来的陌生与冷漠,像潮水般漫过了越盖越高的办公大楼,也漫过了成千上万热血的心。
如今的我们在一天最长的时间段内相聚其中,得到设计数据与逻辑布局之后的良好体验感,并感受到自己的价值。让办公空间成为提供真切“激发灵感”的气氛场,这就够了,这就是未来!
项目名称:保利·未来大都汇办公样板间
项目区位:Beijing北京昌平区未来科学城
主案设计:崔树、孔伟青
软装陈列:孔伟青、刘佳佳
材料选择:木饰面、蓝色亚克力、白色金属漆、拉丝不锈钢、BOLON地毯、银镜、木纹转印、雾化玻璃等。
CUN寸DESIGN寸品牌创始人/设计总监

