图书馆位于景山学校主教学楼内部,被走廊环绕。原为中学部外借书库,没有自然通风采光。主入口因楼上学生电视台地面的局部降板,形成仅2米的压抑结构高度。书库封闭入口让同学们即使每天经过,也会常忽略这个图书馆的存在。空间内部维持着上世纪九十年代建设初期格局,灯光昏暗,三层以书架支撑的简易楼板,堆满书和古籍,没有开放阅读的空间,只有书库的查找和借还功能。在信息时代的校园,这样年久失修的空间让很多珍贵的书籍只能处于沉睡状态。
学校最初提出的设计需求是,改造后希望在原有已非常局促的空间里增加两个班可教学空间,一个独立的电子阅读室,古籍修复及展示区,同时需将容纳十万余册图书。根据空间共性与合理时间管理达到分时共享。
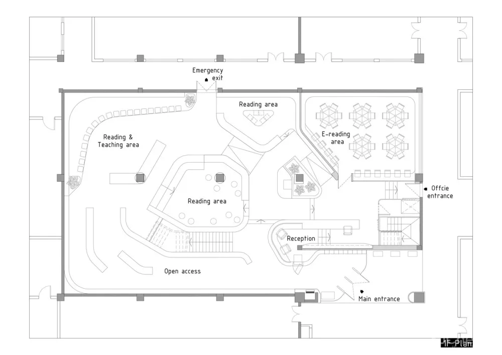
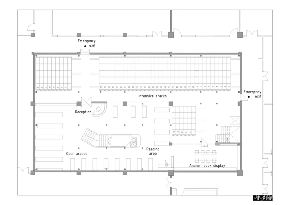
设计打破了原有压抑的三层简易楼板式书库格局,将空间高度重新界定为更加舒适的上下两层。通过调整各部分空间高度,空间共享,空间优化后满足所有使用需求。上层以丰富体验的开放阅读区为主,下层以目的型借阅和密集书库为主。面积的缩小是为了空间的提升,设计的重点在如何给校园内部一个新公共空间,既是图书馆,也是自主学习交流的社区。
主入口拆除原有封闭感的墙和门,吸引学生们走进图书馆。流动的玻璃弧墙模糊了室内外的边界,拓展了开放的界面宽度,并把门的方向转向走廊,投影灯在加强区域照明的同时,也明确指引的入口的位置。
开放阅读区由流动自由的曲线书架进行空间合理划分,中间低矮四周围合,视线在空间中通透。结合现状中空间高差和新的需求设计了三个不同地面高度,形成了丰富空间层次的多个阅读区。如同由书围合成丰富空间层次的庭园。
原有照明与通风严重不足,我们创建了一个模拟天窗效果的吊顶系统,在这些仿结构“井字梁”里面集中组织照明、新风及空调等各种设备管线,将原有杂乱暴露的结构和管道藏于其中。新风系统将外部新鲜空气引入室内,精确定量的设计满足任何状况的使用需求。同时前置的PM2.5过滤装置保证在任何天气下图书馆内空气的纯净。中间凹进部分的软膜天花,用最接近自然光线的色温,形成如天窗的光井。这个综合系统提供了设备所需高度,同时拉伸视觉高度,可联想到有天井采光的屋顶。
空间和设施整体改造后, 除满足藏书和借阅书籍的基本功能外,开放课堂区和电子阅览室能开展阅读指导课、交流展示、小组讨论、学生社团活动等,打造出复合功能的开放式现代学习空间。
作为老校园中的局部改造更新的实践,这个图书馆如同植入的原有传统校园空间系统中的新内核,激发了传统教学楼的内在的活力,更开放的面对不断变化未来。
室内设计:回囙建筑
项目地址:灯市口大街53号,东城区,北京市,中国
主创建筑:赵晖
设计团队:赵晖,汪湘君,李学思
建筑面积:800.0 平方米
项目年份:2019
摄影师:金伟琦
厂家:Dulux, Siemens
业主:北京景山学校
结构设计:李志军结构团队
电气设计:刘路平
暖通顾问:王新亚
合作方:北京长和家具有限公司


謝謝分享