NUDES公司由nuru karim创立,由建筑师、设计师、艺术家、建筑商和哲学家组成,业务涉及建筑、城市主义、研究和开发等领域。
Nuru Karim的创始人兼首席负责人Nuru Karim于2006年在英国伦敦的建筑协会[AADRL]获得了建筑和城市主义硕士学位。他的本科学习包括在大都市孟买(KRVIA-goldmedallist)和蒙特利尔(麦吉尔大学)的旅游和教育。
2005年,他在扎哈·哈迪德建筑事务所工作,参与了一系列的机构项目,包括竞赛/方案设计和设计开发阶段。
Nudes在跨学科的艺术,建筑和计算设计文化领域中运作,这些文化由数字“制作”工具提供支持,可处理更大范围的社会,文化和环境网络。努鲁·卡里姆(Nuru Karim)的建筑作品和竞赛作品均获得了广泛的认可,此外还获得了多个设计奖项,包括2013年阿加汗建筑奖的提名。他最近还获得了世界建筑界设计大奖。Nuru Karim还是2019年TEDx演讲者,并介绍了他在国家和国际平台上的工作和研究。
Nudes设计了一所覆盖着植物的学校,学校顶部有一条自行车道,形状像印度浦那的无限符号。这是为印度西部城市浦那的森林学校设计新的教育设施竞赛中最终获胜作品,预计2021年开始动工。
Nudes公司对学校的计划是建造一对连接的六层圆柱形塔楼,它们被绿色植物包裹,屋顶上有一个环形的自行车道。学校的最高高度为32米,有一个两层高的礼堂,上面五层都是教室。
建筑顶部的自行车道将在两座塔之间形成两座桥梁,形成一个无尽的环岛。两幢建筑的外立面都被植物覆盖,形成了一个垂直的森林。
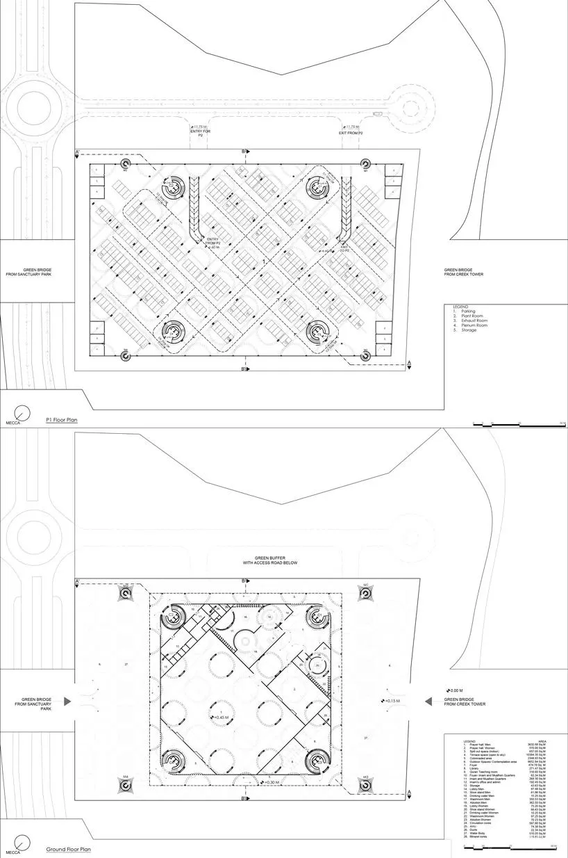
在伊斯兰建筑中,光在清真寺和其他建筑的内部设计中扮演着重要的角色。这个方案探索了光和建筑形式的结合,以创造一种精神体验。光线从双曲面反射,并通过“mashrabiya”孔过滤,这是基于伊斯兰几何原理,由简单的几何重复产生。除了被过滤掉的戏剧性的光的显示,建筑系统也保护居民免受强烈的阳光和提供一个凉爽的环境。
拟建的“光之清真寺”战略选址在迪拜湾港发展项目,预计该项目共有48,500个住宅单元,人口约17.5万。这座清真寺的设计宗旨是为7500人口举行日常祈祷以及周五和开斋节祈祷。主祈祷厅面向主要的齐布拉墙,在一楼设计了男女祈祷空间。在地面广场层和平台上都创造了完整的空间。露台可以通过四个宣礼塔进入,宣礼塔容纳了清真寺的组成,并统一了整个建筑的几何概念。
该项目是马拉维一所中学的设计方案,位于Ntchisi森林保护区以西30公里处。设计响应了对模块化、增量扩展、部署和可持续技术的关注。模块化的“梯子”组件用于创建一个结构系统,容纳学校的教学意图。“梯子”组件沿着一条路径递增地排列,以探索与学习环境有关的内外关系。确定梯子的角度是为了探索水平和垂直的条件。“水平”状态探索课堂外的学习活动,包括露天剧场、室外工作坊和被动娱乐活动。
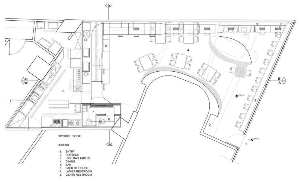
Nudes用硬纸板在孟买建造了一间完整的咖啡馆,以证明其环保材料的多用途性。
除了咖啡馆、外观和咖啡馆中的服务外。墙其他所有东西都是由纸板制成的。墙壁,椅子,桌子,甚至灯罩都由瓦楞纸板制成。
“用硬纸板建筑意味着对材料性能的不断探索和探究,”Nudes说。“桌面浸渍用蜡处理,以防止水吸收和促进易于维护,“工作室补充道。“我们希望这个空间发展成为一个充满活力的对话中心,就设计、材料和技术在保护地球资源、实现可持续未来方面的作用进行对话。”

